Longfield Road, Bishop Auckland, DL14

Letting details
- Let available date:
- Ask agent
- Deposit:
- £0A deposit provides security for a landlord against damage, or unpaid rent by a tenant.Read more about deposit in our glossary page.
- Min. Tenancy:
- Ask agent How long the landlord offers to let the property for.Read more about tenancy length in our glossary page.
- Let type:
- Long term
- Furnish type:
- Ask agent
- Council Tax:
- Ask agent
- SIZE
Ask agent
Key features
- Steel roller shutter and personnel doors.
- Profiled sheet cladding to match existing .
- Good visibility and access from the roadside
- Adequate vehicle turning circle within the yard.
- Secure gated entrance to the site
Description
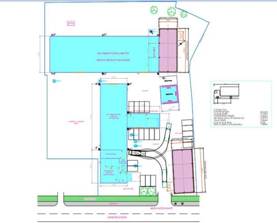
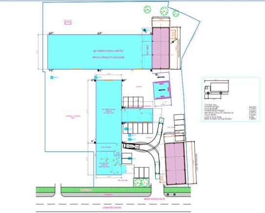
The site is located within the South Church Enterprise Park, off Longfield Road, near the town of Bishop Auckland in County Durham.
It benefits from a prominent industrial-/business-park setting, with numerous commercial units and businesses registered in the vicinity.
The location offers good access to local roads and is positioned for visibility from the estate’s main circulation routes; the enterprise park also provides ample yard space and infrastructure suited for industrial/commercial use.
DESCRIPTION
The following details are submitted in support of planning application DM/24/00628/FPA. The proposal seeks permission for the erection of a new detached building positioned at the front section of the site. The structure will incorporate a mono-pitch roof with eaves measuring approximately 4.3 meters, rising to a maximum height of 5.5 meters, ensuring an efficient internal working height while maintaining a modest external profile that limits visual impact.
Access will be provided via personnel doors positioned on the north and west elevations, together with a steel roller shutter door on the west elevation, offering practical access for vehicles and operational equipment.
Externally, the building will be finished in profiled metal cladding to match the existing units on the site in both colour and appearance, ensuring consistency and visual continuity across the development. The layout allows for safe access and maneuvering, with sufficient yard space located directly to the front of the unit.
USE CLASS
B8 - Storage or distribution.
EPC Rating
To be assessed upon completion.
TERMS
The property is available by way of a new lease to let at £8.50psf.
VAT
All figures quoted are exclusive of VAT and payable where applicable
LEGAL COSTS
Each party to be responsible for their own legal costs incurred in this transaction.
RATING
Please make your own enquiries with the Local Rating Authority.
VIEWING
Please contact this office for a convenient appointment to view or for further information regarding the premises
JOSEPH I’ANSON
+44 (0)
Joseph.
- COUNCIL TAXA payment made to your local authority in order to pay for local services like schools, libraries, and refuse collection. The amount you pay depends on the value of the property.Read more about council Tax in our glossary page.
- Band: TBC
- PARKINGDetails of how and where vehicles can be parked, and any associated costs.Read more about parking in our glossary page.
- Ask agent
- GARDENA property has access to an outdoor space, which could be private or shared.
- Yes
- ACCESSIBILITYHow a property has been adapted to meet the needs of vulnerable or disabled individuals.Read more about accessibility in our glossary page.
- Ask agent
Energy performance certificate - ask agent
Longfield Road, Bishop Auckland, DL14
Add an important place to see how long it'd take to get there from our property listings.
__mins driving to your place
Notes
Staying secure when looking for property
Ensure you're up to date with our latest advice on how to avoid fraud or scams when looking for property online.
Visit our security centre to find out moreDisclaimer - Property reference CMR250192_L. The information displayed about this property comprises a property advertisement. Rightmove.co.uk makes no warranty as to the accuracy or completeness of the advertisement or any linked or associated information, and Rightmove has no control over the content. This property advertisement does not constitute property particulars. The information is provided and maintained by Bradley Hall, Newcastle Upon Tyne. Please contact the selling agent or developer directly to obtain any information which may be available under the terms of The Energy Performance of Buildings (Certificates and Inspections) (England and Wales) Regulations 2007 or the Home Report if in relation to a residential property in Scotland.
*This is the average speed from the provider with the fastest broadband package available at this postcode. The average speed displayed is based on the download speeds of at least 50% of customers at peak time (8pm to 10pm). Fibre/cable services at the postcode are subject to availability and may differ between properties within a postcode. Speeds can be affected by a range of technical and environmental factors. The speed at the property may be lower than that listed above. You can check the estimated speed and confirm availability to a property prior to purchasing on the broadband provider's website. Providers may increase charges. The information is provided and maintained by Decision Technologies Limited. **This is indicative only and based on a 2-person household with multiple devices and simultaneous usage. Broadband performance is affected by multiple factors including number of occupants and devices, simultaneous usage, router range etc. For more information speak to your broadband provider.
Map data ©OpenStreetMap contributors.



