Provence-Alps-Cote d`Azur, Alpes-Maritimes, Cannes, France
- PROPERTY TYPE
Ground Flat
- BEDROOMS
3
- BATHROOMS
2
- SIZE
1,215 sq ft
113 sq m
Key features
- Walk to Beach
- Walk to Amenities
- New Build or Off Plan
- Turnkey
Description
Exciting new development of just 9 properties, nicely positioned in the heart of the magnificent historic Jean de Noailles area in Cannes.
Its green and peaceful setting offers a true haven of serenity, while remaining just 800 metres from the beach and only 5 minutes from the Croisette.
Each apartment has been designed to offer absolute comfort, with generous outdoor spaces to fully enjoy the Riviera climate.
Delivery planned for the 4th quarter of 2026.
- Entrance
- Living room
- Fitted kitchen
- WC
- Clearance
- 3 Bedrooms
- Dressing room
- 2 bathrooms
-Two underground parking spaces
Videophone
Electric Shutters
Double Glazing
Lift
Air Conditioning
Garden
Parking
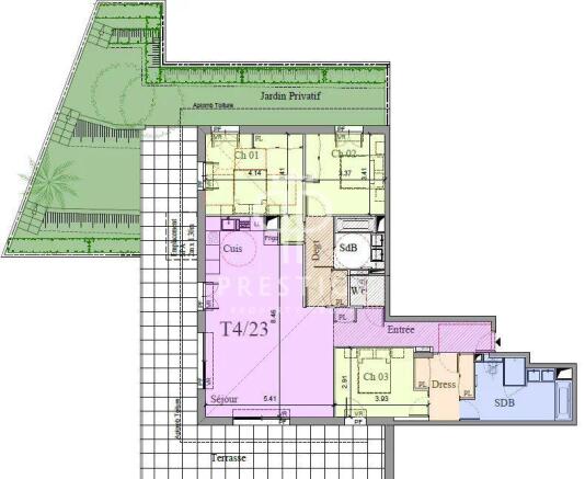
Garden: 45.89 m2
Terrace: 55.06 m2
Bathroom: 10.19 m2
WC: 2.69 m2
Walk-in Closet: 5.42 m2
Bedroom: 10.32 m2
Bedroom: 11.46 m2
Bedroom: 15.28 m2
Bathroom: 4.38 m2
Corridor: 5.46 m2
WC: 2.12 m2
: 48.27 m2
Entrance.
REFERENCE: 252522
Provence-Alps-Cote d`Azur, Alpes-Maritimes, Cannes, France
NEAREST AIRPORTS
Distances are straight line measurements- Nice Côte d`Azur(International)13.2 miles
- Toulon (Le Palyvestre)(International)52.9 miles
- Provence(International)91.9 miles
Advice on buying French property
Learn everything you need to know to successfully find and buy a property in France.
Notes
This is a property advertisement provided and maintained by Prestige Property Group, International (reference 252522) and does not constitute property particulars. Whilst we require advertisers to act with best practice and provide accurate information, we can only publish advertisements in good faith and have not verified any claims or statements or inspected any of the properties, locations or opportunities promoted. Rightmove does not own or control and is not responsible for the properties, opportunities, website content, products or services provided or promoted by third parties and makes no warranties or representations as to the accuracy, completeness, legality, performance or suitability of any of the foregoing. We therefore accept no liability arising from any reliance made by any reader or person to whom this information is made available to. You must perform your own research and seek independent professional advice before making any decision to purchase or invest in overseas property.



