
Off Harborough Road, Market Harborough, LE16 7BY

- PROPERTY TYPE
Semi-Detached
- BEDROOMS
2
- SIZE
Ask developer
- TENUREDescribes how you own a property. There are different types of tenure - freehold, leasehold, and commonhold.Read more about tenure in our glossary page.
Freehold
Key features
- Contemporary fitted kitchen
- Open plan living and dining
- Modern fitted family bathroom
- Cloakroom
- **Images and CGI's are representation only and may include additional features/upgrades
N.B There are several variants of this house type, please ensure you speak to a sales adviser.
Description
This home is being sold as a Discounted Open Market Sale meaning you could buy this for 30% less than market value if you match the following citeria:
- Combined income not exceeding £80,000
- You must have lived in Market Harborough for 2 years OR been in continuous employment in Market Harborough for two years and have a contract of at least 24 hours a week OR are a keyworker
Speak to our sales consultant to find out more.
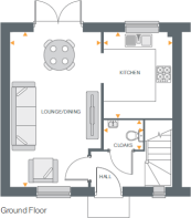
The Castleton is designed for easy, everyday living. Its welcoming hallway leads into a bright and spacious lounge/dining room with French doors leading out to the garden – ideal for warm summer days, while the contemporary kitchen and cloakroom complete the ground floor.
Upstairs, you'll find two well-proportioned bedrooms and a modern family bathroom. The second bedroom offers flexibility – perfect as a guest room, children's room, or home office.
Outside there is an enclosed garden and off road parking.
Room Dimensions
- Lounge - 18'6" x 10'9"
- Kitchen/Dining - 10'3" x 8'1"
- Cloakroom - 4'7" x 3'6"
- Bedroom 1 - 12'9" x 9'7“
- Bedroom 2 - 1 5'11" x 8'6"
- Bathroom - 7'2" x 6'4"
- COUNCIL TAXA payment made to your local authority in order to pay for local services like schools, libraries, and refuse collection. The amount you pay depends on the value of the property.Read more about council Tax in our glossary page.
- Ask developer
- PARKINGDetails of how and where vehicles can be parked, and any associated costs.Read more about parking in our glossary page.
- Yes
- GARDENA property has access to an outdoor space, which could be private or shared.
- Yes
- ACCESSIBILITYHow a property has been adapted to meet the needs of vulnerable or disabled individuals.Read more about accessibility in our glossary page.
- Ask developer
Energy performance certificate - ask developer
- Beautiful rural surroundings
- Just 68 plots in phase 1
- Elegant designs
- Uncompromising quality
Off Harborough Road, Market Harborough, LE16 7BY
Add an important place to see how long it'd take to get there from our property listings.
__mins driving to your place
Get an instant, personalised result:
- Show sellers you’re serious
- Secure viewings faster with agents
- No impact on your credit score
About William Davis Homes
About William Davis Homes:
For over 90 years we’ve been building more than houses, we’ve been shaping thriving communities. As a family-run, five-star house builder, we take pride in our award-winning craftsmanship, strong values, and dedicated workforce of expert tradespeople. Unlike many, we use our own skilled teams rather than contractors, ensuring every home meets our high standards. Our commitment to quality over quantity sets us apart, with sustainability, customer service, and attention to detail at the heart of everything we do. That’s why we’ve been rated a Home Builders Federation five-star builder, the industry gold standard, for over a decade.
Quality Craftsmanship
At William Davis Homes, craftsmanship isn’t just about building houses, it’s about creating homes that stand the test of time. Our commitment to quality is evident in every detail, from the high-end appliances we install to the precision of our finishes. Unlike many other builders, we employ our own talented tradespeople, guaranteeing consistency and exceptional standards across every project. It’s this dedication to excellence that sets us apart and makes each home truly special.
Specification
At William Davis Homes, we are proud to build with sustainability in mind, using high-quality materials and renowned brands like SMEG, Indesit, Hive, Symphony, Porcelanosa, and Roca. Our commitment to quality craftsmanship is clear in every corner of our homes, from the premium appliances to the attention to detail in our finishes.
Inside, you’ll find top-tier materials as standard, while outside, the exterior design blends harmoniously with the local surroundings, complemented by landscaped gardens. We build with the future in mind, creating homes that not only stand the test of time but also make an enduring impression.
Customer Service
Having spent all these years working closely with our customers, we know it’s important that we do everything we can to make finding your new home easier. We want families to feel considered every step of the way, that’s why our commitment to exceptional customer service is central to everything we do.
Whether you need advice on your buying options or want to know more about the local area, we’re only a phone call away. And the experience doesn’t end when you step through your new front door; once you’ve moved in, our customer care team will be on hand to offer after sales care.
Best Practice
For ten years running, we’ve been rated a five star homebuilder in the Home Builders Federation’s annual survey of homeowners. That means more than 90% of our customers are extremely happy with their home and the William Davis experience, so you can expect to be treated like part of the family from the minute you enter our offices.
Award Winning Work
We’re happy if you’re happy, and it’s always nice when all our hard work is formally recognised. The quality of our building, landscaping, designs, and customer service have all received national and regional awards. Our site managers have also won numerous NHBC ‘Pride in the Job’ awards for their site management, leadership and technical expertise.
Your mortgage
Notes
Staying secure when looking for property
Ensure you're up to date with our latest advice on how to avoid fraud or scams when looking for property online.
Visit our security centre to find out moreDisclaimer - Property reference 2_423. The information displayed about this property comprises a property advertisement. Rightmove.co.uk makes no warranty as to the accuracy or completeness of the advertisement or any linked or associated information, and Rightmove has no control over the content. This property advertisement does not constitute property particulars. The information is provided and maintained by William Davis Homes. Please contact the selling agent or developer directly to obtain any information which may be available under the terms of The Energy Performance of Buildings (Certificates and Inspections) (England and Wales) Regulations 2007 or the Home Report if in relation to a residential property in Scotland.
*This is the average speed from the provider with the fastest broadband package available at this postcode. The average speed displayed is based on the download speeds of at least 50% of customers at peak time (8pm to 10pm). Fibre/cable services at the postcode are subject to availability and may differ between properties within a postcode. Speeds can be affected by a range of technical and environmental factors. The speed at the property may be lower than that listed above. You can check the estimated speed and confirm availability to a property prior to purchasing on the broadband provider's website. Providers may increase charges. The information is provided and maintained by Decision Technologies Limited. **This is indicative only and based on a 2-person household with multiple devices and simultaneous usage. Broadband performance is affected by multiple factors including number of occupants and devices, simultaneous usage, router range etc. For more information speak to your broadband provider.
Map data ©OpenStreetMap contributors.





