
Keighley Road, Harden, Bingley, West Yorkshire, BD16

- PROPERTY TYPE
Semi-Detached
- BEDROOMS
3
- BATHROOMS
2
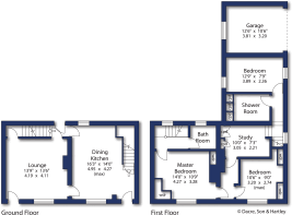
- SIZE
1,300 sq ft
121 sq m
- TENUREDescribes how you own a property. There are different types of tenure - freehold, leasehold, and commonhold.Read more about tenure in our glossary page.
Freehold
Key features
- Stone built period home
- Double fronted cottage
- Three bedrooms
- Character features
- Well presented
- Village location
- Driveway, parking and garage
- Beautiful cottage gardens
Description
Delightfully situated within a highly acclaimed and much sought after residential location is a superbly presented three bedroom stone built period home offering attractive living accommodation. The property is in our opinion well presented throughout and includes quality kitchen, bathroom and shower room together with gas heating and UPVC sealed unit double glazing. The property offers a host of character features and would ideally be suited to the more discerning purchaser seeking a home with elegance and versatility.
The accommodation briefly comprises spacious lounge with stone feature fireplace incorporating multi fuel burning stove, dining kitchen having a range of quality base and wall units, integrated appliances, basement store . To the first floor large landing area currently used as study, three bedrooms, modern bathroom and quality shower room.
Outside the property is complemented by beautifully presented gardens with stone paved driveway and garden at the front with parking. Parking to the side leading to garage with power and light. Superb cottage style gardens at the rear with lawn, flower beds trees and shrubs.
The property is delightfully situated on the edge of Harden Village. Harden is a beautiful village near the scenic area of St. Ives and the village boasts a range of shops, amenities, recreational areas and well respected primary school. Bingley town centre also provides excellent road and rail links to other West and North Yorkshire business centres which include Bradford and Leeds. The location is also considered to be within daily commuting distance of many towns and cities of West Yorkshire which include Bingley, Keighley, Bradford, Halifax and Leeds.
1. Please note that the neighbour number 7 has pedestrian right of access at the front of the property. Also rights to maintain at the rear of the property. Please see the agent for further details.
From Dacre Son & Hartley's Bingley office proceed down Main Street turning left over Island Bridge and travel past St. Ives Estate. On reaching the mini roundabout in Harden travel straight ahead and take first right onto Keighley Road. Continue up Keighley Road and the property will be seen on the left hand side.
Brochures
Particulars- COUNCIL TAXA payment made to your local authority in order to pay for local services like schools, libraries, and refuse collection. The amount you pay depends on the value of the property.Read more about council Tax in our glossary page.
- Band: D
- PARKINGDetails of how and where vehicles can be parked, and any associated costs.Read more about parking in our glossary page.
- Yes
- GARDENA property has access to an outdoor space, which could be private or shared.
- Yes
- ACCESSIBILITYHow a property has been adapted to meet the needs of vulnerable or disabled individuals.Read more about accessibility in our glossary page.
- Ask agent
Keighley Road, Harden, Bingley, West Yorkshire, BD16
Add an important place to see how long it'd take to get there from our property listings.
__mins driving to your place
Get an instant, personalised result:
- Show sellers you’re serious
- Secure viewings faster with agents
- No impact on your credit score
Your mortgage
Notes
Staying secure when looking for property
Ensure you're up to date with our latest advice on how to avoid fraud or scams when looking for property online.
Visit our security centre to find out moreDisclaimer - Property reference BIN250216. The information displayed about this property comprises a property advertisement. Rightmove.co.uk makes no warranty as to the accuracy or completeness of the advertisement or any linked or associated information, and Rightmove has no control over the content. This property advertisement does not constitute property particulars. The information is provided and maintained by Dacre Son & Hartley, Bingley. Please contact the selling agent or developer directly to obtain any information which may be available under the terms of The Energy Performance of Buildings (Certificates and Inspections) (England and Wales) Regulations 2007 or the Home Report if in relation to a residential property in Scotland.
*This is the average speed from the provider with the fastest broadband package available at this postcode. The average speed displayed is based on the download speeds of at least 50% of customers at peak time (8pm to 10pm). Fibre/cable services at the postcode are subject to availability and may differ between properties within a postcode. Speeds can be affected by a range of technical and environmental factors. The speed at the property may be lower than that listed above. You can check the estimated speed and confirm availability to a property prior to purchasing on the broadband provider's website. Providers may increase charges. The information is provided and maintained by Decision Technologies Limited. **This is indicative only and based on a 2-person household with multiple devices and simultaneous usage. Broadband performance is affected by multiple factors including number of occupants and devices, simultaneous usage, router range etc. For more information speak to your broadband provider.
Map data ©OpenStreetMap contributors.






