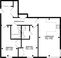
2 bedroom apartment for sale
Windsor Gardens Windsor Road, Penarth, Cardiff

- PROPERTY TYPE
Apartment
- BEDROOMS
2
- BATHROOMS
2
- SIZE
700 sq ft
65 sq m
Key features
- Two Double Bedroom Apartment
- Mandarin Stone Ceramic Bathrooms
- Gated Allocated Parking with Electric Charger
- Walking Distance to Penarth Town and Seaside
- Residents Gym
- Open Plan Lounge with Fully Integrated Designer Kitchen
- Solar Panel Assisted Electric Heating
- Lift Access From Under Croft Parking to all Levels
- Communal Central Courtyard Garden
- Residents Bike Store
Description
The bathrooms are designed in a mandarin stone finish with black or rose gold vein, Tissano bathrooms with showers, bath, low level wc and vanity units with a black matt finish. The flooring is luxury vinyl throughout in a sierra or blackjack oak, with carpet for the bedrooms.
Each apartment will come with high end flooring and will be tastefully and beautifully decorated throughout.
About The Development - Windsor Gardens Penarth is a a brand-new contemporary, luxury, development of 21, 1- and 2-bedroom apartments from the renowned developer Rush Residential.
Set over three floors with under-croft secured parking, these stylish apartments come with a contemporary modern finish, offering the homeowner a warm and inviting property. Windsor Gardens is different to so many developments with its thoughtful build to include:
•Energy efficient building fabric
•Renewable energy surfaces
•Modern heating, venting, and electrical installations
•Water conservation measures
•Electric car charges
Windsor Gardens will come with a beautiful communal Zen Garden, onsite gym with peloton bikes, and a 999 year lease.
Due to current legislation changes in Wales there will be no ground rent and service charge information will be available at a later stage, and will be fairly proportioned across the sizes of each apartment. The development will further benefit from lifts to each floor, and lifts coming from the under-croft parking, giving the homeowner that real convenient living experience.
About The Area - Penarth - An elegant Victorian seaside town situated in the Vale of Glamorgan, Penarth is a vibrant and exciting place to live, work and play with a population of just over 22,000. With five primary schools and two secondary schools, it is a popular place to raise a family.
It boasts a thriving town centre offers a variety of shops, delicatessens, and organic food within the beautiful Victorian Arcade.
Similarly, the town offers stunning listed buildings and structures of special local and historic interest that contribute to the environmental and cultural heritage of Penarth. As well as shopping, you can find plenty of outdoor areas such as the beach, esplanade, cliff tops, railway path and Cosmeston Lakes & Country Park; providing lots of options for family activities, walker and joggers. Local rugby, football, hockey, and cricket clubs also contribute to the active community.
Penarth also lies approximately four miles from Cardiff city centre thanks to the excellent transport links by rail and by bus. The Cardiff Bay Barrage offers a safe, traffic free route for much of the way for those wishing to cycle, scooter, or walk
Service Charge Tbc / 250 year lease / No Ground Rent Charge
Brochures
Windsor Gardens Windsor Road, Penarth, CardiffBrochure- COUNCIL TAXA payment made to your local authority in order to pay for local services like schools, libraries, and refuse collection. The amount you pay depends on the value of the property.Read more about council Tax in our glossary page.
- Ask agent
- PARKINGDetails of how and where vehicles can be parked, and any associated costs.Read more about parking in our glossary page.
- Yes
- GARDENA property has access to an outdoor space, which could be private or shared.
- Yes
- ACCESSIBILITYHow a property has been adapted to meet the needs of vulnerable or disabled individuals.Read more about accessibility in our glossary page.
- Ask agent
Energy performance certificate - ask agent
Windsor Gardens Windsor Road, Penarth, Cardiff
Add an important place to see how long it'd take to get there from our property listings.
__mins driving to your place
Get an instant, personalised result:
- Show sellers you’re serious
- Secure viewings faster with agents
- No impact on your credit score
Your mortgage
Notes
Staying secure when looking for property
Ensure you're up to date with our latest advice on how to avoid fraud or scams when looking for property online.
Visit our security centre to find out moreDisclaimer - Property reference 34292853. The information displayed about this property comprises a property advertisement. Rightmove.co.uk makes no warranty as to the accuracy or completeness of the advertisement or any linked or associated information, and Rightmove has no control over the content. This property advertisement does not constitute property particulars. The information is provided and maintained by Key Executive Sales, Cardiff. Please contact the selling agent or developer directly to obtain any information which may be available under the terms of The Energy Performance of Buildings (Certificates and Inspections) (England and Wales) Regulations 2007 or the Home Report if in relation to a residential property in Scotland.
*This is the average speed from the provider with the fastest broadband package available at this postcode. The average speed displayed is based on the download speeds of at least 50% of customers at peak time (8pm to 10pm). Fibre/cable services at the postcode are subject to availability and may differ between properties within a postcode. Speeds can be affected by a range of technical and environmental factors. The speed at the property may be lower than that listed above. You can check the estimated speed and confirm availability to a property prior to purchasing on the broadband provider's website. Providers may increase charges. The information is provided and maintained by Decision Technologies Limited. **This is indicative only and based on a 2-person household with multiple devices and simultaneous usage. Broadband performance is affected by multiple factors including number of occupants and devices, simultaneous usage, router range etc. For more information speak to your broadband provider.
Map data ©OpenStreetMap contributors.





