3 bedroom terraced house for sale
Rose Wharf, Macclesfield

- PROPERTY TYPE
Terraced
- BEDROOMS
3
- BATHROOMS
2
- SIZE
1,066 sq ft
99 sq m
- TENUREDescribes how you own a property. There are different types of tenure - freehold, leasehold, and commonhold.Read more about tenure in our glossary page.
Freehold
Key features
- Please Quote Ref JS0322 When Calling**
- Modern Family Bathroom
- Modern Three-storey Townhouse
- Modern En-Suite Shower Room to Main Bedroom Plus Fitted Wardrobes
- Three Double Bedrooms
- Downstairs WC
- Modern Dining Kitchen with Feature Bay Window
- Double Width Block Paved Driveway with EV Car Charging Point
- First Foor Lounge with Juliet Balcony Overlooking the Canal
- Gas Central Heating & Double Glazing
Description
**Please Quote Ref JS0322 When Calling**
A Peaceful Waterside Townhouse on Rose Wharf, Macclesfield
Set alongside the peaceful banks of the Macclesfield Canal, Rose Wharf is a select development of modern townhouses built around 2003. Life here moves at a gentler pace, helped by the peaceful position backing directly onto the Macclesfield Canal, where narrow boats glide by and towpath walkers drift into the distance.
You’ll enjoy being part of a friendly, established community with scenic waterside walks just moments from your door. Everyday convenience is close by too, with a small parade of independent shops on Buxton Road within easy reach, Black Road play park just a short stroll away, Macclesfield Golf Club nearby and the highly regarded Puss Bank Primary School close at hand. Excellent transport links via Macclesfield train station and the A523 make commuting simple.
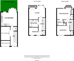
The property is arranged over three floors and offers flexible, well-designed accommodation.
On the ground floor, you are welcomed by an entrance hallway with a downstairs WC before stepping into the modern dining kitchen at the rear. This sociable space features fitted units, integrated appliances and a shaped bay window with a door opening directly into the rear garden. The former garage has been converted to create a versatile occasional room—ideal as a home office, playroom, gym or snug—while a useful garage store remains at the front of the property, accessed externally and perfect for bikes, tools or storage.
The first floor features a bright and comfortable sitting room with elevated views across the Macclesfield Canal. From here, a set of French doors open onto a small decorative railed balcony—not large enough for seating but perfect for letting in fresh air while enjoying the waterside setting. Also on this floor, you will find the third double bedroom and a modern family bathroom.
The top floor is home to two further double bedrooms, both featuring elegant cathedral-style windows. The main bedroom has fitted wardrobes and an integrated bench seat, overlooking the balcony and canal below, ideal for a morning coffee with a book, and a recently updated en-suite shower room finished to a stylish and contemporary standard.
Externally, the property benefits from a block-paved double driveway providing off-road parking for two vehicles, along with an electric vehicle charging point to the front.
To the rear of the property, you will find a waterside garden backing onto Macclesfield canal. With an outlook consisting of the canal and trees, the garden is low maintenance, featuring contemporary raised flower beds filled with lavender, rosemary and strawberries.
It also features outdoor power points and wiring for fixed lighting. Perfect for entertaining and outdoor dining.
A path accessible via the side of the neighbouring property allows access to the rear garden, which has been designed to enjoy a peaceful outlook over the canal.
Rose Wharf offers modern canal-side living in a desirable and convenient Macclesfield location—an excellent opportunity for those seeking lifestyle, comfort and connection to the outdoors.
For more information and to arrange a viewing please contact James, Carly or Dawn on the details provided.
Local Authority - Cheshire East
Council Tax Band - D
Tenure - Freehold
Ground Floor
Entrance Hall
16ft 7 x 5ft 9 Composite double glazed door to front elevation and wooden double-glazed window to front elevation, ceiling light, down lights, thermostatic radiator, power point, under stairs storage cupboard, hardwired smoke alarm, alarm panel, and stairs rising to first floor.
Kitchen Diner
9ft 2 x 14ft 8 plus 12ft 9 into bay x 7ft 5 A modern fully fitted kitchen featuring a range of wall and base units with contrasting countertops, 1 ½ bowl quartz sink with drainer and chrome mixer tap, single fan assisted oven with grill, four ring electric induction hob with stainless steel extractor hood over, integrated dishwasher, plumbing and space for a washing machine and space for fridge freezer. uPVC double glazed door and wooden double glazed bay window to rear elevation, two ceiling pennant lights, down lights, extractor fan, thermostatic radiator, power points, tiles to splash backs, phone point, and tiled flooring.
Occasional Room / Office
10ft 6 x 7ft 4 Wall lighting and LED strip lighting, power points, and column radiator.
WC
5ft 2 x 2ft 7 Low level push flush WC and wash hand basin with black mixer tap. Ceiling light, extractor fan, mosaic tiled splash back, tiled flooring and thermostatic radiator.
First Floor
Landing
12ft 4 x 6ft 6 LED down lights, hardwired smoke alarm, power point, and spindled balustrade. Stairs to second floor.
Lounge
12ft 1 x 14ft 8 uPVC double glazed patio doors to rear elevation opening onto a balcony and wooden double glazed bay window to rear elevation, two ceiling pendant lights and power points.
Third Bedroom
7ft 5 reducing to 4ft x 14ft 5 reducing to 7ft 7 Wooden double-glazed windows to front elevation, ceiling light, period style column radiator, power points and fitted wardrobe.
Family Bathroom
6ft x 7ft 6 A modern white three-piece suite consisting of a panelled bath with a mixer shower on a riser rail and chrome mixer taps, pedestal wash hand basin with chrome mixer tap and low-level push flush WC. Down lights, extractor fan, chrome heated towel radiator, shaver point, partially tiled walls, and tiled flooring.
Second Floor
Landing
6ft 3 x 6ft 7 Spindled balustrade, hard wired smoke alarm, ceiling light and pennant light, power point, and cupboard housing a Worcester combination boiler.
Main Bedroom
10ft 3 x 14ft 8 uPVC double glazed patio doors and windows to rear elevation opening onto a railed balcony overlooking Macclesfield canal, two ceiling lights, period style thermostatic column radiator, power points, tv point, fitted wardrobes and drawers, an integrated bench seat with oak flooring, and door to en-suite.
En-suite
5ft 4 x 7ft 7 reducing to 5ft 6 A modern white three-piece suite consisting of an enclosed shower cubicle with an overhead thermostatic shower with added handheld shower on a riser rail, low level push flush WC and a surface mounted floating vanity wash hand basin with black mixer tap. Ceiling light, extractor fan, chrome heated towel radiator, shaver + USB-A + USB-C connection points, partially tiled walls and contrasting patterned tiled flooring.
Second Bedroom
10ft 2 x 14ft 6 reducing to 11ft 2 Apex wooden double-glazed window to front elevation, two ceiling lights, thermostatic radiator, power points, tv point and recessed space with a fitted wardrobe with hanging rails, overhead storage, and drawers, plus, oak flooring.
Loft
Boarded with raised floor which provides ample space for storage.
External
To the rear of the property, you will find a waterside garden backing onto Macclesfield canal.
The garden is low maintenance and laid with an artificial lawn, alongside a paved patio and is enclosed by timber fence panelling with gated rear access.
The garden also features outdoor power points and has contemporary raised flower beds.
Garage Store
5ft 4 x 8ft 3 Up and over door, wall lighting, utility meters, power points, water tap, mains board and electric car charging point.
DISCLAIMER
CAVEAT EMPTOR - it is the buyer's responsibility to verify and check that all the information is correct and that all goods and services are in working order before committing to purchase the property.
My details are worked in conjunction with my sellers and collectively we aim to ensure that the information provided at the time of advertising is correct and as accurate as possible, however their accuracy is not a guarantee and the information provided does not form part of a contract and are not to be relied upon as statements of fact but only as a guide - particularly relating to specifics of a lease under a leasehold or freehold property.
Any services and appliances listed in the information set out above have not been tested by me and there is no guarantee is given in relation to their operational ability or efficiency.
All measurements have been taken with a 'laser measure' and are provided as a guide to buyers only and are not to be taken as exact measurements.
Any fixtures and fittings to be included in the sale of the property, even if mentioned above should be clarified with your solicitor before committing to purchase.
- COUNCIL TAXA payment made to your local authority in order to pay for local services like schools, libraries, and refuse collection. The amount you pay depends on the value of the property.Read more about council Tax in our glossary page.
- Band: D
- PARKINGDetails of how and where vehicles can be parked, and any associated costs.Read more about parking in our glossary page.
- Allocated
- GARDENA property has access to an outdoor space, which could be private or shared.
- Private garden
- ACCESSIBILITYHow a property has been adapted to meet the needs of vulnerable or disabled individuals.Read more about accessibility in our glossary page.
- Ask agent
Rose Wharf, Macclesfield
Add an important place to see how long it'd take to get there from our property listings.
__mins driving to your place
Get an instant, personalised result:
- Show sellers you’re serious
- Secure viewings faster with agents
- No impact on your credit score
Your mortgage
Notes
Staying secure when looking for property
Ensure you're up to date with our latest advice on how to avoid fraud or scams when looking for property online.
Visit our security centre to find out moreDisclaimer - Property reference S1495917. The information displayed about this property comprises a property advertisement. Rightmove.co.uk makes no warranty as to the accuracy or completeness of the advertisement or any linked or associated information, and Rightmove has no control over the content. This property advertisement does not constitute property particulars. The information is provided and maintained by eXp UK, North West. Please contact the selling agent or developer directly to obtain any information which may be available under the terms of The Energy Performance of Buildings (Certificates and Inspections) (England and Wales) Regulations 2007 or the Home Report if in relation to a residential property in Scotland.
*This is the average speed from the provider with the fastest broadband package available at this postcode. The average speed displayed is based on the download speeds of at least 50% of customers at peak time (8pm to 10pm). Fibre/cable services at the postcode are subject to availability and may differ between properties within a postcode. Speeds can be affected by a range of technical and environmental factors. The speed at the property may be lower than that listed above. You can check the estimated speed and confirm availability to a property prior to purchasing on the broadband provider's website. Providers may increase charges. The information is provided and maintained by Decision Technologies Limited. **This is indicative only and based on a 2-person household with multiple devices and simultaneous usage. Broadband performance is affected by multiple factors including number of occupants and devices, simultaneous usage, router range etc. For more information speak to your broadband provider.
Map data ©OpenStreetMap contributors.




