Woolscroft View, Hemingfield, Barnsley, S73

Letting details
- Let available date:
- Now
- Deposit:
- £1,096A deposit provides security for a landlord against damage, or unpaid rent by a tenant.Read more about deposit in our glossary page.
- Min. Tenancy:
- Ask agent How long the landlord offers to let the property for.Read more about tenancy length in our glossary page.
- Let type:
- Long term
- Furnish type:
- Ask agent
- Council Tax:
- Ask agent
- PROPERTY TYPE
Town House
- BEDROOMS
3
- BATHROOMS
2
- SIZE
Ask agent
Description
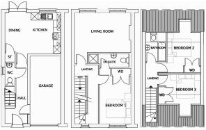
This impressive home offers generous accommodation arranged over three floors, complemented by an integral single garage and a private enclosed garden to the rear.
The ground floor opens into a welcoming reception hall, giving access to a convenient cloakroom/WC and a superb family dining kitchen. This generous space is fitted with fully integrated appliances and finished to a high standard, with French doors that flow effortlessly out to the rear patio and lawned garden, creating the perfect setting for both family dining and summer entertaining.
To the first floor, a light and inviting landing leads to a stylish lounge, enjoying excellent proportions and a peaceful outlook. The master bedroom is also positioned on this level, complete with builtin wardrobes and its own private en-suite, providing the ideal retreat at the end of the day.
The second floor accommodates two further double bedrooms, each benefiting from built-in wardrobes and attractive roofline features including bay and dormer detailing. A well-appointed family bathroom completes the accommodation on this level, offering versatility for guests, teenagers or blended family living.
Externally, the property enjoys a neatly enclosed rear garden with patio and lawn, perfect for outdoor relaxation, along with the convenience of an integral garage and driveway parking.
Woolscroft View is a quiet cul-de-sac of only seventeen homes, positioned just off School Street in the highly regarded village of Hemingfield.
The area provides a range of everyday amenities including charming public houses, a local Post Office, pharmacy and well-regarded primary school. Excellent commuter links are close at hand with easy access to the Dearne Valley Parkway leading directly to junction 36 of the M1 motorway, ideal for travel towards Sheffield, Leeds and beyond. Countryside walks, nearby reservoirs and local attractions further enhance the appeal of this sought-after location, making it perfectly suited to professional families seeking convenience, community and a balanced lifestyle.
- COUNCIL TAXA payment made to your local authority in order to pay for local services like schools, libraries, and refuse collection. The amount you pay depends on the value of the property.Read more about council Tax in our glossary page.
- Ask agent
- PARKINGDetails of how and where vehicles can be parked, and any associated costs.Read more about parking in our glossary page.
- Yes
- GARDENA property has access to an outdoor space, which could be private or shared.
- Yes
- ACCESSIBILITYHow a property has been adapted to meet the needs of vulnerable or disabled individuals.Read more about accessibility in our glossary page.
- Ask agent
Energy performance certificate - ask agent
Woolscroft View, Hemingfield, Barnsley, S73
Add an important place to see how long it'd take to get there from our property listings.
__mins driving to your place
Notes
Staying secure when looking for property
Ensure you're up to date with our latest advice on how to avoid fraud or scams when looking for property online.
Visit our security centre to find out moreDisclaimer - Property reference 1686. The information displayed about this property comprises a property advertisement. Rightmove.co.uk makes no warranty as to the accuracy or completeness of the advertisement or any linked or associated information, and Rightmove has no control over the content. This property advertisement does not constitute property particulars. The information is provided and maintained by Armitage Sorby, Barnsley. Please contact the selling agent or developer directly to obtain any information which may be available under the terms of The Energy Performance of Buildings (Certificates and Inspections) (England and Wales) Regulations 2007 or the Home Report if in relation to a residential property in Scotland.
*This is the average speed from the provider with the fastest broadband package available at this postcode. The average speed displayed is based on the download speeds of at least 50% of customers at peak time (8pm to 10pm). Fibre/cable services at the postcode are subject to availability and may differ between properties within a postcode. Speeds can be affected by a range of technical and environmental factors. The speed at the property may be lower than that listed above. You can check the estimated speed and confirm availability to a property prior to purchasing on the broadband provider's website. Providers may increase charges. The information is provided and maintained by Decision Technologies Limited. **This is indicative only and based on a 2-person household with multiple devices and simultaneous usage. Broadband performance is affected by multiple factors including number of occupants and devices, simultaneous usage, router range etc. For more information speak to your broadband provider.
Map data ©OpenStreetMap contributors.




