Millbrook Road, Paignton

- PROPERTY TYPE
Terraced
- BEDROOMS
2
- BATHROOMS
1
- SIZE
Ask agent
- TENUREDescribes how you own a property. There are different types of tenure - freehold, leasehold, and commonhold.Read more about tenure in our glossary page.
Freehold
Key features
- To Arrange A Viewing, When Calling Please Quote CS1097
- Beautifully Presented Character Home
- Two Double Bedrooms
- Sitting Room
- Kitchen/Diner
- Utility Room
- Ground Floor Bathroom/WC
- Courtyard Garden To Rear
- Gas Central Heating & Double Glazing
- Convenient For Town Centre & Amenities
Description
To arrange a viewing, when calling please quote CS1097.
In a tucked away location and just a short walk to the amenities of the town centre the property offers a beautifully presented period home in Paignton. Approached from the road, a storm porch with composite door opens into the hallway and then to the ground floor accommodation which comprises a sitting room, kitchen/dining room, utility and bathroom/WC. On the first floor are two very generously sized double bedrooms. The property is further complimented throughout with UPVC double glazed windows and gas central heating operated by a Smart heating system. Outside is a courtyard garden to the rear which is accessed from the utility room.
Millbrook Road is situated just minutes’ walk from the amenities of the town which offers a varied range of shopping facilities, health surgeries, restaurants, cafes & bars, a train station and bus station.
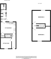
The accommodation comprises
Storm porch with composite door to:
ENTRANCE HALL - 3.84m x 0.79m (12'7" x 2'7")
Light point, smoke detector, picture rails, stairs with handrail to first floor, dado rails, radiator with thermostat control, doors to:
SITTING ROOM - 3.15m x 3.05m (10'4" x 10'0")
KITCHEN/DINER - 3.86m x 3.33m (12'8" x 10'11")
Pendant light point, picture rails, UPVC double glazed window overlooking the rear courtyard, radiator with thermostat control. Fitted kitchen comprising a range of base and drawer units with roll-edged work surfaces over, inset sink and drainer, space for electric cooker, tiled surrounds, matching eye level cabinets. Storage cupboards and shelving to chimney recesses, understairs, storage cupboard with light point and shelving. Door to:
UTILITY ROOM - 2.06m x 1.65m (6'9" x 5'5")
Pendant light point, smoke detector, UPVC double glazed window and door opening to the rear courtyard, radiator with thermostat control, space for under worktop appliances, space and plumbing for washing machine, eye-level cabinets, storage cupboard with shelving. Door to:
BATHROOM/WC - 3m x 1.63m (9'10" x 5'4")
FIRST FLOOR LANDING
Pendant light point, hatch to loft space, smoke detector, picture rails, doors to:
BEDROOM ONE - 4.17m x 3.05m plus recess (13'8" x 10'0")
Pendant light point, picture rails, UPVC double gazed window to front aspect, feature fireplace with timber surround, TV connection point, radiator with thermostat control.
BEDROOM TWO - 4.14m x 3.2m plus recess (13'7" x 10'6")
OUTSIDE
USEFUL INFORMATION
Tenure - Freehold
Age - Late Victorian/Edwardian
Heating - Gas central heating
Drainage - Mains
Windows - Double glazed
Council Tax - Tax band B
EPC Rating - Await EPC
Broadband – 1800
Mobile – Signal strength (0-4) EE: 4, Three: 4, O2: 4, Vodafone: 4
Brochures
Brochure 1- COUNCIL TAXA payment made to your local authority in order to pay for local services like schools, libraries, and refuse collection. The amount you pay depends on the value of the property.Read more about council Tax in our glossary page.
- Band: B
- PARKINGDetails of how and where vehicles can be parked, and any associated costs.Read more about parking in our glossary page.
- No parking
- GARDENA property has access to an outdoor space, which could be private or shared.
- Yes
- ACCESSIBILITYHow a property has been adapted to meet the needs of vulnerable or disabled individuals.Read more about accessibility in our glossary page.
- Ask agent
Energy performance certificate - ask agent
Millbrook Road, Paignton
Add an important place to see how long it'd take to get there from our property listings.
__mins driving to your place
Get an instant, personalised result:
- Show sellers you’re serious
- Secure viewings faster with agents
- No impact on your credit score
Your mortgage
Notes
Staying secure when looking for property
Ensure you're up to date with our latest advice on how to avoid fraud or scams when looking for property online.
Visit our security centre to find out moreDisclaimer - Property reference S1496028. The information displayed about this property comprises a property advertisement. Rightmove.co.uk makes no warranty as to the accuracy or completeness of the advertisement or any linked or associated information, and Rightmove has no control over the content. This property advertisement does not constitute property particulars. The information is provided and maintained by eXp UK, South West. Please contact the selling agent or developer directly to obtain any information which may be available under the terms of The Energy Performance of Buildings (Certificates and Inspections) (England and Wales) Regulations 2007 or the Home Report if in relation to a residential property in Scotland.
*This is the average speed from the provider with the fastest broadband package available at this postcode. The average speed displayed is based on the download speeds of at least 50% of customers at peak time (8pm to 10pm). Fibre/cable services at the postcode are subject to availability and may differ between properties within a postcode. Speeds can be affected by a range of technical and environmental factors. The speed at the property may be lower than that listed above. You can check the estimated speed and confirm availability to a property prior to purchasing on the broadband provider's website. Providers may increase charges. The information is provided and maintained by Decision Technologies Limited. **This is indicative only and based on a 2-person household with multiple devices and simultaneous usage. Broadband performance is affected by multiple factors including number of occupants and devices, simultaneous usage, router range etc. For more information speak to your broadband provider.
Map data ©OpenStreetMap contributors.




