3 bedroom flat for sale
Flat 11, 5, Meggetland Square, Edinburgh, EH14 1XP

- PROPERTY TYPE
Flat
- BEDROOMS
3
- BATHROOMS
2
- SIZE
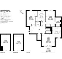
1,066 sq ft
99 sq m
- TENUREDescribes how you own a property. There are different types of tenure - freehold, leasehold, and commonhold.Read more about tenure in our glossary page.
Freehold
Key features
- Open Viewing Sunday 2-4pm
- Property has 2 garages plus residents parking
- Large Balcony with great views of the Castle
- Close to local amenities
- Commuting distance from City Centre
Description
Located in the ever-popular Meggetland development in Craiglockhart is this impressive apartment with a wonderful outlook over to the Castle and the Pentlands. The well-presented accommodation comprises of large open plan living, dining & kitchen spaces leading to an amazing balcony, perfect for entertaining. There are three good sized bedrooms all with fitted storage, an ensuite off the principal, a family bathroom and a handy utility space. Added to this, there is a lift, two garages and off street parking. This beautiful apartment would be ideal for professionals, a young family or downsizers, with local shops on your doorstep, leisure facilities a few minutes’ walk away, numerous golf courses in the vicinity, access to a number of wide-open spaces and excellent transport links both into and out of the city. A wider array of retail outlets and amenities are also available in nearby Morningside, Bruntsfield and Colinton.
Wide open hallway with three generous storage cupboards
Bright spacious living/dining room with high sloping ceiling and full height sliding doors out to a generous balcony with views of the castle
Open plan kitchen/breakfast room with wide range of black high gloss fitted units & appliances and a breakfast bar with stools
Handy utility room with fitted cupboards & washing machine
Large principal bedroom with two fitted wardrobes & views over to the Pentlands, leading to
Modern ensuite bathroom with bath, vanity sink unit, separate walk-in shower & wall hung wc
Two further good-sized double bedrooms both with fitted storage & stunning views
Main bathroom with bath with shower over, vanity sink unit & wall hung wc
Gas central heating from recently upgraded boiler in the utility room
Double glazed throughout
Private balcony offering space for relaxing and entertain, as well as well-maintained landscaped communal gardens
Two separate single garages with light & power and shared parking on the development
Well-maintained lift and communal areas
Factor fee of approx. £115pcm managed by James Gibb, to cover block buildings insurance and maintenance of lift, communal areas and gardens
Craiglockhart is a well-regarded residential area to the south of the city centre, popular with families and young professionals. There are some great shops on the doorstep, including Tesco & Margiotta, together with a restaurant. A wider range of shopping facilities is available in nearby Bruntsfield & Morningside with their array of supermarkets, independent retailers, coffee shops, bars & restaurants. There are also an excellent range of amenities in the vicinity including the very popular independent Dominion Cinema, Church Hill & Kings Theatres and a number of gyms & leisure facilities at the impressive Fountain Park Leisure Complex & Edinburgh Leisure at Craiglockhart. Harrison Park, Bruntsfield Links and the Union Canal walkway are all nearby providing great walks and outside spaces. Heriot Watt, Napier & Edinburgh Universities and the city's financial centre are all just a short bus journey away. The flat is also in the catchment for well-renowned Craiglockhart Primary & Tynecastle High Schools and George Watsons is a few minutes’ walk away. There are numerous bus services from the main road taking you both into and out of town.
Brochures
Brochure- COUNCIL TAXA payment made to your local authority in order to pay for local services like schools, libraries, and refuse collection. The amount you pay depends on the value of the property.Read more about council Tax in our glossary page.
- Band: G
- PARKINGDetails of how and where vehicles can be parked, and any associated costs.Read more about parking in our glossary page.
- Garage
- GARDENA property has access to an outdoor space, which could be private or shared.
- Communal garden
- ACCESSIBILITYHow a property has been adapted to meet the needs of vulnerable or disabled individuals.Read more about accessibility in our glossary page.
- Ask agent
Energy performance certificate - ask agent
Flat 11, 5, Meggetland Square, Edinburgh, EH14 1XP
Add an important place to see how long it'd take to get there from our property listings.
__mins driving to your place
Get an instant, personalised result:
- Show sellers you’re serious
- Secure viewings faster with agents
- No impact on your credit score
Your mortgage
Notes
Staying secure when looking for property
Ensure you're up to date with our latest advice on how to avoid fraud or scams when looking for property online.
Visit our security centre to find out moreDisclaimer - Property reference 268803. The information displayed about this property comprises a property advertisement. Rightmove.co.uk makes no warranty as to the accuracy or completeness of the advertisement or any linked or associated information, and Rightmove has no control over the content. This property advertisement does not constitute property particulars. The information is provided and maintained by Jardine Phillips, Edinburgh. Please contact the selling agent or developer directly to obtain any information which may be available under the terms of The Energy Performance of Buildings (Certificates and Inspections) (England and Wales) Regulations 2007 or the Home Report if in relation to a residential property in Scotland.
*This is the average speed from the provider with the fastest broadband package available at this postcode. The average speed displayed is based on the download speeds of at least 50% of customers at peak time (8pm to 10pm). Fibre/cable services at the postcode are subject to availability and may differ between properties within a postcode. Speeds can be affected by a range of technical and environmental factors. The speed at the property may be lower than that listed above. You can check the estimated speed and confirm availability to a property prior to purchasing on the broadband provider's website. Providers may increase charges. The information is provided and maintained by Decision Technologies Limited. **This is indicative only and based on a 2-person household with multiple devices and simultaneous usage. Broadband performance is affected by multiple factors including number of occupants and devices, simultaneous usage, router range etc. For more information speak to your broadband provider.
Map data ©OpenStreetMap contributors.




