Shortacross View, Widegates, Looe, Cornwall, PL13

- PROPERTY TYPE
End of Terrace
- BEDROOMS
2
- BATHROOMS
1
- SIZE
880 sq ft
82 sq m
Key features
- 30% Shared Ownership Opportunity
- Two Double Bedrooms
- Solar Panels & Air Source Heat Pump
- 21' Lounge/Kitchen/Dining Room
- Utility Room & W/C
- Family Bathroom
- Generous Storage
- Two Car Hardstanding
- Rear Garden
- ER-C
Description
''Enjoy the perfect balance of independence and affordability in your own home.'' Situated in highly sought-after Cornish village of Widegates. Equal-distance to the towns of Liskeard and Looe and is in close proximity to the A38. This shared ownership property is currently offered at a 30% share, but this can increase to a maximum share of 80%. Modern in its construction and deceptively spacious, this property is a MUST to view, once qualified. Arranged over three storey's and 880 sq. ft. offering generous accommodation throughout. On the ground floor is a 21' entrance hallway with two storage cupboards giving access to a modern fitted family bathroom and a double bedroom with a double wardrobe. staircases rising and ascending from this level. On the first floor is a flexible landing that the current owners are utilising as an office space but could be used as a dressing room. This leads to a 13' x 12' master bedroom with eaves storage. The lower ground floor offers a utility room, w/c and a 21' x 16' open plan lounge/kitchen/dining room offering a modern fitted kitchen with integrated appliances and breakfast bar. There are patio doors that give access to the garden and parking areas. The rear garden enclosed and secure with lawn and patio area ideal for alfresco dining/entertaining in the summer months. A gate gives access to a private hardstanding for two cars. The property benefits from solar panels and an air source heat pump. ER-C. ''Step onto the property ladder with this stylish two-bedroom home designed for modern living.''
The Shared Ownership Process
To qualify for the property you must meet all of the requirements detailed below to be able to view. • Have a local connection to the area. • Be a first time buyer or not currently named on a mortgage. • Demonstrate you meet the minimum income requirements. • Demonstrate a deposit sufficient to obtain a mortgage for the property. Once you have met the above requirements and you have viewed the property, to purchase you will need to go through the official application process with Hastoe.
Agents Note
It is recommended that all prospective viewers take the 3d tour before viewing any property with Tamar Estates.
Location
Tucked away in the gentle hills just four miles north of the popular coastal town of Looe, Widegates is a highly desirable rural village offering an exceptional quality of life. This peaceful yet well-connected location strikes the perfect balance between countryside charm and coastal accessibility, making it an increasingly sought-after area for families, professionals, and retirees alike. Set along the A387, the village enjoys effortless road links to Looe, Liskeard, and Plymouth, while nearby rail connections from Liskeard or Menheniot provide direct services to London Paddington, Exeter, and beyond. Residents benefit from the best of both worlds: rural tranquillity with spectacular countryside views, and the convenience of amenities just minutes away. Widegates boasts a strong community spirit and a welcoming atmosphere, underpinned by a predominance of detached homes and long-term homeowners. A well-regarded farm shop and café sit on the village outskirts, offering (truncated)
Location
Families are well-catered for with Trenode CE Primary School just a short distance away, rated ‘Good' by Ofsted, and Looe Community Academy serving secondary-age children nearby. The area is rich in outdoor pursuits—whether it's enjoying the sandy beaches of Seaton and Downderry, exploring the scenic South West Coast Path, or rambling through nearby wooded valleys and moorland. With full fibre broadband widely available, remote working is easily supported, adding to the appeal for those relocating from urban centres. Whether you're looking for a forever family home, a character cottage, or a lifestyle escape near the sea, Widegates offers a rare blend of convenience, natural beauty, and community living in one of Cornwall's most attractive corners.
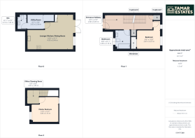
Property
Lounge/Kitchen/Dining Room
4.9m x 6.44m
Utility Room
2.03m x 2.34m
W/C
2.13m x 1.32m
Stair Rise To...
Entrance Hallway
2.06m x 6.65m
Bathroom
2.65m x 2.13m
Storage Cupboard
Bedroom
2.67m x 3.27m
Double Wardrobe
Storage Cupboard
Stairs Rise To..
Office/Dressing Room
2.07m x 1.85m
Master Bedroom
3.8m x 4.16m
Vendor Situation
This property will come with an onward chain.
Directions
What3Words///conducted.friction.economics
Material Information
Tenure: Shared Ownership - Leasehold Lease Length: 125 Years From 2012. 112 Years remain. Service Charge: £32.49 Per Month. Rent: £461.94 Per Month. Council Tax Band: B with Cornwall County Council. Broadband: Standard, Superfast & Ultrafast. Mobile: EE, 3, O2 & Vodafone Likely Mains: Electricity, Water & Drainage. Heating: Electric Rights and Restrictions: This property is being sold at a 30% share and is restricted to a total 80% share. Flood Risk: Very Low Risk <0.1%. Mining: Not Affected By Mining. Construction: Brick & Block. Parking: Two Car Driveway
Disclaimer
1. Accuracy of Information:
These sales particulars have been prepared as a general guide only and do not form part of any offer or contract. All descriptions, dimensions, references to condition, necessary permissions for use and occupation, and other details are provided in good faith and are believed to be accurate at the time of publication. However, they should not be relied upon as statements or representations of fact, and any interested parties should independently verify the accuracy of the information.
2. Measurements and Floor Plans:
All measurements are approximate and provided for general guidance only. Floor plans are not to scale and are for illustrative purposes only. Purchasers are advised to check measurements for specific purposes, such as furniture placement or structural changes.
3. Condition and Suitability:
No warranty or guarantee is provided regarding the condition, structural integrity, or suitability of the property for any specific purpose. Interested parties are advised to obtain professional surveys and legal advice before entering into any contract.
4. Services and Appliances:
The agent has not tested any services, systems, or appliances at the property. Purchasers are encouraged to carry out their own investigations to confirm that these are in working order.
5. Photographs and Marketing Materials:
The photographs, videos, and other marketing materials included in these particulars are for illustrative purposes only and may include items that are not part of the sale. Properties may appear different during viewings.
6. Third-Party Information:
Where information has been provided by third parties (such as planning permissions or legal documentation), the estate agent does not accept liability for any inaccuracies or omissions.
7. Viewing Arrangements:
Viewings are strictly by appointment through the estate agent. Any prospective purchasers entering the property do so at their own risk.
8. Fees:
In accordance with Anti-Money Laundering Regulations, Tamar Estates is legally required to carry out customer due diligence checks on all clients. This includes verifying identity and confirming the source of funds for any transactions. To comply with these legal obligations, we engage third-party providers to conduct the necessary checks. A non-refundable fee of £55.00 (inclusive of VAT) will be charged to cover the cost of these verification processes.
8. Fees: (Continued)
This fee is payable prior to commencing any property marketing or at the point of acceptance of an offer on a property. Failure to provide the required information or complete the necessary checks may result in delays, the termination of our services or your offer not being accepted. For further information on our obligations under the Money Laundering Regulations, please contact us at .
9. Regulatory Compliance:
This property is marketed in compliance with the Consumer Protection from Unfair Trading Regulations 2008, the Business Protection from Misleading Marketing Regulations 2008 & and NTSELAT Material Information Parts A,B & C. Should you have any concerns, please contact the estate agent.
10. Solicitor Referral:
Tamar Estates may refer clients to one of our preferred solicitors for conveyancing or related legal services. Please note that Tamar Estates may receive a referral fee of up to £125.00 (plus VAT, if applicable) from the solicitor upon completion of a transaction. This payment does not affect the fees you are charged by the solicitor, and you are under no obligation to use any solicitor recommended by us. You are free to appoint any solicitor of your choice.
Brochures
Particulars- COUNCIL TAXA payment made to your local authority in order to pay for local services like schools, libraries, and refuse collection. The amount you pay depends on the value of the property.Read more about council Tax in our glossary page.
- Band: B
- PARKINGDetails of how and where vehicles can be parked, and any associated costs.Read more about parking in our glossary page.
- Driveway,Off street,Rear,Private,Allocated
- GARDENA property has access to an outdoor space, which could be private or shared.
- Yes
- ACCESSIBILITYHow a property has been adapted to meet the needs of vulnerable or disabled individuals.Read more about accessibility in our glossary page.
- No wheelchair access
Shortacross View, Widegates, Looe, Cornwall, PL13
Add an important place to see how long it'd take to get there from our property listings.
__mins driving to your place
Get an instant, personalised result:
- Show sellers you’re serious
- Secure viewings faster with agents
- No impact on your credit score
Affordability
Notes
Staying secure when looking for property
Ensure you're up to date with our latest advice on how to avoid fraud or scams when looking for property online.
Visit our security centre to find out moreDisclaimer - Property reference TMR250243. The information displayed about this property comprises a property advertisement. Rightmove.co.uk makes no warranty as to the accuracy or completeness of the advertisement or any linked or associated information, and Rightmove has no control over the content. This property advertisement does not constitute property particulars. The information is provided and maintained by Tamar Estates, Liskeard. Please contact the selling agent or developer directly to obtain any information which may be available under the terms of The Energy Performance of Buildings (Certificates and Inspections) (England and Wales) Regulations 2007 or the Home Report if in relation to a residential property in Scotland.
*This is the average speed from the provider with the fastest broadband package available at this postcode. The average speed displayed is based on the download speeds of at least 50% of customers at peak time (8pm to 10pm). Fibre/cable services at the postcode are subject to availability and may differ between properties within a postcode. Speeds can be affected by a range of technical and environmental factors. The speed at the property may be lower than that listed above. You can check the estimated speed and confirm availability to a property prior to purchasing on the broadband provider's website. Providers may increase charges. The information is provided and maintained by Decision Technologies Limited. **This is indicative only and based on a 2-person household with multiple devices and simultaneous usage. Broadband performance is affected by multiple factors including number of occupants and devices, simultaneous usage, router range etc. For more information speak to your broadband provider.
Map data ©OpenStreetMap contributors.





