
Watermouth Road, Ilfracombe, Devon, EX34
- PROPERTY TYPE
Restaurant
- SIZE
Ask agent
Key features
- Former Pub and Restaurant with living accommodation over
- Ideal for residential development or commercial uses
- Planning permission passed for conversion to two large 2 bedroom maisonettes
- Potential to convert to one large residential dwelling (subject to consent)
- Overall floor area of 219m2 (3,434ft2)
- Single storey ancillary building/store at the rear
- Large sloping plot and gardens with sea views; in total 0.19 acres
- Just 200 metres from Hele Beach
- Great scope and potential in a sought after location
- No onward chain
Description
THE PROPERTY
The property has been used in the past for a variety of purposes including a guest house, restaurant, tea room and in more recent years has been used as a large freehold freehouse/restaurant and a private home. The building is now vacant and is in need of some modernisation and renovation works.
Planning permission was granted on 5th December 2023 for the conversion and change of use of the bar and restaurant to form two individual residential apartments thus giving the property plenty of scope for significant redevelopment. The consented planning provides for two large 2 bedroom maisonettes each with their own areas of garden/outside space. There is also potential to obtain consent for the property to become one large single residential dwelling as well if desired but this would require a fresh application to the Local Authority.
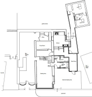
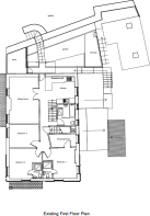
At present, the building is arranged with accommodation over three floors. The ground floor is the commercial space and comprises what was a 24 seater restaurant area with a large through bar, with public toilets, a commercial kitchen and freezer room. The private accommodation is located on the upper floors. On the first floor there are three bedrooms (two with en-suite facilities, one with a dressing room), a guest bathroom and to the rear there is a 20ft lounge and a private kitchen. On the top floor level there is a further bedroom/games room with sea views. In total, there is approximately 319m2 (3,434ft2), of floor area within the property. (Floor area taken from the EPC).
In all, the property occupies a large plot of approximately 0.19 acres with amenity spaces immediately adjacent to the building in the form of courtyards, patios and a couple of balconies at the rear. There is a very large albeit steep and overgrown rear garden which extends away from the property and up over the side of the hill. Furthermore, there is a store shed and useful additional detached single storey office building come store with a wc to the rear as well.
LOCATION
Fronting the main Eastern approach road into the resort of Ilfracombe within the popular hamlet of Hele, the subject premises are in a prime position for passing trade. The property is within a short distance of the picturesque Hele Cove and beach, large public car park and un-restricted parking on the main roadside. The town of Ilfracombe is approximately 1 ½ miles away and offers a host of tourist facilities including beaches, tennis courts, gift shops and of course the harbour. Ilfracombe has undergone much inward investment in recent years including a Wetherspoon’s Public House, a Tesco’s, a Lidl’s and Co-Op supermarkets. The world renowned artist Damien Hirst has given on loan to the town a statue called ‘Verity’ which is located on the pier which has attracted thousands of day visitors to the resort. There are schools for all ages, a Medical Centre and Hospital and the usual facilities you would expect to find in a good-sized town.
All mains services are available. The property is subject to business rates and council tax currently.
The rateable value of the commercial element is £9,800 per annum and the council tax is band A.
EPC: C
Traditional Online Auction Information
Please note: this property is for sale by traditional online auction. This means that exchange will occur when the online timer reaches zero (provided the seller's reserve price has been met or exceeded). The winning buyer will be legally obliged to purchase the property at this price.
Pricing Information
The Guide Price amount specified is an indication of each seller's minimum expectation. It is not necessarily the amount at which the property will sell. Each property will be offered subject to a Reserve (a figure below which the property will not be sold) which we expect will be set no more than 10% above the Guide Price amount.
Webbers and Bamboo Auctions shall not be liable for any inaccuracies in the fees stated on this description page, in the bidding confirmation pop up or in the particulars. Buyers should check the contents of the legal pack and special conditions for accurate information on fees. Where there is a conflict between the fees stated in the particulars, the bid information box or the bidding confirmation pop up and the contents of the legal pack, the contents of the legal pack shall prevail. Stamp Duty Land Tax or Land and Buildings Transaction Tax may also apply in some circumstances.
Buyer’s Premium & Other Charges
The winning buyer is charged a sum of £5,000. From this a buyers fee of £3,960 (including VAT) is retained by Webbers/Bamboo Auctions as a contribution towards online platform costs and £1,040 is payable towards the purchase price. On completion the Buyer will pay the sum of £468.99 (including vat) to the Seller’s solicitors in reimbursement of search fees.
SELLER'S SOLICITOR
Marius Nel
Brewer Harding & Rowe Solicitors LLP
6/8 Caen Street
Barnstaple
Devon
EX34 1AA
Email: marius.
Tel:
Applicants are advised to proceed from out offices in an easterly direction along the High Street heading out of town sign posted Combe Martin. Continue on into Portland Street and follow the road passing Lantern Court (McCarthy & Stone) and through the traffic lights. Continue along the road passing the Thatched Inn and continue over the brow of the hill and down in to Hele Bay. 26 Watermouth Road will be found at the bottom of the hill on the left-hand side, immediately opposite the Service Station.
Ground Floor - Former Commercial Area
Entrance Hall
2.87m x 1.35m
Ladies Toilet
2.18m x 1.32m
Gents Toilet
3.68m x 1.52m
Including toilet cubicle
Seating/Dining Area
8m x 3.89m
Through Bar & Lounge
12.93m x 3.89m
Office/Store
2.95m x 1.63m
Inner Lobby
4m x 1.47m
Pump Room/Beer Cellar
3.89m x 1.98m
Commercial Kitchen
5.92m x 2.82m
Freezer Room/Side Conservatory
4.34m x 2.13m
First Floor - Private Living Accommodation
Hallway
6.48m x 1.9m
Kitchen
4.6m x 3.1m
Lounge
6.05m x 3.86m
Bedroom 1
4.04m x 3.86m
Dressing Room
3.43m x 1.75m
En Suite Shower Room
2.18m x 1.1m
Bedroom 2
4.2m x 3.84m
En Suite Shower Room
1.96m x 1.12m
Bedroom 3
3.8m x 2.97m
Family Bathroom
2.67m x 2.62m
Second Floor
Living Room/Bedroom
8.64m x 4.78m
Plus deep dormer recess leading to rear balcony
Brochures
ParticularsEnergy Performance Certificates
EPC Rating GraphEPC Rating GraphWatermouth Road, Ilfracombe, Devon, EX34
NEAREST STATIONS
Distances are straight line measurements from the centre of the postcode- Barnstaple Station9.5 miles



Notes
Disclaimer - Property reference BAR250739. The information displayed about this property comprises a property advertisement. Rightmove.co.uk makes no warranty as to the accuracy or completeness of the advertisement or any linked or associated information, and Rightmove has no control over the content. This property advertisement does not constitute property particulars. The information is provided and maintained by Webbers Property Services, Ilfracombe. Please contact the selling agent or developer directly to obtain any information which may be available under the terms of The Energy Performance of Buildings (Certificates and Inspections) (England and Wales) Regulations 2007 or the Home Report if in relation to a residential property in Scotland.
Auction Fees: The purchase of this property may include associated fees not listed here, as it is to be sold via auction. To find out more about the fees associated with this property please call Webbers Property Services, Ilfracombe on 020 3872 4869.
*Guide Price: An indication of a seller's minimum expectation at auction and given as a Guide Price or a range of Guide Prices. This is not necessarily the figure a property will sell for and is subject to change prior to the auction.
Reserve Price: Each auction property will be subject to a Reserve Price below which the property cannot be sold at auction. Normally the Reserve Price will be set within the range of Guide Prices or no more than 10% above a single Guide Price.
Map data ©OpenStreetMap contributors.







