
Tudor Road, Hednesford

- PROPERTY TYPE
Detached
- BEDROOMS
3
- BATHROOMS
1
- SIZE
Ask agent
- TENUREDescribes how you own a property. There are different types of tenure - freehold, leasehold, and commonhold.Read more about tenure in our glossary page.
Freehold
Key features
- Spacious three bedroom detached family home
- Generous plot with substantial rear garden
- NO ONWARD CHAIN
- Much cherrished family home for over 50 years
- Popular residential area of Hednesford near to Cannock Chase
Description
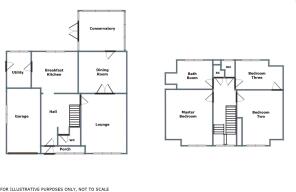
The property is being offered with NO ONWARD CHAIN and briefly comprises: porch, large entrance hallway, lounge, dining room, conservatory and breakfast kitchen with separate utility, WC, integral garage, gallery landing to the family bathroom, WC, and three bedrooms.
There is ample parking to the front of the property on the private driveway and the substantial rear garden features a patio area, mature planted borders and large lawn area as well as shed to the rear.
Other benefits include: double glazing and gas central heating throughout.
The property is well placed to provide easy access to Cannock & Hednesford town centres, both offering a wide range of amenities with both local & national bus and train services available. The location also benefits from being just a few minutes away from Cannock Chase, an area of outstanding natural beauty. Commuter benefits include A460, A5 and M6 toll road linking the midlands motorway network.
RECEPTION HALL:
Accessed the the front porch it features: entrance door, carpeted flooring, ceiling light point, radiator, stairs to first floor, opening to the breakfast-kitchen, doors to the WC and lounge.
LOUNGE:
11' 0'' x 13' 11'' (3.35m x 4.25m)
Feature fireplace with fitted coal effect gas fire, carpeted flooring, coving, ceiling light point, radiator, window to the front and French doors to the dining room.
DINING AREA:
11' 7'' x 9' 8'' (3.52m x 2.95m)
Carpeted flooring, ceiling light points, radiator, window and door into the conservatory.
CONSERVATORY:
11' 3'' x 9' 7'' (3.42m x 2.92m)
Pitched poly-carbonate roof with UPVC frame set on a brick base, laminate flooring, ceiling light and fan, French doors to the garden.
BREAKFAST KITCHEN:
11' 3'' x 9' 11'' (3.42m x 3.03m)
Range of matching wall and base units incorporating cabinets, drawers and work surfaces, inset bowl sink and drainer with mono tap, integrated electric double oven/grill and 4 ring gas hob, space for fridge or freezer, laminate flooring, light point, door to the utility, and window to the rear.
UTILITY:
5' 9'' x 8' 9'' (1.75m x 2.66m)
Further range of matching wall and base units with fitted cabinets, work tops, space for white goods, light point, laminate flooring, window to the rear and door to the side.
WC:
Low level WC, light point and window to the front.
GARAGE:
8' 0'' x 15' 9'' (2.45m x 4.80m)
Up and over front door, light and electric points, window to the side.
FIRST FLOOR LANDING:
Carpeted flooring, ceiling light point, window to the front, window to the front, doors off to three bedrooms, family bathroom, WC and useful storage cupboard.
BEDROOM ONE:
11' 7'' x 13' 7'' (3.53m x 4.15m)
Carpeted flooring, radiator, ceiling light point and window to front.
BEDROOM TWO:
11' 0'' x 13' 7'' (3.35m x 4.15m)
Carpeted flooring, ceiling light point, radiator, window to front and door into bedroom three.
BEDROOM THREE:
11' 6'' x 7' 1'' (3.51m x 2.15m)
Carpeted flooring, ceiling light point, radiator and window to the rear.
FAMILY BATHROOM:
Suite comprising: bath, pedestal wash hand basin, shower, wall tiling, vinyl flooring, ceiling lights, radiator and window to rear.
WC:
Low level WC, light point, window to the rear.
VIEWING:
Please contact us on if you would like to arrange a viewing appointment for this property or require further information.
DISCLAIMER:
These particulars are set up as a general outline only for the guidance of intending purchasers or lessees, and do not constitute part of an offer or contract. The sellers has given permission for all descriptions, dimensions, references to conditions, tenure, service charges and necessary permissions for use, occupation and other details to be used and we have taken them in good faith whether included or not & whilst we believe them to be correct, any intending purchasers or tenants should not rely on them as representations or fact but must satisfy themselves by inspection or otherwise as to the correctness of each of them and have this certified during the conveyancing by their solicitor. No person in the employment of Lovett&Co has any authority to make or give any representation or warranty whatsoever in relation to this property.
Brochures
Property BrochureFull Details- COUNCIL TAXA payment made to your local authority in order to pay for local services like schools, libraries, and refuse collection. The amount you pay depends on the value of the property.Read more about council Tax in our glossary page.
- Band: D
- PARKINGDetails of how and where vehicles can be parked, and any associated costs.Read more about parking in our glossary page.
- Yes
- GARDENA property has access to an outdoor space, which could be private or shared.
- Yes
- ACCESSIBILITYHow a property has been adapted to meet the needs of vulnerable or disabled individuals.Read more about accessibility in our glossary page.
- Ask agent
Energy performance certificate - ask agent
Tudor Road, Hednesford
Add an important place to see how long it'd take to get there from our property listings.
__mins driving to your place
Get an instant, personalised result:
- Show sellers you’re serious
- Secure viewings faster with agents
- No impact on your credit score
Your mortgage
Notes
Staying secure when looking for property
Ensure you're up to date with our latest advice on how to avoid fraud or scams when looking for property online.
Visit our security centre to find out moreDisclaimer - Property reference 12455068. The information displayed about this property comprises a property advertisement. Rightmove.co.uk makes no warranty as to the accuracy or completeness of the advertisement or any linked or associated information, and Rightmove has no control over the content. This property advertisement does not constitute property particulars. The information is provided and maintained by Lovett&Co. Estate Agents, Lichfield. Please contact the selling agent or developer directly to obtain any information which may be available under the terms of The Energy Performance of Buildings (Certificates and Inspections) (England and Wales) Regulations 2007 or the Home Report if in relation to a residential property in Scotland.
*This is the average speed from the provider with the fastest broadband package available at this postcode. The average speed displayed is based on the download speeds of at least 50% of customers at peak time (8pm to 10pm). Fibre/cable services at the postcode are subject to availability and may differ between properties within a postcode. Speeds can be affected by a range of technical and environmental factors. The speed at the property may be lower than that listed above. You can check the estimated speed and confirm availability to a property prior to purchasing on the broadband provider's website. Providers may increase charges. The information is provided and maintained by Decision Technologies Limited. **This is indicative only and based on a 2-person household with multiple devices and simultaneous usage. Broadband performance is affected by multiple factors including number of occupants and devices, simultaneous usage, router range etc. For more information speak to your broadband provider.
Map data ©OpenStreetMap contributors.





