
Station Road, Westminster House Station Road, RH20

- PROPERTY TYPE
Flat
- BEDROOMS
2
- BATHROOMS
1
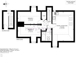
- SIZE
622 sq ft
58 sq m
Key features
- Convenient location
- Open plan Kitchen/Dining/Sitting room
- Security entry system
- Close to mainline station
- Elevated views
- No ongoing chain
- Two bedrooms
- Top floor apartment with South Down Views
Description
Introducing this modern 2 bedroom flat, formerly the old NatWest Bank converted in 2017. Conveniently located for the village amenities and moments away from the mainline station. Situated at the top floor of the building, this property boasts elevated views of the picturesque South Downs.
Upon entering, you are greeted with a secure entry system ensuring peace of mind and added convenience for residents. Once inside the apartment there is a useful private entrance hall before ascending to the accommodation. The inviting open plan kitchen/dining/sitting room, perfect for modern living and entertaining guests. The space is filled with natural light, creating a warm and welcoming atmosphere.
The property features two bedrooms, providing space for residents to rest and relax. The flat is beautifully presented throughout, offering a contemporary and stylish living environment. With no ongoing chain, the process of making this property your own is straightforward and hassle-free.
Whether you are a first-time buyer, downsizer, or investor, this property offers a fantastic opportunity to own a home in a desirable area with breath taking views. Don't miss out on the chance to make this stylish and modern flat your own.
Lease details 125 years from 27th October 2017
Ground rent: £150 per annum
Service charge: On average around £200 per flat per month, this includes insurance and block management charges.
EPC Rating: C
Brochures
Property Brochure- COUNCIL TAXA payment made to your local authority in order to pay for local services like schools, libraries, and refuse collection. The amount you pay depends on the value of the property.Read more about council Tax in our glossary page.
- Band: B
- PARKINGDetails of how and where vehicles can be parked, and any associated costs.Read more about parking in our glossary page.
- Ask agent
- GARDENA property has access to an outdoor space, which could be private or shared.
- Ask agent
- ACCESSIBILITYHow a property has been adapted to meet the needs of vulnerable or disabled individuals.Read more about accessibility in our glossary page.
- Ask agent
Energy performance certificate - ask agent
Station Road, Westminster House Station Road, RH20
Add an important place to see how long it'd take to get there from our property listings.
__mins driving to your place
Get an instant, personalised result:
- Show sellers you’re serious
- Secure viewings faster with agents
- No impact on your credit score


Your mortgage
Notes
Staying secure when looking for property
Ensure you're up to date with our latest advice on how to avoid fraud or scams when looking for property online.
Visit our security centre to find out moreDisclaimer - Property reference cdc3d64e-b17a-4084-821e-9a097c819112. The information displayed about this property comprises a property advertisement. Rightmove.co.uk makes no warranty as to the accuracy or completeness of the advertisement or any linked or associated information, and Rightmove has no control over the content. This property advertisement does not constitute property particulars. The information is provided and maintained by Henry Adams, Storrington and Billinghurst. Please contact the selling agent or developer directly to obtain any information which may be available under the terms of The Energy Performance of Buildings (Certificates and Inspections) (England and Wales) Regulations 2007 or the Home Report if in relation to a residential property in Scotland.
*This is the average speed from the provider with the fastest broadband package available at this postcode. The average speed displayed is based on the download speeds of at least 50% of customers at peak time (8pm to 10pm). Fibre/cable services at the postcode are subject to availability and may differ between properties within a postcode. Speeds can be affected by a range of technical and environmental factors. The speed at the property may be lower than that listed above. You can check the estimated speed and confirm availability to a property prior to purchasing on the broadband provider's website. Providers may increase charges. The information is provided and maintained by Decision Technologies Limited. **This is indicative only and based on a 2-person household with multiple devices and simultaneous usage. Broadband performance is affected by multiple factors including number of occupants and devices, simultaneous usage, router range etc. For more information speak to your broadband provider.
Map data ©OpenStreetMap contributors.





