13B Walnut Crescent, Johnstone, PA5

- PROPERTY TYPE
Ground Flat
- BEDROOMS
1
- BATHROOMS
1
- SIZE
Ask agent
- TENUREDescribes how you own a property. There are different types of tenure - freehold, leasehold, and commonhold.Read more about tenure in our glossary page.
Freehold
Key features
- Central heating
- Double glazed
- Parking
- Washing machine
- White goods
- Utilities included
Description
Property number 52626. Enquire through Rightmove's messaging system and we'll respond within 5 minutes, 24/7
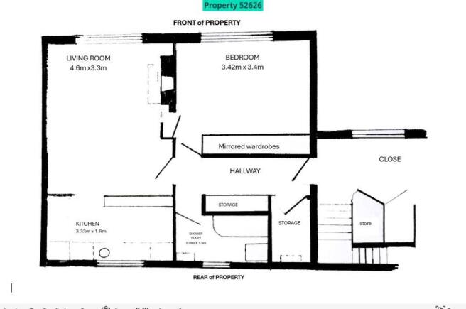
The hall is spacious, with walk-in storage and easy access to all rooms. A contemporary fully tiled shower room with walk in shower with white wash-hand basin and WC. A clean, functional space with a rear window . The flat has 1 double bedroom to the front with plenty of storage afforded by large mirrored wardrobes plus a shelved cupboard leaving ample room for freestanding furniture. Natural light via a large picture window.
The well proportioned living room has a fireplace with electric fire. Overlooks the front driveway and private car parking space. Adjacent to the living space, the kitchen area is functional, with ample storage and modern appliances, convenient for everyday living. Ideal for first-time buyers, downsizers, or investors, this flat presents an excellent opportunity to enjoy the benefits of Johnstone, combined with modern comfort and convenience.
Living Room: 4.6 m by 3.33m space for dining furniture as well as usual seating and storage units.
Bedroom: 3.42m by 3.4m Great built-in storage plus space for a double bed and freestanding furniture. Carpet & blinds included.
Shower Room: 2.28m by 1.50m Gives fully tiled access to a shower with white WC and wash-hand basin. A light and airy room with window.
Kitchen: 3.33m by 1.9m a practical and functional room with breakfast bar. Ample workspace for food prep and storage plus laundry facilities.
Hallway: 3.55m by 0.96m gives walk-in storage and shelved cupboards. Added walk-in storage in a lockable cupboard in the close.
- COUNCIL TAXA payment made to your local authority in order to pay for local services like schools, libraries, and refuse collection. The amount you pay depends on the value of the property.Read more about council Tax in our glossary page.
- Ask agent
- PARKINGDetails of how and where vehicles can be parked, and any associated costs.Read more about parking in our glossary page.
- Yes
- GARDENA property has access to an outdoor space, which could be private or shared.
- Ask agent
- ACCESSIBILITYHow a property has been adapted to meet the needs of vulnerable or disabled individuals.Read more about accessibility in our glossary page.
- Ask agent
Energy performance certificate - ask agent
13B Walnut Crescent, Johnstone, PA5
Add an important place to see how long it'd take to get there from our property listings.
__mins driving to your place
Get an instant, personalised result:
- Show sellers you’re serious
- Secure viewings faster with agents
- No impact on your credit score
Your mortgage
Notes
Staying secure when looking for property
Ensure you're up to date with our latest advice on how to avoid fraud or scams when looking for property online.
Visit our security centre to find out moreDisclaimer - Property reference 52626. The information displayed about this property comprises a property advertisement. Rightmove.co.uk makes no warranty as to the accuracy or completeness of the advertisement or any linked or associated information, and Rightmove has no control over the content. This property advertisement does not constitute property particulars. The information is provided and maintained by Visum, Nationwide. Please contact the selling agent or developer directly to obtain any information which may be available under the terms of The Energy Performance of Buildings (Certificates and Inspections) (England and Wales) Regulations 2007 or the Home Report if in relation to a residential property in Scotland.
*This is the average speed from the provider with the fastest broadband package available at this postcode. The average speed displayed is based on the download speeds of at least 50% of customers at peak time (8pm to 10pm). Fibre/cable services at the postcode are subject to availability and may differ between properties within a postcode. Speeds can be affected by a range of technical and environmental factors. The speed at the property may be lower than that listed above. You can check the estimated speed and confirm availability to a property prior to purchasing on the broadband provider's website. Providers may increase charges. The information is provided and maintained by Decision Technologies Limited. **This is indicative only and based on a 2-person household with multiple devices and simultaneous usage. Broadband performance is affected by multiple factors including number of occupants and devices, simultaneous usage, router range etc. For more information speak to your broadband provider.
Map data ©OpenStreetMap contributors.




