Hopkinson Way, Scartho Top, Grimsby

- PROPERTY TYPE
Detached
- BEDROOMS
3
- BATHROOMS
2
- SIZE
Ask agent
Key features
- 3 Bed Detached
- Brand New Development
- Available on Shared Ownership
- Close To Town Center
- En Suite Bathroom
- Contact Us Today For More Information
Description
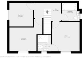
Ground floor accommodation comprises:
- Entrance hallway with storage cupboard and downstairs WC
- Kitchen diner with modern fitted kitchen suite
- Living room with double patio doors opening to rear garden
To the first floor:
- Double bedroom with built in storage cupboard and en-suite
- Double bedroom with views over rear garden
- Single Bedroom
- Family bathroom with four piece fitted bathroom suite
The council tax bands are yet to be determined for this new build property, for more information about council tax is this area you can visit the North East Lincolnshire Council website.
Shared Ownership
The price of £24,500 is for a 10% share in the property, with monthly rent of £505.31 being payable on the outstanding amount. Other share amounts are available subject to affordability. There is a monthly service charge of £19.07. Interested parties are required to complete a short financial assessment prior to application.
Brochures
KID- COUNCIL TAXA payment made to your local authority in order to pay for local services like schools, libraries, and refuse collection. The amount you pay depends on the value of the property.Read more about council Tax in our glossary page.
- Ask agent
- PARKINGDetails of how and where vehicles can be parked, and any associated costs.Read more about parking in our glossary page.
- Ask agent
- GARDENA property has access to an outdoor space, which could be private or shared.
- Yes
- ACCESSIBILITYHow a property has been adapted to meet the needs of vulnerable or disabled individuals.Read more about accessibility in our glossary page.
- Ask agent
Energy performance certificate - ask agent
Hopkinson Way, Scartho Top, Grimsby
Add an important place to see how long it'd take to get there from our property listings.
__mins driving to your place
Get an instant, personalised result:
- Show sellers you’re serious
- Secure viewings faster with agents
- No impact on your credit score

Your mortgage
Notes
Staying secure when looking for property
Ensure you're up to date with our latest advice on how to avoid fraud or scams when looking for property online.
Visit our security centre to find out moreDisclaimer - Property reference 2603. The information displayed about this property comprises a property advertisement. Rightmove.co.uk makes no warranty as to the accuracy or completeness of the advertisement or any linked or associated information, and Rightmove has no control over the content. This property advertisement does not constitute property particulars. The information is provided and maintained by Solo Homes Ltd, Nottingham, Covering Nationwide. Please contact the selling agent or developer directly to obtain any information which may be available under the terms of The Energy Performance of Buildings (Certificates and Inspections) (England and Wales) Regulations 2007 or the Home Report if in relation to a residential property in Scotland.
*This is the average speed from the provider with the fastest broadband package available at this postcode. The average speed displayed is based on the download speeds of at least 50% of customers at peak time (8pm to 10pm). Fibre/cable services at the postcode are subject to availability and may differ between properties within a postcode. Speeds can be affected by a range of technical and environmental factors. The speed at the property may be lower than that listed above. You can check the estimated speed and confirm availability to a property prior to purchasing on the broadband provider's website. Providers may increase charges. The information is provided and maintained by Decision Technologies Limited. **This is indicative only and based on a 2-person household with multiple devices and simultaneous usage. Broadband performance is affected by multiple factors including number of occupants and devices, simultaneous usage, router range etc. For more information speak to your broadband provider.
Map data ©OpenStreetMap contributors.





