
London Road, Ditton, ME20

Letting details
- Let available date:
- Now
- Deposit:
- £4,038A deposit provides security for a landlord against damage, or unpaid rent by a tenant.Read more about deposit in our glossary page.
- Min. Tenancy:
- 12 months How long the landlord offers to let the property for.Read more about tenancy length in our glossary page.
- Let type:
- Long term
- Furnish type:
- Part furnished
- Council Tax:
- Ask agent
- PROPERTY TYPE
Detached
- BEDROOMS
6
- BATHROOMS
3
- SIZE
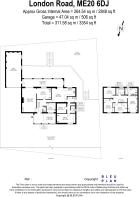
2,848 sq ft
265 sq m
Key features
- Part furnished
- Bright & spacious
- White goods included
- Private garden
- Solar panels
- Garage and driveway
- CCTV
- Built in wardrobes
- To book a viewing: submit your enquiry and you'll receive an email and SMS detailing availability - within 10 min
Description
The property features three generous reception rooms, a fully fitted kitchen with white goods included, and built-in wardrobes providing ample storage. Offered part furnished, it combines flexibility with a homely, welcoming feel.
Outside, you'll find a beautifully maintained private garden, a tandem garage, and an expansive concrete paved driveway, secured by remote controlled electric gates for added privacy and ease of access.
Designed for modern living, the home includes solar panels and a Hive-controlled heating system for energy efficiency, high-speed fibre optic internet ideal for remote work, and a centrally monitored ADT alarm system with CCTV offering complete peace of mind.
Conveniently located near major supermarkets, local amenities, local GP is a only 10 minute walk and motorway links, this outstanding home perfectly balances space, comfort, and contemporary convenience.
Pets: Not accepted
Parking: Private parking in garage.
- COUNCIL TAXA payment made to your local authority in order to pay for local services like schools, libraries, and refuse collection. The amount you pay depends on the value of the property.Read more about council Tax in our glossary page.
- Band: F
- PARKINGDetails of how and where vehicles can be parked, and any associated costs.Read more about parking in our glossary page.
- Driveway
- GARDENA property has access to an outdoor space, which could be private or shared.
- Private garden
- ACCESSIBILITYHow a property has been adapted to meet the needs of vulnerable or disabled individuals.Read more about accessibility in our glossary page.
- No wheelchair access
London Road, Ditton, ME20
Add an important place to see how long it'd take to get there from our property listings.
__mins driving to your place

Notes
Staying secure when looking for property
Ensure you're up to date with our latest advice on how to avoid fraud or scams when looking for property online.
Visit our security centre to find out moreDisclaimer - Property reference 4090_EAF_255068. The information displayed about this property comprises a property advertisement. Rightmove.co.uk makes no warranty as to the accuracy or completeness of the advertisement or any linked or associated information, and Rightmove has no control over the content. This property advertisement does not constitute property particulars. The information is provided and maintained by Hello Neighbour, London. Please contact the selling agent or developer directly to obtain any information which may be available under the terms of The Energy Performance of Buildings (Certificates and Inspections) (England and Wales) Regulations 2007 or the Home Report if in relation to a residential property in Scotland.
*This is the average speed from the provider with the fastest broadband package available at this postcode. The average speed displayed is based on the download speeds of at least 50% of customers at peak time (8pm to 10pm). Fibre/cable services at the postcode are subject to availability and may differ between properties within a postcode. Speeds can be affected by a range of technical and environmental factors. The speed at the property may be lower than that listed above. You can check the estimated speed and confirm availability to a property prior to purchasing on the broadband provider's website. Providers may increase charges. The information is provided and maintained by Decision Technologies Limited. **This is indicative only and based on a 2-person household with multiple devices and simultaneous usage. Broadband performance is affected by multiple factors including number of occupants and devices, simultaneous usage, router range etc. For more information speak to your broadband provider.
Map data ©OpenStreetMap contributors.





