Castle Lane West, Bournemouth, BH8

- PROPERTY TYPE
Detached
- BEDROOMS
4
- BATHROOMS
1
- SIZE
Ask agent
- TENUREDescribes how you own a property. There are different types of tenure - freehold, leasehold, and commonhold.Read more about tenure in our glossary page.
Freehold
Key features
- Located within walking distance of Castlepoint shopping centre
- Driveway parking for multiple vehicles
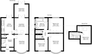
- Three floors of accommodation
- Conservatory
- Easy access to the A338 for links with Bournemouth and Southampton
Description
BrightWater are delighted to present this charming four-bedroom detached family home, ideally located between Queens Park and Throop. Set over three floors, the property offers generous and versatile living accommodation, a south-facing garden, and driveway parking for multiple vehicles — all within walking distance of Castlepoint Shopping Centre and with easy access to the A338, connecting to Bournemouth town centre, Ringwood and Southampton.
The property would benefit from a programme of refurbishment, modernisation and updating throughout, offering purchasers a fantastic opportunity to create a home tailored to their own tastes and requirements. An ideal project for those looking to add value.
Set over three floors, this home offers versatile living accommodation and would make an ideal family residence.
LIVING ROOM 3.6m x 3.4m (11'11" x 11'3")
DINING ROOM 4.1m x 3.7M (13'3" x 12")
Upon entering, you are welcomed by a charming entrance hallway featuring a character front door and understairs WC. The spacious lounge enjoys a feature fireplace with solid wooden surround and French doors opening into the conservatory. The lounge flows seamlessly into the dining room, which provides ample space for a large table and chairs — perfect for entertaining. Bi-folding doors allow the two rooms to be separated if desired.
CONSERVATORY 3.8m x 3.3m (12'6" x 10'9")
The conservatory is a delightful addition to the home, featuring exposed brickwork, a high-pitched roof, and Parquet flooring, with doors opening onto the south-facing rear garden.
KITCHEN 3.6m x 2.7m (11'11" x 9")
The kitchen/breakfast room is well-equipped with a range of wall and base units, space for a cooker with extractor over, washing machine, and tall fridge freezer. There’s also room for a breakfast table, and a door provides direct access to the rear garden.
BEDROOM ONE 4.1m x 3.7m (13'3" x 12")
BEDROOM TWO 3.6m x 3.5m (11'11" x 11'4")
BEDROOM THREE 2.7m x 2.3m (8'11" x 7'8")
BATHROOM 2.7m x 2.5m (8'11" x 8'1")
To the first floor, there are three good-sized bedrooms — two doubles and one single — along with a spacious family bathroom featuring a Victorian-style bath with shower above, pedestal wash hand basin, low-level WC, heated towel rail, and airing cupboard housing the Glow-worm boiler.
BEDROOM FOUR 3.8m x 3.4m (12'4" x 11")
The second floor offers a fourth bedroom with two Velux windows, making it an ideal guest room, teenager’s bedroom, or home office.
Throughout the property you’ll find laminate flooring in the lounge/diner and stripped wooden flooring across the first and second floors, adding to its period charm.
Externally, the home boasts a south-facing rear garden, ideal for relaxing and entertaining, and driveway parking for multiple vehicles.
This characterful home combines traditional features with flexible living space, all in a highly convenient location close to schools, local amenities, and major transport links.
EPC Rating: D
- COUNCIL TAXA payment made to your local authority in order to pay for local services like schools, libraries, and refuse collection. The amount you pay depends on the value of the property.Read more about council Tax in our glossary page.
- Band: D
- PARKINGDetails of how and where vehicles can be parked, and any associated costs.Read more about parking in our glossary page.
- Yes
- GARDENA property has access to an outdoor space, which could be private or shared.
- Private garden
- ACCESSIBILITYHow a property has been adapted to meet the needs of vulnerable or disabled individuals.Read more about accessibility in our glossary page.
- Ask agent
Castle Lane West, Bournemouth, BH8
Add an important place to see how long it'd take to get there from our property listings.
__mins driving to your place
Get an instant, personalised result:
- Show sellers you’re serious
- Secure viewings faster with agents
- No impact on your credit score
Your mortgage
Notes
Staying secure when looking for property
Ensure you're up to date with our latest advice on how to avoid fraud or scams when looking for property online.
Visit our security centre to find out moreDisclaimer - Property reference cbe65968-32a0-4897-a4e1-fc50abdcbd23. The information displayed about this property comprises a property advertisement. Rightmove.co.uk makes no warranty as to the accuracy or completeness of the advertisement or any linked or associated information, and Rightmove has no control over the content. This property advertisement does not constitute property particulars. The information is provided and maintained by BrightWater, Ringwood. Please contact the selling agent or developer directly to obtain any information which may be available under the terms of The Energy Performance of Buildings (Certificates and Inspections) (England and Wales) Regulations 2007 or the Home Report if in relation to a residential property in Scotland.
*This is the average speed from the provider with the fastest broadband package available at this postcode. The average speed displayed is based on the download speeds of at least 50% of customers at peak time (8pm to 10pm). Fibre/cable services at the postcode are subject to availability and may differ between properties within a postcode. Speeds can be affected by a range of technical and environmental factors. The speed at the property may be lower than that listed above. You can check the estimated speed and confirm availability to a property prior to purchasing on the broadband provider's website. Providers may increase charges. The information is provided and maintained by Decision Technologies Limited. **This is indicative only and based on a 2-person household with multiple devices and simultaneous usage. Broadband performance is affected by multiple factors including number of occupants and devices, simultaneous usage, router range etc. For more information speak to your broadband provider.
Map data ©OpenStreetMap contributors.





