Bell Lane, Bury

Letting details
- Let available date:
- Now
- Deposit:
- £1,145A deposit provides security for a landlord against damage, or unpaid rent by a tenant.Read more about deposit in our glossary page.
- Min. Tenancy:
- Ask agent How long the landlord offers to let the property for.Read more about tenancy length in our glossary page.
- Let type:
- Long term
- Furnish type:
- Unfurnished
- Council Tax:
- Ask agent
- PROPERTY TYPE
Terraced
- BEDROOMS
3
- BATHROOMS
1
- SIZE
826 sq ft
77 sq m
Key features
- Three Bedroom Terrace In A Great Location For Bury Town Centre
- Recently Refurbished
- Double Glazing
- Gas Central Heating
- Close To Local Amenities
- An Enclosed Rear Yard With Off Road Parking
- New Decoration
- New Flooring
- New Kitchen
Description
Lifestyle Sales and Lettings are delighted to present this well-presented, spacious three-bedroom terraced home, ideally positioned just off Bell Lane in Bury. The property is within walking distance of Bury Town Centre and offers excellent access to local amenities, bus and tram links, and major motorway networks (M66, M65, M62 & M61).
Having been recently refurbished throughout, the accommodation briefly comprises: entrance hallway, modern fitted kitchen, a generously sized lounge, three bedrooms, and a stylish three-piece bathroom suite with shower over bath and contemporary black fittings.
The property further benefits from:
Gas central heating and double glazing, brand new kitchen and bathroom suite, new flooring and fresh decoration throughout and an enclosed rear yard with off-road parking.
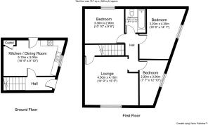
Kitchen/Dining Room - 5.10 x 3.00 (16'8" x 9'10") -
Lounge - 4.50 x 4.10 (14'9" x 13'5") -
Bedroom - 3.30 x 2.90 (10'9" x 9'6") -
Bathroom - 1.70 x 2.00 (5'6" x 6'6") -
Bedroom - 3.20 x 4.30 (10'5" x 14'1") -
Bedroom - 2.30 x 3.90 (7'6" x 12'9") -
Disclaimer: - These particulars, whilst believed to be accurate are set out as a general guideline and do not constitute any part of an offer or contract. Intending Tenants should not rely on them as statements of representation of fact, but must satisfy themselves by inspection or otherwise as to their accuracy. Please note that we have not tested any apparatus, equipment, fixtures, fittings or services including gas central heating and so cannot verify they are in working order. Although we try to ensure accuracy, if measurements are used in this listing, they may be approximate. Therefore if intending Tenants need accurate measurements to order carpeting or to ensure existing furniture will fit, they should take such measurements themselves. Photographs are reproduced general information and it must not be inferred that any item is included for let with the property. Please contact for further details.
Viewing:
Viewing strictly by appointment through Lifestyle Sales and Lettings.
Brochures
Bell Lane, Bury- COUNCIL TAXA payment made to your local authority in order to pay for local services like schools, libraries, and refuse collection. The amount you pay depends on the value of the property.Read more about council Tax in our glossary page.
- Band: A
- PARKINGDetails of how and where vehicles can be parked, and any associated costs.Read more about parking in our glossary page.
- Driveway
- GARDENA property has access to an outdoor space, which could be private or shared.
- Yes
- ACCESSIBILITYHow a property has been adapted to meet the needs of vulnerable or disabled individuals.Read more about accessibility in our glossary page.
- Ask agent
Bell Lane, Bury
Add an important place to see how long it'd take to get there from our property listings.
__mins driving to your place
Notes
Staying secure when looking for property
Ensure you're up to date with our latest advice on how to avoid fraud or scams when looking for property online.
Visit our security centre to find out moreDisclaimer - Property reference 34296746. The information displayed about this property comprises a property advertisement. Rightmove.co.uk makes no warranty as to the accuracy or completeness of the advertisement or any linked or associated information, and Rightmove has no control over the content. This property advertisement does not constitute property particulars. The information is provided and maintained by Lifestyle Sales & Lettings, Bury. Please contact the selling agent or developer directly to obtain any information which may be available under the terms of The Energy Performance of Buildings (Certificates and Inspections) (England and Wales) Regulations 2007 or the Home Report if in relation to a residential property in Scotland.
*This is the average speed from the provider with the fastest broadband package available at this postcode. The average speed displayed is based on the download speeds of at least 50% of customers at peak time (8pm to 10pm). Fibre/cable services at the postcode are subject to availability and may differ between properties within a postcode. Speeds can be affected by a range of technical and environmental factors. The speed at the property may be lower than that listed above. You can check the estimated speed and confirm availability to a property prior to purchasing on the broadband provider's website. Providers may increase charges. The information is provided and maintained by Decision Technologies Limited. **This is indicative only and based on a 2-person household with multiple devices and simultaneous usage. Broadband performance is affected by multiple factors including number of occupants and devices, simultaneous usage, router range etc. For more information speak to your broadband provider.
Map data ©OpenStreetMap contributors.




