
The Courts, Sale (PLOT D3.01)

- PROPERTY TYPE
House
- BEDROOMS
4
- BATHROOMS
3
- SIZE
1,450 sq ft
135 sq m
- TENUREDescribes how you own a property. There are different types of tenure - freehold, leasehold, and commonhold.Read more about tenure in our glossary page.
Freehold
Key features
- Phase 1 now available for reservation
- Four DOUBLE bedroom, three-bathroom terrace homes
- Luxury kitchen with Neff appliances, quartz worktops & Quooker tap
- Open-plan kitchen/dining area plus separate living room
- Master bedroom with en-suite shower room
- Solar panels with battery storage system
- High levels of insulation for an energy-efficient design
- Private driveway
- Personalisation options available when buying off-plan
- Samples available to view in our office showroom
Description
Introducing The Courts — an exciting new landmark development by award-winning developer P.I.C. Homes, perfectly positioned in the very heart of Sale Town Centre. This prestigious scheme will feature a collection of luxury apartments and contemporary four-bedroom terrace homes, designed to deliver exceptional style, sustainability, and convenience.
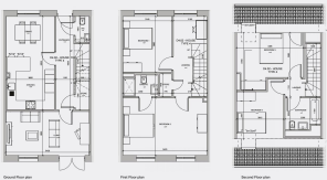
Phase 1 comprises a limited release of stunning four-bedroom terrace homes, each offering 1450 sq. ft. of beautifully designed living space. The homes showcase the signature P.I.C. Homes specification, blending timeless design with cutting-edge technology and premium finishes throughout.
At the heart of each home lies a show-stopping open-plan kitchen and dining area, complete with quartz worktops, Neff appliances, a Quooker boiling tap, and LED coving lighting. The separate living room provides a refined retreat, enhanced by a built-in media wall and stylish modern finishes.
The master suite offers a true sense of luxury, featuring a designer en-suite bathroom with brushed gold fittings, niche LED lighting, and floor-to-ceiling porcelain tiling. Three further bedrooms and additional bathrooms ensure versatility for families, professionals, or guests.
Each home benefits from private allocated parking and a range of innovative sustainable features, including solar PV panels, battery storage, and a fully electric design — eliminating the need for gas and significantly reducing energy costs. Constructed with a fabric-first approach and high levels of insulation, these homes provide year-round comfort, energy efficiency, and reduced environmental impact.
Located just a short walk from Sale’s bustling high street, Metrolink station, and a vibrant mix of cafés, restaurants, and independent shops, The Courts offers a rare opportunity to enjoy the very best of town-centre living.
Brochures
The Courts, Sale (PLOT D3.01)- COUNCIL TAXA payment made to your local authority in order to pay for local services like schools, libraries, and refuse collection. The amount you pay depends on the value of the property.Read more about council Tax in our glossary page.
- Ask agent
- PARKINGDetails of how and where vehicles can be parked, and any associated costs.Read more about parking in our glossary page.
- Yes
- GARDENA property has access to an outdoor space, which could be private or shared.
- Ask agent
- ACCESSIBILITYHow a property has been adapted to meet the needs of vulnerable or disabled individuals.Read more about accessibility in our glossary page.
- Ask agent
Energy performance certificate - ask agent
The Courts, Sale (PLOT D3.01)
Add an important place to see how long it'd take to get there from our property listings.
__mins driving to your place
Get an instant, personalised result:
- Show sellers you’re serious
- Secure viewings faster with agents
- No impact on your credit score
Your mortgage
Notes
Staying secure when looking for property
Ensure you're up to date with our latest advice on how to avoid fraud or scams when looking for property online.
Visit our security centre to find out moreDisclaimer - Property reference 34296663. The information displayed about this property comprises a property advertisement. Rightmove.co.uk makes no warranty as to the accuracy or completeness of the advertisement or any linked or associated information, and Rightmove has no control over the content. This property advertisement does not constitute property particulars. The information is provided and maintained by Ashworth Holme, Sale. Please contact the selling agent or developer directly to obtain any information which may be available under the terms of The Energy Performance of Buildings (Certificates and Inspections) (England and Wales) Regulations 2007 or the Home Report if in relation to a residential property in Scotland.
*This is the average speed from the provider with the fastest broadband package available at this postcode. The average speed displayed is based on the download speeds of at least 50% of customers at peak time (8pm to 10pm). Fibre/cable services at the postcode are subject to availability and may differ between properties within a postcode. Speeds can be affected by a range of technical and environmental factors. The speed at the property may be lower than that listed above. You can check the estimated speed and confirm availability to a property prior to purchasing on the broadband provider's website. Providers may increase charges. The information is provided and maintained by Decision Technologies Limited. **This is indicative only and based on a 2-person household with multiple devices and simultaneous usage. Broadband performance is affected by multiple factors including number of occupants and devices, simultaneous usage, router range etc. For more information speak to your broadband provider.
Map data ©OpenStreetMap contributors.






