Land at The Bush, 199 High Street, Silverdale, Newcastle-under-Lyme, Staffordshire
- PROPERTY TYPE
Land
- SIZE
Ask agent
Key features
- PURCHASE PRICE IS SUBJECT TO 20% VAT
- Newcastle Borough Council Planning Reference: 25/00387/FUL
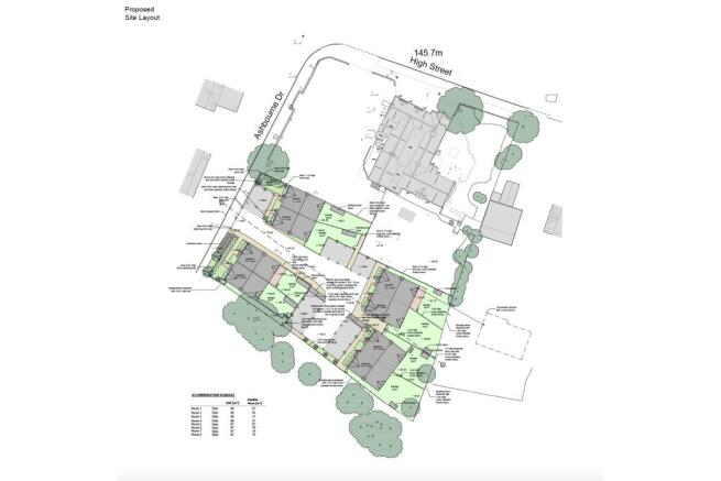
- Planning approved for 8 residential dwellings (mix of 2- & 3-bed units)
- Allocated parking for all homes
- Sought-after location close to Newcastle-under-Lyme and Keele University
- Established residential setting with strong local demand
- Accessible site with good transport links and local amenities nearby
- Ideal for developers, investors or joint-venture partners
- Sealed bids submitted no later than 14.00pm Monday 8th December
Description
Situated in a well-established residential area close to the amenities of Silverdale and Newcastle-under-Lyme town centre, the site offers excellent connectivity to Keele University, major road networks including the A34 and M6, and a range of local schools, shops and transport links.
The approved scheme has been thoughtfully designed to complement the surrounding area, offering a balanced mix of homes ideal for local buyers, first-time purchasers and downsizers alike. With strong demand for quality, energy-efficient housing across the region, this development represents a compelling opportunity for small to medium-sized builders or investors seeking a ready-to-go site with planning secured.
A rare opportunity to acquire this prime parcel of land. Interested parties are invited to submit sealed bids by 2:00pm on Monday 8th December.
For full details, viewings, and to submit your bid, please contact Rachel Breeze at rachel.
Don’t miss your chance to secure this sought-after opportunity.
House 1
2 Bedrooms
GIA = 80m2
Garden = 67m2
House 2
2 Bedrooms
GIA = 80m2
Garden = 54m2
House 3
2 Bedrooms
GIA = 80m2
Garden = 47m2
House 4
2 Bedrooms
GIA = 80m2
Garden = 57m2
House 5
3 Bedrooms
GIA = 87m2
Garden = 67m2
House 6
2 Bedrooms
GIA = 87m2
Garden = 78m2
House 7
2 Bedrooms
GIA = 87m2
Garden = 74m2
House 8
2 Bedrooms
GIA = 87m2
Garden = 76m2
Brochures
25.387.FUL Decision (3)Land at The Bush, 199 High Street, Silverdale, Newcastle-under-Lyme, Staffordshire
NEAREST STATIONS
Distances are straight line measurements from the centre of the postcode- Longport Station3.1 miles
- Stoke-on-Trent Station4.0 miles
- Kidsgrove Station5.1 miles
Notes
Disclaimer - Property reference FKZ-32840684. The information displayed about this property comprises a property advertisement. Rightmove.co.uk makes no warranty as to the accuracy or completeness of the advertisement or any linked or associated information, and Rightmove has no control over the content. This property advertisement does not constitute property particulars. The information is provided and maintained by Heywoods, Newcastle-under-Lyme. Please contact the selling agent or developer directly to obtain any information which may be available under the terms of The Energy Performance of Buildings (Certificates and Inspections) (England and Wales) Regulations 2007 or the Home Report if in relation to a residential property in Scotland.
Map data ©OpenStreetMap contributors.





