
Brook Street, Kidderminster, Worcestershire, DY11

- PROPERTY TYPE
Terraced
- BEDROOMS
2
- BATHROOMS
1
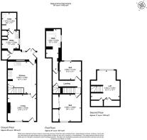
- SIZE
1,152 sq ft
107 sq m
- TENUREDescribes how you own a property. There are different types of tenure - freehold, leasehold, and commonhold.Read more about tenure in our glossary page.
Freehold
Key features
- Mid-Terrace House
- No Onward Chain
- 2-Bedrooms
- Ideal for First-Time Buyers/Investors
- Utility Room
- 4-Piece Bathroom
- Fitted Wardrobe
- Loft Room
- 1152 Sq. Ft
- Rear Garden
Description
The property's layout includes a living room, separate kitchen, ground floor toilet, two well-proportioned bedrooms, 4-piece family bathroom, and a loft room. Outside, the property benefits from having a rear garden space, awaiting your personal touch.
Located in Kidderminster, the property is within easy reach of the town centre with its array of shops, restaurants and amenities, just a 15-minute walk away. Kidderminster train station is approximately a 20-minute walk, providing convenient connections to Birmingham and Worcester. Local schools, parks and everyday essentials are all within a stone's throw away.
Offered with no onward chain, this property represents a great opportunity for first-time buyers and investors. Whether you're looking to create your perfect home or add to your investment portfolio, this freehold property deserves your consideration. We strongly recommend viewing to appreciate the transformation possibilities.
Please note this property is being sold by a connected person to Sold.co.uk.
- COUNCIL TAXA payment made to your local authority in order to pay for local services like schools, libraries, and refuse collection. The amount you pay depends on the value of the property.Read more about council Tax in our glossary page.
- Band: B
- PARKINGDetails of how and where vehicles can be parked, and any associated costs.Read more about parking in our glossary page.
- Ask agent
- GARDENA property has access to an outdoor space, which could be private or shared.
- Yes
- ACCESSIBILITYHow a property has been adapted to meet the needs of vulnerable or disabled individuals.Read more about accessibility in our glossary page.
- Ask agent
Brook Street, Kidderminster, Worcestershire, DY11
Add an important place to see how long it'd take to get there from our property listings.
__mins driving to your place
Get an instant, personalised result:
- Show sellers you’re serious
- Secure viewings faster with agents
- No impact on your credit score
Your mortgage
Notes
Staying secure when looking for property
Ensure you're up to date with our latest advice on how to avoid fraud or scams when looking for property online.
Visit our security centre to find out moreDisclaimer - Property reference SLD250378. The information displayed about this property comprises a property advertisement. Rightmove.co.uk makes no warranty as to the accuracy or completeness of the advertisement or any linked or associated information, and Rightmove has no control over the content. This property advertisement does not constitute property particulars. The information is provided and maintained by Sold.co.uk, London. Please contact the selling agent or developer directly to obtain any information which may be available under the terms of The Energy Performance of Buildings (Certificates and Inspections) (England and Wales) Regulations 2007 or the Home Report if in relation to a residential property in Scotland.
*This is the average speed from the provider with the fastest broadband package available at this postcode. The average speed displayed is based on the download speeds of at least 50% of customers at peak time (8pm to 10pm). Fibre/cable services at the postcode are subject to availability and may differ between properties within a postcode. Speeds can be affected by a range of technical and environmental factors. The speed at the property may be lower than that listed above. You can check the estimated speed and confirm availability to a property prior to purchasing on the broadband provider's website. Providers may increase charges. The information is provided and maintained by Decision Technologies Limited. **This is indicative only and based on a 2-person household with multiple devices and simultaneous usage. Broadband performance is affected by multiple factors including number of occupants and devices, simultaneous usage, router range etc. For more information speak to your broadband provider.
Map data ©OpenStreetMap contributors.






