
Winchester Road, London, E4

- PROPERTY TYPE
End of Terrace
- BEDROOMS
3
- BATHROOMS
1
- SIZE
Ask agent
- TENUREDescribes how you own a property. There are different types of tenure - freehold, leasehold, and commonhold.Read more about tenure in our glossary page.
Freehold
Key features
- This listing is provided in association with Foxtons, London's leading estate agent.
- A well presented three bedroom end of terrace house
- Six mins walk to Higham's Park station and high street
- Large separate kitchen with space to dine
- Exceptionally spacious living space, ideal for entertaining
- Private garden with large patio and shed
- Three bedrooms and upstairs bathroom
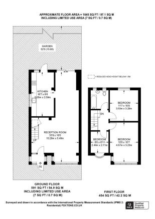
- Gross internal floor area is approximately 1,045 Sq Ft (97.08 Sq M)
- Online Auction on Thursday, 27 November 2025
- EPC Rating:D
Description
An expansive three bedroom house, beautifully presented throughout offering outstanding living and entertaining space flooded with light. Further boasting a large rear garden, ample storage space and smart fixtures.
Additional Comments
BidX1 and Foxtons are working in Partnership as Joint Agents for the online auction and due to this any enquiries, viewings, bids or offers on the property will require your details to be shared between both Bidx1 & Foxtons.
Viewings are by appointment only unless open house times are displayed, please contact us to book your appointment with our Auction teams.
Subject to confirmation
This means the buyer is invited to place a bid at or above the opening bid price of the listed property. Once bidding is closed, the vendor has 48 hours to decide if they want to accept the highest bid or not. If you are not the highest bidder your participation fee will be refunded in full within a maximum of 5 business days (unless delayed by the card provider) post the bidding closing time. If you are successful following vendor acceptance, in accordance with the authority you provided on registration, BidX1 will sign legally binding contracts relating to the sale of the property on behalf of you and the vendor.
Location:
The property is set in a fantastic location moments from the amenities and transport links of Highams Park, as well as good schools in the area and local green spaces.
Accomodation:
Ground floor: reception room and kitchen.
First floor: three bedrooms and bathroom.
Online Auction on Thursday, 27 November 2025. For further information, such as legal documents and property information, please visit bidx1.com.
- COUNCIL TAXA payment made to your local authority in order to pay for local services like schools, libraries, and refuse collection. The amount you pay depends on the value of the property.Read more about council Tax in our glossary page.
- Ask agent
- PARKINGDetails of how and where vehicles can be parked, and any associated costs.Read more about parking in our glossary page.
- Ask agent
- GARDENA property has access to an outdoor space, which could be private or shared.
- Yes
- ACCESSIBILITYHow a property has been adapted to meet the needs of vulnerable or disabled individuals.Read more about accessibility in our glossary page.
- Ask agent
Energy performance certificate - ask agent
Winchester Road, London, E4
Add an important place to see how long it'd take to get there from our property listings.
__mins driving to your place
Get an instant, personalised result:
- Show sellers you’re serious
- Secure viewings faster with agents
- No impact on your credit score
Your mortgage
Notes
Staying secure when looking for property
Ensure you're up to date with our latest advice on how to avoid fraud or scams when looking for property online.
Visit our security centre to find out moreDisclaimer - Property reference 105569. The information displayed about this property comprises a property advertisement. Rightmove.co.uk makes no warranty as to the accuracy or completeness of the advertisement or any linked or associated information, and Rightmove has no control over the content. This property advertisement does not constitute property particulars. The information is provided and maintained by BidX1, Covering UK. Please contact the selling agent or developer directly to obtain any information which may be available under the terms of The Energy Performance of Buildings (Certificates and Inspections) (England and Wales) Regulations 2007 or the Home Report if in relation to a residential property in Scotland.
Auction Fees: The purchase of this property may include associated fees not listed here, as it is to be sold via auction. To find out more about the fees associated with this property please call BidX1, Covering UK on 020 3910 6202.
*Guide Price: An indication of a seller's minimum expectation at auction and given as a Guide Price or a range of Guide Prices. This is not necessarily the figure a property will sell for and is subject to change prior to the auction.
Reserve Price: Each auction property will be subject to a Reserve Price below which the property cannot be sold at auction. Normally the Reserve Price will be set within the range of Guide Prices or no more than 10% above a single Guide Price.
*This is the average speed from the provider with the fastest broadband package available at this postcode. The average speed displayed is based on the download speeds of at least 50% of customers at peak time (8pm to 10pm). Fibre/cable services at the postcode are subject to availability and may differ between properties within a postcode. Speeds can be affected by a range of technical and environmental factors. The speed at the property may be lower than that listed above. You can check the estimated speed and confirm availability to a property prior to purchasing on the broadband provider's website. Providers may increase charges. The information is provided and maintained by Decision Technologies Limited. **This is indicative only and based on a 2-person household with multiple devices and simultaneous usage. Broadband performance is affected by multiple factors including number of occupants and devices, simultaneous usage, router range etc. For more information speak to your broadband provider.
Map data ©OpenStreetMap contributors.




