The Gables, Cloonacauneen, Claregalway, Co. Galway, H91 X8K7, Ireland
- PROPERTY TYPE
Detached
- BEDROOMS
5
- SIZE
Ask agent
Key features
- Upgraded triple glazed windows
- Composite front door
- Renovated kitchen and dining room
- Quartz counter top in kitchen and dining room
- Oil fired central heating
- 0.54 acre site approx.
Description
Built in 2003 by the current owners and tastefully upgraded throughout, this impressive home is presented in excellent condition, showcasing quality finishes and thoughtful design. Spanning over two floors, the layout has been carefully planned to maximise both space and natural light, creating an inviting and functional environment for family living.
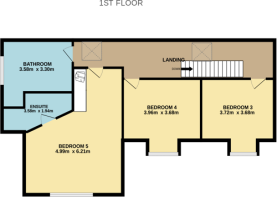
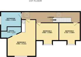
On the ground floor, a bright and welcoming entrance hall leads to a spacious sitting room, perfect for entertaining or relaxing. A separate living room opens onto a light-filled sunroom with direct access to the private rear garden; an ideal spot for year-round enjoyment. The large open-plan kitchen and dining area is beautifully arranged, overlooking the garden to the rear and side. Additional ground-floor accommodation includes a utility room, two double bedrooms, and a well-appointed bathroom. Upstairs, there are three generous double bedrooms. The main bedroom features a stylish, modern ensuite, while a spacious family bathroom serves the remaining rooms.
Outside, the home sits on meticulously maintained grounds with a private, non-overlooked rear garden. A large, fully powered detached garage provides excellent storage and functionality, while a charming wooden treehouse, also wired for electricity, adds a delightful touch for families.
This outstanding property offers the best of both worlds, peaceful country living with easy access to Galway City and local amenities. Early viewing is highly recommended to truly appreciate all that this wonderful home has to offer.
The Gables, Cloonacauneen, Claregalway, Co. Galway, H91 X8K7, Ireland
NEAREST AIRPORTS
Distances are straight line measurements- Galway(International)2.7 miles
- Connemara(Local)20.6 miles
- Connemara(Local)21.3 miles
- Knock(International)41.7 miles
- Shannon(International)42.7 miles
Advice on buying Irish property
Learn everything you need to know to successfully find and buy a property in Ireland.
Notes
This is a property advertisement provided and maintained by Sherry FitzGerald, Galway (reference 127054_GAL250327) and does not constitute property particulars. Whilst we require advertisers to act with best practice and provide accurate information, we can only publish advertisements in good faith and have not verified any claims or statements or inspected any of the properties, locations or opportunities promoted. Rightmove does not own or control and is not responsible for the properties, opportunities, website content, products or services provided or promoted by third parties and makes no warranties or representations as to the accuracy, completeness, legality, performance or suitability of any of the foregoing. We therefore accept no liability arising from any reliance made by any reader or person to whom this information is made available to. You must perform your own research and seek independent professional advice before making any decision to purchase or invest in overseas property.






