Mayfield Way, Barwell

- PROPERTY TYPE
Semi-Detached
- BEDROOMS
3
- BATHROOMS
1
- SIZE
Ask agent
- TENUREDescribes how you own a property. There are different types of tenure - freehold, leasehold, and commonhold.Read more about tenure in our glossary page.
Freehold
Key features
- Council Tax Band B
- Refitted Kitchen and Shower Room
- Three Bedrooms
- Kitchen and Dining room
- Sunny Enclosed rear garden
- Detached Garage
Description
Tenure - Freehold
Council Tax Band B
EPC Rating E
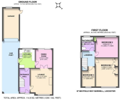
Accommodation - Open canopy porch with attractive grey composite panel UPVC SUDG front door with matching surrounds to
Entrance Hallway - With wood finish laminate wood strip flooring, single panel radiator, coving to ceiling, telephone point, thermostat for central heating system including broadband via Sky. Stairway to first floor with pine spindle balustrades. Attractive pine panel interior door leads to
Lounge To Front - 4.17 x 3.56 (13'8" x 11'8") - With feature fireplace having ornamental oak beams surround, a raised terracotta hearth, gas point. Single panel radiator, coving to ceiling, tv aerial point including sky. Pine and glazed double doors leading to
Dining Room - 2.84 x 3.00 (9'3" x 9'10") - With oak finish laminate wood flooring, radiator, coving to ceiling, UPVC SUDG patio doors leading to rear garden.
Refitted Kitchen To Rear - 3.03 x 2.52 (9'11" x 8'3") - With a fashionable range of navy blue fitted kitchen units with soft closed doors consisting inset white single drainer resin sink unit, chrome mixer above cupboard beneath. Further matching floor mounted cupboard units and drawer, contrasting white marble finished roll edge working surfaces above with inset four ring ceramic hob unit, single fan assisted oven with grill beneath, black chimney extractor above. Matching upstands, further matching range of wall mounted cupboard units and one tall larder unit housing the electric meter and consumer unit. There is also a integrated dishwasher, fridge freezer, washer dryer, ceramic tiled flooring, radiator, inset ceiling spotlights and digital programmer for central heating and domestic hot water. UPVC SUDG door to the side of the property.
First Floor Landing - With pine spindle balustrades, radiator, large loft access with extending aluminium ladder for access, coving to ceiling. The loft is majority boarded with lighting. The loft also houses the wall mounted gas condensing Worcester combination boiler for central heating and domestic hot water.
Bedroom One To Front - 4.19 x 3.32 (13'8" x 10'10") - With single panel radiator, coving to ceiling.
Bedroom Two To Rear - 3.30 x 3.09 (10'9" x 10'1") - With radiator, built in storage cupboard in white.
Bedroom Three To Front - 2.10 x 2.91 (6'10" x 9'6") - With radiator, coving to ceiling.
Refitted Shower Room To Rear - 2.09 x 1.96 (6'10" x 6'5") - With a fully tiled double walk in shower with glazed shower doors, rain shower and hand held shower above further display shelving, vanity sink unit with grey double cupboard beneath. High level WC, contrasting tile surrounds including flooring, radiator/heated towel rail. Inset ceiling spotlights and extractor fan.
Outside - The property is set back from the road screened behind trellis fencing, the front garden principally laid to lawn. A concrete driveway leads down the side of the property to a full length carport where there is lighting and a brick built store with fitted shelving and it also houses the gas meter and there are power points. Beyond the carport is a detached brick built garage measuring (2.47m x 4.90m) with black sectional up and over door to front, side pedestrian door and window. The garage also has light and power. A timber gate offers access to the fully fenced enclosed rear garden which has a shaped full width indian stone patio adjacent to the rear of the property. Beyond the garden is mainly laid to lawn with surrounding beds. There is a further patio to the top of the garden, there is also a timber shed, outside tap, outside security light and the garden has a sunny aspect.
Brochures
Mayfield Way, BarwellepcBrochure- COUNCIL TAXA payment made to your local authority in order to pay for local services like schools, libraries, and refuse collection. The amount you pay depends on the value of the property.Read more about council Tax in our glossary page.
- Band: B
- PARKINGDetails of how and where vehicles can be parked, and any associated costs.Read more about parking in our glossary page.
- Yes
- GARDENA property has access to an outdoor space, which could be private or shared.
- Yes
- ACCESSIBILITYHow a property has been adapted to meet the needs of vulnerable or disabled individuals.Read more about accessibility in our glossary page.
- Ask agent
Mayfield Way, Barwell
Add an important place to see how long it'd take to get there from our property listings.
__mins driving to your place
Get an instant, personalised result:
- Show sellers you’re serious
- Secure viewings faster with agents
- No impact on your credit score



Your mortgage
Notes
Staying secure when looking for property
Ensure you're up to date with our latest advice on how to avoid fraud or scams when looking for property online.
Visit our security centre to find out moreDisclaimer - Property reference 34297796. The information displayed about this property comprises a property advertisement. Rightmove.co.uk makes no warranty as to the accuracy or completeness of the advertisement or any linked or associated information, and Rightmove has no control over the content. This property advertisement does not constitute property particulars. The information is provided and maintained by Scrivins & Co Estate Agents & Letting Agents, Hinckley. Please contact the selling agent or developer directly to obtain any information which may be available under the terms of The Energy Performance of Buildings (Certificates and Inspections) (England and Wales) Regulations 2007 or the Home Report if in relation to a residential property in Scotland.
*This is the average speed from the provider with the fastest broadband package available at this postcode. The average speed displayed is based on the download speeds of at least 50% of customers at peak time (8pm to 10pm). Fibre/cable services at the postcode are subject to availability and may differ between properties within a postcode. Speeds can be affected by a range of technical and environmental factors. The speed at the property may be lower than that listed above. You can check the estimated speed and confirm availability to a property prior to purchasing on the broadband provider's website. Providers may increase charges. The information is provided and maintained by Decision Technologies Limited. **This is indicative only and based on a 2-person household with multiple devices and simultaneous usage. Broadband performance is affected by multiple factors including number of occupants and devices, simultaneous usage, router range etc. For more information speak to your broadband provider.
Map data ©OpenStreetMap contributors.




