Westmorland Road, Felixstowe

- PROPERTY TYPE
Detached
- BEDROOMS
4
- BATHROOMS
2
- SIZE
Ask agent
- TENUREDescribes how you own a property. There are different types of tenure - freehold, leasehold, and commonhold.Read more about tenure in our glossary page.
Freehold
Key features
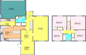
- EXTENDED MODERN DETACHED HOUSE
- FOUR BEDROOMS
- LOUNGE
- DINING ROOM
- GARDEN ROOM
- KITCHEN/BREAKFAST ROOM
- UTILITY ROOM, CLOAKROOM/SHOWER ROOM
- DOUBLE GARAGE
- SOUTH FACING REAR GARDEN
- SOUGHT AFTER LOCATION
Description
Further benefits include a good size driveway enabling off street parking for numerous vehicles, double garage, gas fired central heating via radiators and UPVC sealed unit double glazed windows.
The property stands on an attractive good size plot with south facing gardens to the rear in the generally sought after area of Old Felixstowe a few minutes walk to Felixstowe's golf course, sea and promenade and less than one and a half miles distant from the main town centre thoroughfare.
COMPOSITE DOUBLE GLAZED ENTRANCE DOOR With leaded light panels opening to :-
ENTRANCE PORCH Tiled floor, UPVC sealed unit double glazed windows to the front and side aspect, composite wood grain effect double glazed entrance door opening to :-
ENTRANCE HALLWAY Staircase with oak hand rails and balustrades leading to the first floor, storage cupboard below, LVT wood plank effect flooring, radiator, built in cloaks cupboard.
CLOAKROOM/SHOWER ROOM Re-fitted with a modern white suite comprising glazed corner shower cubicle with mixer shower, WC with concealed cistern, wash hand basin with mixer tap and double door vanity cupboard below, fully tiled walls, extractor fan, LVT tile effect flooring, radiator.
LOUNGE 21' x 12' 6" (6.4m x 3.81m) Marble fireplace surround and matching hearth, electric coal effect fire, TV point, two radiators, UPVC sealed unit double glazed windows to the front and rear aspect, archway to :-
OPEN PLAN DINING ROOM/GARDEN ROOM
DINING AREA 11' 2" x 9' 4" (3.4m x 2.84m) LVT wood plank effect flooring, radiator, throughway to :-
GARDEN ROOM 11' 10" x 11' (3.61m x 3.35m) Radiator, ceiling spotlights, LVT wood plank effect flooring, UPVC sealed unit double glazed windows to the rear and side aspect, UPVC sealed unit double glazed casement door opening to the rear patio.
KITCHEN/BREAKFAST ROOM 12' 10" plus door recess x 12' 8" (3.91m x 3.86m) Bespoke kitchen fitted with a comprehensive range of light oak units with brushed stainless steel handles, granite work surfaces over, matching upstands, stainless steel one and a half bowl sink unit with mixer tap, water softener, matching eye level cupboards with under cupboard lighting, breakfast bar, wine rack, further base cupboards, Neff stainless steel double oven, Bosch microwave, integrated dishwasher, integrated fridge, glazed fronted double door eye level display cupboard with glass shelves and downlighters, Neff electric four ring hob with Bosch glass and stainless steel extractor hood over, cupboard housing gas fired boiler, ceiling spotlights, built in pantry with fitted shelving, kick space convector heater, luxury LVT tile effect flooring, UPVC sealed unit double glazed windows to the rear and side aspect, door to :-
UTILITY ROOM 7' 10" x 6' 9" (2.39m x 2.06m) Fitted double door oak storage cupboards, marble effect work surface over, inset stainless steel single drainer sink unit with mixer tap, tiled splashbacks, matching eye level cupboards, space and plumbing for automatic washing machine, space for tall fridge/freezer, radiator, luxury LVT tile effect flooring, UPVC sealed unit double glazed window and casement door to the side aspect.
FIRST FLOOR LANDING Access to the loft space with pull down loft ladder, built in airing cupboard with pre-insulated lagged hot water cylinder, pine slatted shelves.
BEDROOM 1 12' 8" x 11' 10" (3.86m x 3.61m) Built in mirror fronted double door wardrobe, range of bespoke light oak finished wardrobes to one wall, radiator, UPVC sealed unit double glazed window to the front aspect.
BEDROOM 2 12' 6" x 9' 6" plus door recess (3.81m x 2.9m) Radiator, built in double door wardrobe, UPVC sealed unit double glazed window to the front aspect.
BEDROOM 3 9' 4" x 9' (2.84m x 2.74m) Radiator, built in double door wardrobe, UPVC sealed unit double glazed window to the rear aspect.
BEDROOM 4 9' 6" x 9' 2" (2.9m x 2.79m) Built in single wardrobe cupboard, radiator, UPVC sealed unit double glazed window to the rear aspect.
BATHROOM Modern coloured suite comprising limed oak panelled bath with mixer tap, vanity wash hand basin with double door limed oak cupboards below, WC with concealed cistern, fully tiled walls, radiator, LVT tile effect flooring, UPVC sealed unit double glazed window to the rear aspect.
OUTSIDE The property stands on a good sized plot with gardens to the front comprising lawn with mature trees and hedging, rose and flower borders, herringbone style block paved driveway enabling off street parking for numerous vehicles and providing access to :-
DETACHED DOUBLE GARAGE 17' x 19'3
Remote control up and over door, power and light connected, UPVC sealed unit double glazed door to the side aspect.
To the rear of the property there is an attractive landscaped garden with a southerly aspect comprising lawn with attractive shrub borders, interspesed with conifers, flowers and trees, paved patio, timber storage shed and cold water tap.
COUNCIL TAX Band 'E'
Brochures
A4 5 Page Landsca...- COUNCIL TAXA payment made to your local authority in order to pay for local services like schools, libraries, and refuse collection. The amount you pay depends on the value of the property.Read more about council Tax in our glossary page.
- Ask agent
- PARKINGDetails of how and where vehicles can be parked, and any associated costs.Read more about parking in our glossary page.
- Garage
- GARDENA property has access to an outdoor space, which could be private or shared.
- Yes
- ACCESSIBILITYHow a property has been adapted to meet the needs of vulnerable or disabled individuals.Read more about accessibility in our glossary page.
- Ask agent
Westmorland Road, Felixstowe
Add an important place to see how long it'd take to get there from our property listings.
__mins driving to your place
Get an instant, personalised result:
- Show sellers you’re serious
- Secure viewings faster with agents
- No impact on your credit score
Your mortgage
Notes
Staying secure when looking for property
Ensure you're up to date with our latest advice on how to avoid fraud or scams when looking for property online.
Visit our security centre to find out moreDisclaimer - Property reference 100928006016. The information displayed about this property comprises a property advertisement. Rightmove.co.uk makes no warranty as to the accuracy or completeness of the advertisement or any linked or associated information, and Rightmove has no control over the content. This property advertisement does not constitute property particulars. The information is provided and maintained by ScottBeckett, Felixstowe. Please contact the selling agent or developer directly to obtain any information which may be available under the terms of The Energy Performance of Buildings (Certificates and Inspections) (England and Wales) Regulations 2007 or the Home Report if in relation to a residential property in Scotland.
*This is the average speed from the provider with the fastest broadband package available at this postcode. The average speed displayed is based on the download speeds of at least 50% of customers at peak time (8pm to 10pm). Fibre/cable services at the postcode are subject to availability and may differ between properties within a postcode. Speeds can be affected by a range of technical and environmental factors. The speed at the property may be lower than that listed above. You can check the estimated speed and confirm availability to a property prior to purchasing on the broadband provider's website. Providers may increase charges. The information is provided and maintained by Decision Technologies Limited. **This is indicative only and based on a 2-person household with multiple devices and simultaneous usage. Broadband performance is affected by multiple factors including number of occupants and devices, simultaneous usage, router range etc. For more information speak to your broadband provider.
Map data ©OpenStreetMap contributors.





