
School Lane, Dunston, ST18

- PROPERTY TYPE
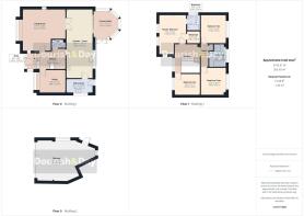
Detached
- BEDROOMS
4
- BATHROOMS
2
- SIZE
2,195 sq ft
204 sq m
- TENUREDescribes how you own a property. There are different types of tenure - freehold, leasehold, and commonhold.Read more about tenure in our glossary page.
Freehold
Key features
- Four Double Bedroom Detached Family Home
- Contemporary Living Room, Study & Conservatory
- Stunning Open Plan Kitchen Diner With Quartz Worktop & Breakfast Bar
- Master Bedroom With Walk-in Wardrobe & Ensuite Shower Room
- Useful Utility Room, Feature Entrance Hallway & Galleried Landing
- Stunning Gardens With Fields Views, Double Garage & In and Out Driveway
Description
Call us 9AM - 9PM -7 days a week, 365 days a year!
Brook Lodge Has it all! Situated in a sought-after location, this contemporary four double bedroom detached family home offers luxurious living spaces and stunning views of the surrounding fields. The property boasts a spacious living room, study, and conservatory which provide ample room for relaxing and entertaining guests. The highlight of this property is the stunning open plan kitchen diner, featuring quartz worktops, a breakfast bar, and modern appliances. This space is elegantly designed, offering a perfect setting for hosting dinner parties or enjoying casual family meals. The master bedroom is a true retreat, complete with a walk-in wardrobe and ensuite shower room. The three additional double bedrooms are generously proportioned, providing comfortable accommodation for family members or guests. A useful utility room and study room cater to the practical needs of modern living.
Upon entering the property, you are greeted by a feature entrance hallway that leads to a galleried landing on the first floor. The architectural design of the property ensures a seamless flow between the living spaces, creating a sense of connectivity throughout. The majority of downstairs is luxury Karndean flooring. Outside, the property boasts stunning gardens that offer a peaceful retreat from the hustle and bustle of every-day life. Flanked to one side by a brook. The vast outdoor space provides a tranquil setting for relaxation or outdoor activities. The fields views add to the ambience, creating a serene atmosphere for residents to enjoy. A double garage and in and out driveway provide convenient parking options for multiple vehicles. The property is well-connected to local amenities, schools, and transport links, making it an ideal choice for families looking for a blend of comfort and convenience. Overall, this property presents a unique opportunity to own a prestigious family home in a desirable location. With its luxurious features, spacious layout, and picturesque surroundings, this home offers a lifestyle of comfort and elegance. Book a viewing today to experience all that this exceptional property has to offer.
EPC Rating: E
Entrance Porch
-
Hallway
-
Study
-
Downstairs WC
-
Living Room
-
Open Plan Kitchen Diner
-
Conservatory
-
Utility Room
-
Landing
-
Master Bedroom
-
Ensuite Shower Room
-
Bedroom Two
-
Bedroom Three
-
Bedroom Four
-
Bathroom
-
ID Checks
Once an offer is accepted on a property marketed by Dourish & Day estate agents we are required to complete ID verification checks on all buyers and to apply ongoing monitoring until the transaction ends. Whilst this is the responsibility of Dourish & Day we may use the services of MoveButler, to verify Clients’ identity. This is not a credit check and therefore will have no effect on your credit history. You agree for us to complete these checks, and the cost of these checks is £30.00 inc. VAT per buyer. This is paid in advance, when an offer is agreed and prior to a sales memorandum being issued. This charge is non-refundable.
Front Garden
Side Front Garden
Parking - Double garage
Parking - Driveway
- COUNCIL TAXA payment made to your local authority in order to pay for local services like schools, libraries, and refuse collection. The amount you pay depends on the value of the property.Read more about council Tax in our glossary page.
- Band: G
- PARKINGDetails of how and where vehicles can be parked, and any associated costs.Read more about parking in our glossary page.
- Garage,Driveway
- GARDENA property has access to an outdoor space, which could be private or shared.
- Front garden,Rear garden
- ACCESSIBILITYHow a property has been adapted to meet the needs of vulnerable or disabled individuals.Read more about accessibility in our glossary page.
- Ask agent
School Lane, Dunston, ST18
Add an important place to see how long it'd take to get there from our property listings.
__mins driving to your place
Get an instant, personalised result:
- Show sellers you’re serious
- Secure viewings faster with agents
- No impact on your credit score
Your mortgage
Notes
Staying secure when looking for property
Ensure you're up to date with our latest advice on how to avoid fraud or scams when looking for property online.
Visit our security centre to find out moreDisclaimer - Property reference 4a982ccd-97b2-4619-8dca-7e50496a99d4. The information displayed about this property comprises a property advertisement. Rightmove.co.uk makes no warranty as to the accuracy or completeness of the advertisement or any linked or associated information, and Rightmove has no control over the content. This property advertisement does not constitute property particulars. The information is provided and maintained by Dourish & Day, Penkridge. Please contact the selling agent or developer directly to obtain any information which may be available under the terms of The Energy Performance of Buildings (Certificates and Inspections) (England and Wales) Regulations 2007 or the Home Report if in relation to a residential property in Scotland.
*This is the average speed from the provider with the fastest broadband package available at this postcode. The average speed displayed is based on the download speeds of at least 50% of customers at peak time (8pm to 10pm). Fibre/cable services at the postcode are subject to availability and may differ between properties within a postcode. Speeds can be affected by a range of technical and environmental factors. The speed at the property may be lower than that listed above. You can check the estimated speed and confirm availability to a property prior to purchasing on the broadband provider's website. Providers may increase charges. The information is provided and maintained by Decision Technologies Limited. **This is indicative only and based on a 2-person household with multiple devices and simultaneous usage. Broadband performance is affected by multiple factors including number of occupants and devices, simultaneous usage, router range etc. For more information speak to your broadband provider.
Map data ©OpenStreetMap contributors.






