
Land for sale
School Lane, Manea
- PROPERTY TYPE
Land
- SIZE
Ask agent
Key features
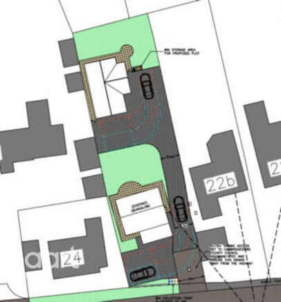
- Outline planning permission granted for the erection of a 3-bedroom detached bungalow
- Plot situated behind an existing bungalow in an established residential area
- Quiet village location within the sought-after Fenland village of Manea
- Opportunity to design & build to personal specification (subject to reserved matters)
- Off-road parking included within plans
- Freehold
- Planning Ref: F/YR24/0194/O
- Call to view
Description
A rare opportunity to acquire a residential building plot tucked away behind an existing bungalow on School Lane in the well-regarded Cambridgeshire village of Manea. The plot benefits from outline planning permission for a single storey, 3-bedroom detached bungalow, providing the ideal chance for a self-build project or bespoke development.
Manea is a popular, well-served village with a train station linking Cambridge, Ely and Peterborough, along with local schooling, shop and pub, and easy access to surrounding Fenland market towns.
The approved plans include provision for off-road parking and allow for further input at the reserved matters stage, offering flexibility for buyers wishing to tailor the final design to their requirements.
Tenure: Freehold
Planning Reference: F/YR24/0194/O
Viewing by appointment — call to arrange.
Disclaimer
haart Estate Agents also offer a professional, ARLA accredited Lettings and Management Service. If you are considering renting your property in order to purchase, are looking at buy to let or would like a free review of your current portfolio then please call the Lettings Branch Manager on the number shown above.
haart Estate Agents is the seller's agent for this property. Your conveyancer is legally responsible for ensuring any purchase agreement fully protects your position. We make detailed enquiries of the seller to ensure the information provided is as accurate as possible. Please inform us if you become aware of any information being inaccurate.
Brochures
BrochureSchool Lane, Manea
NEAREST STATIONS
Distances are straight line measurements from the centre of the postcode- Manea Station0.9 miles
Notes
Disclaimer - Property reference 0244_HRT024412232. The information displayed about this property comprises a property advertisement. Rightmove.co.uk makes no warranty as to the accuracy or completeness of the advertisement or any linked or associated information, and Rightmove has no control over the content. This property advertisement does not constitute property particulars. The information is provided and maintained by haart, March. Please contact the selling agent or developer directly to obtain any information which may be available under the terms of The Energy Performance of Buildings (Certificates and Inspections) (England and Wales) Regulations 2007 or the Home Report if in relation to a residential property in Scotland.
Map data ©OpenStreetMap contributors.






