
4 bedroom detached house for sale
Trelawny Place, Candlet Road, IP11 6AE

- PROPERTY TYPE
Detached
- BEDROOMS
4
- SIZE
Ask developer
- TENUREDescribes how you own a property. There are different types of tenure - freehold, leasehold, and commonhold.Read more about tenure in our glossary page.
Freehold
Key features
- French doors leading into the garden
- South facing garden
- Private Driveway
- Modern open plan kitchen/dining room
- Study/home office
- Front aspect living room
Description
There’s space in this detached family house for four bedrooms and a study and that’s all just on the first floor. The Marston has super flexible living space downstairs too. The combination of an open-plan kitchen/dining room, a separate living room and an integral garage, make this new home the ideal choice for all the comings and goings of busy family life.
Additional Information
- Tenure: Freehold
- Annual service charge amount (£): 88
- Council tax band: Not made available by local authority until post-occupation
Parking - Single Garage
Room Dimensions
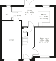
- Kitchen - 2.47 x 3.08 metre
- Dining - 4.16 x 3.08 metre
- Living room - 3.29 x 4.54 metre
- Bedroom 1 - 3.29 x 4.18 metre
- Bedroom 2 - 3.11 x 3.02 metre
- Bedroom 3 - 2.79 x 3.5 metre
- Bedroom 4 - 2.89 x 2.93 metre
- Study - 2.37 x 1.91 metre
- COUNCIL TAXA payment made to your local authority in order to pay for local services like schools, libraries, and refuse collection. The amount you pay depends on the value of the property.Read more about council Tax in our glossary page.
- Ask developer
- PARKINGDetails of how and where vehicles can be parked, and any associated costs.Read more about parking in our glossary page.
- Yes
- GARDENA property has access to an outdoor space, which could be private or shared.
- Yes
- ACCESSIBILITYHow a property has been adapted to meet the needs of vulnerable or disabled individuals.Read more about accessibility in our glossary page.
- Ask developer
Energy performance certificate - ask developer
- Choice of 2, 3, 4 or 5 bedroom homes
- Beautiful coastline walks on your doorstep
- Fantastic choice of local schooling
- Great local amenities
Trelawny Place, Candlet Road, IP11 6AE
Add an important place to see how long it'd take to get there from our property listings.
__mins driving to your place
Get an instant, personalised result:
- Show sellers you’re serious
- Secure viewings faster with agents
- No impact on your credit score
About Persimmon Homes Suffolk
Set in the coastal town of Felixstowe, Trelawny Place is our new collection of two, three, four and five-bedroom homes. With beautiful local beaches nearby plus easy access to Ipswich town centre, you'll get the best of both worlds living here.
As well as being a popular seaside resort, Felixstowe is a busy container port. These very different aspects of life in the town mean that there are plenty of facilities for you to make the most of, hand in hand with excellent road and rail transport links. The A14 is the key route in and out of the town, connecting with the A12 just outside Ipswich. For a quieter landscape you can head inland to cross the River Deben at Woodbridge. From there the Suffolk Coast & Heaths Area of Outstanding Natural Beauty stretches to the north taking in the classic seaside towns of Aldeburgh and Southwold.
This development offers the following schemes:
- Deposit Unlock
- Bank of Mum and Dad
- Part Exchange your Home
- Home Change
- Early Bird Scheme
- Deposit Boost: 5% Deposit Contribution Scheme
- Armed Forces, Key Workers & NHS Discount Scheme
- Own New Rate Reducer Scheme
- New Build Boost
Schemes are available on selected plots only, subject to status, terms and conditions apply. Contact the development for latest information.
Your mortgage
Notes
Staying secure when looking for property
Ensure you're up to date with our latest advice on how to avoid fraud or scams when looking for property online.
Visit our security centre to find out moreDisclaimer - Property reference 4_25. The information displayed about this property comprises a property advertisement. Rightmove.co.uk makes no warranty as to the accuracy or completeness of the advertisement or any linked or associated information, and Rightmove has no control over the content. This property advertisement does not constitute property particulars. The information is provided and maintained by Persimmon Homes Suffolk. Please contact the selling agent or developer directly to obtain any information which may be available under the terms of The Energy Performance of Buildings (Certificates and Inspections) (England and Wales) Regulations 2007 or the Home Report if in relation to a residential property in Scotland.
*This is the average speed from the provider with the fastest broadband package available at this postcode. The average speed displayed is based on the download speeds of at least 50% of customers at peak time (8pm to 10pm). Fibre/cable services at the postcode are subject to availability and may differ between properties within a postcode. Speeds can be affected by a range of technical and environmental factors. The speed at the property may be lower than that listed above. You can check the estimated speed and confirm availability to a property prior to purchasing on the broadband provider's website. Providers may increase charges. The information is provided and maintained by Decision Technologies Limited. **This is indicative only and based on a 2-person household with multiple devices and simultaneous usage. Broadband performance is affected by multiple factors including number of occupants and devices, simultaneous usage, router range etc. For more information speak to your broadband provider.
Map data ©OpenStreetMap contributors.






