Malyons Road, Hextable, Kent, BR8
- PROPERTY TYPE
Land
- BEDROOMS
4
- BATHROOMS
1
- SIZE
Ask agent
Key features
- Redevelopment Opportunity
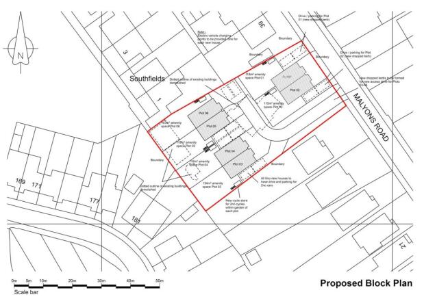
- Planning Permission Granted for the demolition of existing house and construction of 6 new 3 bedroom self-build/custom-build dwellings
- Edwardian Detached Art Deco Design House
- Four / Five Bedrooms
- Five Reception Rooms
- Needing Modernisation With Bags of Potential
- Kitchen Breakfast Room & Separate Utility
- 0.47 Acre Wrap Around Garden Plot & Drive
- Detached Double Garage & Double Garage/Workshop
- Vacant Possession
Description
• For Sale by Auction – T & C’s apply
• Subject to an undisclosed Reserve Price
• Reservation Fee applicable
• The Modern Method of Auction
Development opportunity which is coming to the market for the first time in fifty years, Hillside is an 0.47 acre plot and offering a wealth of potential with planning permission granted for the demolition of existing house and construction of 6 new 3 bedroom self-build/custom-build dwellings, or for those seeking a substantial family residence to sympathetically extend and modernise creating a forever home in this desirable Kentish village.
Offered with vacant possession, this charming property is ready for either a developer or a family particularly one looking for multigenerational space, versatility and character.
For those looking to redevelop the existing house with its attractive Edwardian façade with elegant Art Deco features, spacious interior and significant outbuildings, Hillside represents a rare opportunity to acquire a one-of-a-kind home that can be restored and re-imagined to meet modern lifestyles - a property with history, presence and exceptional potential in a peaceful Kentish setting.
Location
Hextable is a semi-rural village in North-West Kent between Swanley and Dartford, surrounded by Green Belt farmland yet within easy reach of London. The village retains its traditional community feel with a post office, bakery, chemist and grocery stores centred around its tree-lined green and lies just 16 miles from central London with excellent road access to the A2, A20, M20, M25 and Dartford Crossing. Nearby stations at Swanley, Dartford and Bexley provide direct rail services to London Bridge and London Victoria, while Ebbsfleet International offers high-speed links to St Pancras. Local schooling is well served with Hextable Primary, Wilmington Grammar Schools for Boys and Girls, and Wilmington Academy all within easy reach. Dartford Grammar School for Boys with Dartford Grammar School for Girls a short drive away.
Directions
From Hextable Post Office, head north on Main Road/B258. At the roundabout, take the 1st exit onto College Road. Turn right onto Malyons Road. The property is on the left-hand side.
Auctioneer's Comments
This property is for sale by the Modern Method of Auction. Should you view, offer or bid on the property, your information will be shared with the Auctioneer, iamsold. This method of auction requires both parties to complete the transaction within 56 days of the draft contract for sale being received by the buyer's solicitor. This additional time allows buyers to proceed with mortgage finance (subject to lending criteria, affordability and survey). The buyer is required to sign a reservation agreement and make payment of a non-refundable Reservation Fee. This being 4.5% of the purchase price including VAT, subject to a minimum of £6,600.00 including VAT. The Reservation Fee is paid in addition to purchase price and will be considered as part of the chargeable consideration for the property in the calculation for stamp duty liability.
Further Auctioneer's Comments
Buyers will be required to go through an identification verification process with iamsold and provide proof of how the purchase would be funded. This property has a Buyer Information Pack which is a collection of documents in relation to the property. The documents may not tell you everything you need to know about the property, so you are required to complete your own due diligence before bidding. A sample copy of the Reservation Agreement and terms and conditions are also contained within this pack. The buyer will also make payment of £300.00 including VAT towards the preparation cost of the pack, where it has been provided by iamsold. The property is subject to an undisclosed Reserve Price with both the Reserve Price and Starting Bid being subject to change.
Referral Arrangements
The Partner Agent and Auctioneer may recommend the services of third parties to you. Whilst these services are recommended as it is believed they will be of benefit; you are under no obligation to use any of these services, and you should always consider your options before services are accepted. Where services are accepted the Auctioneer or Partner Agent may receive payment for the recommendation and you will be informed of any referral arrangement and payment prior to any services being taken by you.
Entrance Porch
Period wooden front door. Wiindow to side and front. Beamed ceiling. Brick flooring.
Entrance Hall
Frosted, semi glazed, front door to front. Frosted windows to front. Papered ceiling. Carpet. Radiator. Stairs to first floor.
Sitting Room
11' 9" x 11' 7" (3.58m x 3.53m)
Double glazed window to front and featured curved window to front. Two bay windows to side. Papered and coved ceiling. Carpet. Radiator. Period fireplace with gas fire.
Dining Room
17' 5" x 12' 2" (5.3m x 3.7m)
Double glazed bay window to front. Beamed ceiling. Carpet. Dado rail. Two radiators. Serving hatch to kitchen.
Drawing Room
18' 11" x 16' 5" (5.77m x 5m)
Double glazed window to front. Double glazed window to side. Double glazed door to side. Two feature, round Crittall windows to rear. Beamed ceiling. Carpet. Two radiators. Fitted bar.
Family Room
11' 8" x 11' 5" (3.56m x 3.48m)
Double glazed patio door to side. Papered coved ceiling. Carpet. Radiator.
Kitchen/Breakfast Room
14' 0" x 11' 9" (4.27m x 3.58m)
Double glazed window to sides. Papered ceiling. Part tiled walls. Carpet. Wall and base units with worktop over. Integrated electric oven and electric grill. Gas hob. Integrated fridge. One and half bowel stainless steel sink and drainer. Radiator. Serving hatch to Dining Room.
Utility Room
11' 8" x 7' 3" (3.56m x 2.2m)
Double glazed window to rear. Feature round Crittall window to rear. Plain ceiling. Base units with worktops over. One and a half bowl stainless steel sink and drainer. Part tiled walls. Carpet. Space for washing machine. Boiler. Consumer unit.
Conservatory & Jacuzzi Room
18' 3" x 10' 4" (5.56m x 3.15m)
Double glazed patio door to side. Double glazed frosted windows to side and rear. Tiled flooring. Part tiled walls. Electric radiator. Jacuzzi.
Wet Room
5' 9" x 6' 0" (1.75m x 1.83m)
Double glazed frosted window to rear. Papered ceiling. Downlighters. Panels to walls. Vinyl flooring. Low level W.C. Shower. Wash hand basin in vanity unit. Heated towel rail. Cabinet. Extractor fan.
Rear Hallway
Double glazed frosted door to rear and window above.
First Floor Landing
Feature leaded light window to study.. Papered ceiling. Wrought iron staircase. Carpet. Airing cupboard and ceiling height cupboard. Dado rail.
Lower Landing
Double glazed window to side. Papered ceiling. Carpet. Loft access.
Bedroom/Games Room
20' 5" x 16' 6" (6.22m x 5.03m)
Double glazed window to front and rear. Papered ceiling. Carpet. Two radiators. Dado rail. Storage cupboard.
Sauna Room
5' 2" x 3' 3" (1.57m x 1m)
Sauna. All wooden walls, ceiling and floor. Bench and sauna heater.
Bedroom
13' 8" x 12' 1" (4.17m x 3.68m)
Double glazed window to front. Papered ceiling. Dado rail. Carpet. Radiator. Fitted wardrobes and drawer unit.
Bedroom
13' 1" x 11' 3" (4m x 3.43m)
Double glazed window to front. Papered ceiling. Carpet. Radiator. Fitted wardrobes and shelving unit.
Bedroom
10' 4" x 9' 2" (3.15m x 2.8m)
Double glazed window to side. Papered ceiling. Carpet. Radiator. Period fitted cupboard.
Study
8' 4" x 6' 3" (2.54m x 1.9m)
Double glazed window to rear. Papered ceiling. Carpet. Period storage cupboard. Dado rail. Radiator. Feature leaded light window to landing.
Family Bathroom
11' 2" x 6' 2" (3.4m x 1.88m)
Double glazed frosted, arch window to rear. Papered ceiling. Carpet. Radiator. Panelled bath. Low level W.C. Wash hand basin. Fully tiled walls. Cabinet with shaver socket.
Separate Shower
4' 7" x 2' 8" (1.4m x 0.81m)
Double glazed frosted window to side. Papered ceiling. Carpet. Radiator. Fully tiled.
Room to Loft Access
8' 4" x 8' 5" (2.54m x 2.57m)
Double glazed window to side. Papered ceiling. Carpet. Radiator. Access stairs to loft.
Attic Room
18' 6" x 11' 0" (5.64m x 3.35m)
Double glazed window to front. Apex ceiling. Downlighters. Carpet. Eaves Storage. Door access to loft storage.
Attic Store Room
20' 3" x 19' 6" (6.17m x 5.94m)
Double Garage / Workshop
26' 2" x 22' 9" (7.98m x 6.93m)
Metal roof. Double glazed door to front. Double glazed windows to front & rear. Double up and over door. Six roof lights. Power and light.
Double Garage
20' 1" x 1' 7" (6.12m x 0.48m)
Metal roof. Double glazed windows to side and rear. Two up and over doors. Two roof lights. Power and light.
Outbuildings
Greenhouse. Container/shed.
Wrap Around Gardens
Overall Plot Size 0.47 Acres - Laid to lawn. Patio. Shrubs.
Parking
Wrap around driveway with parking for several cars.
Transport Information
Train Stations: Swanley 1.4 miles. Bexley 2.4 miles. Crayford 2.5 miles. Farningham 2.8 miles. Dartford 3 miles. Longfield 5.4 miles. Ebbsfleet Eurostar International Station 6.5 miles The distances calculated are as the crow flies.
Local Schools
Primary Schools: Hextable Primary School 0.1 miles. Horizon Primary Academy 0.8 miles. St Pauls' Church of England Voluntary Controlled Primary School 0.8 miles. St Bartholomew's Catholic Primary School 0.9 miles. Joydens Wood Junior School 1 mile. Downsview Community Primary School 1.1 miles. Joydens Wood Infant School 1.1 miles. Wilmington Primary School 1.3 miles. Secondary Schools: The Annex School House 0.6 miles. Orchard Academy 1.2 miles. Wilmington Academy 1.3 miles. Wilmington Grammar School for Boys 1.3 miles. Parkwood Hall Co-Operative Academy 1.4 miles. Wilmington Grammar School for Girls 1.5 miles. Dartford Grammar School for Girls 2.4 miles. Dartford Grammar School for Boys 2.6 miles. Information sourced from Rightmove (findaschool). Please check with the local authority as to catchment areas and intake criteria
Useful Information
We recognise that buying a property is a big commitment and therefore recommend that you visit the local authority websites for more helpful information about the property and local area before proceeding. Some information in these details is taken from third party sources. Should any of the information be critical in your decision making then please contact Clifton & Co for verification.
Tenure
The vendor confirms to us that the property is freehold. Should you proceed with the purchase of the property your solicitor must verify these details.
Council Tax
We are informed this property is in band G. For confirmation please contact Sevenoaks Borough Council.
Appliances/Services
The mention of any appliances and/or services within these particulars does not imply that they are in full efficient working order.
Measurements
All measurements are approximate and therefore may be subject to a small margin of error.
Opening Hours/Viewings
Monday to Friday 9.00 am – 6.30 pm Saturday 9.00 am – 5.30 pm Viewing via Clifton & Co office.
Ref
FCSO/FW/JT/251020 - HAR250152
Brochures
ParticularsEnergy Performance Certificates
EPC Rating GraphMalyons Road, Hextable, Kent, BR8
NEAREST STATIONS
Distances are straight line measurements from the centre of the postcode- Swanley Station1.2 miles
- Bexley Station2.4 miles
- Crayford Station2.6 miles
Notes
Disclaimer - Property reference HAR250250. The information displayed about this property comprises a property advertisement. Rightmove.co.uk makes no warranty as to the accuracy or completeness of the advertisement or any linked or associated information, and Rightmove has no control over the content. This property advertisement does not constitute property particulars. The information is provided and maintained by Clifton & Co Estate Agents, North Kent. Please contact the selling agent or developer directly to obtain any information which may be available under the terms of The Energy Performance of Buildings (Certificates and Inspections) (England and Wales) Regulations 2007 or the Home Report if in relation to a residential property in Scotland.
Auction Fees: The purchase of this property may include associated fees not listed here, as it is to be sold via auction. To find out more about the fees associated with this property please call Clifton & Co Estate Agents, North Kent on 01474 552384.
*Guide Price: An indication of a seller's minimum expectation at auction and given as a Guide Price or a range of Guide Prices. This is not necessarily the figure a property will sell for and is subject to change prior to the auction.
Reserve Price: Each auction property will be subject to a Reserve Price below which the property cannot be sold at auction. Normally the Reserve Price will be set within the range of Guide Prices or no more than 10% above a single Guide Price.
Map data ©OpenStreetMap contributors.









