
Land for sale
Stocking Drove, Chatteris, PE16
- PROPERTY TYPE
Land
- SIZE
46,758 sq ft
4,344 sq m
Key features
- Residential Development Site
- Planning Consent for 5 x 5 Bedroom Houses
- GDV Approx: £3.5M
- Stunning Rural Location
- Sale Of Separate Plots May Be Considered
Description
An attractive opportunity to purchase a residential development site with planning consent for the construction of 5 × 5 bedroomed detached properties located off London Road just outside Chatteris.
Planning - The original outline planning consent was granted by Fenland District Council on the 7th July 2023 for the erection of up to six detached dwellings with garages and new vehicular accesses (reference F/YR23/0077/O)
A Reserved Matters Consent was granted on the 3rd June 2025 for the appearance and landscaping of five properties (reference F/YR25/0185/RM)
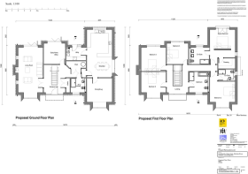
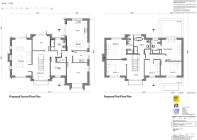
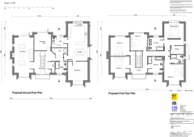
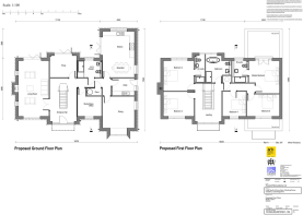
Each of the five plots is approximately 869 square metres / 9,354 square feet
Once built the properties at plots 2 and 6 will consist of 279 square metres / 3,003 square feet of accommodation and the properties at plots 3, 4 and 5 will be 263 square metres / 2,831 square feet).
The vendor may consider selling plots separately.
Brochures
Property BrochureStocking Drove, Chatteris, PE16
NEAREST STATIONS
Distances are straight line measurements from the centre of the postcode- Manea Station7.2 miles
Notes
Disclaimer - Property reference c8781e83-e0f0-41f5-8753-f22f04dae26a. The information displayed about this property comprises a property advertisement. Rightmove.co.uk makes no warranty as to the accuracy or completeness of the advertisement or any linked or associated information, and Rightmove has no control over the content. This property advertisement does not constitute property particulars. The information is provided and maintained by Hockeys, Ely. Please contact the selling agent or developer directly to obtain any information which may be available under the terms of The Energy Performance of Buildings (Certificates and Inspections) (England and Wales) Regulations 2007 or the Home Report if in relation to a residential property in Scotland.
Map data ©OpenStreetMap contributors.








