
Bawtry Road, Bessacarr, Doncaster

- PROPERTY TYPE
Detached
- BEDROOMS
4
- BATHROOMS
1
- SIZE
Ask agent
- TENUREDescribes how you own a property. There are different types of tenure - freehold, leasehold, and commonhold.Read more about tenure in our glossary page.
Freehold
Description
Attention all developers, speculators or a discerning buyers. We are delighted to bring to the market a substantial detached dormer style property sat on a very large plot, extending to approx. 1/3 of acre on one of Doncaster’s most sought after residential roadways. There is a huge amount of scope and potential……the plot could accommodate a high quality high value detached residence, subject of course to necessary planning permissions.The existing accommodation is laid out over two floors, although the majority of the accommodation is on the ground floor, itbriefly comprises: Large reception hall, L shaped lounge and dining room, kitchen, 2 very large ground floor bedrooms and a large bathroom. On the first floor there is a large bedroom, with a second bedroom off (which would benefit from some re-configuring). The gardens we think extend to approx 1/3 of an acre, although it’s overgrown and difficult to ascertain. Gorgeous position set back off Bawtry Road. VIEWING HIGHLY RECOMMENDED.
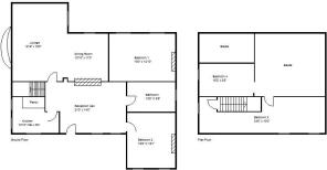
Accommodation - A substantial timber entrance door leads into a large reception hall.
Reception Hall - 6.40m x 4.27m (21'0" x 14'0") - This has a feature fireplace, two arched windows to the front, central ceiling pendant light, a staircase to the first floor, doors to the accommodation.
Lounge & Dining Room - 6.55m max x 4.57m max (21'6" max x 15'0" max ) - This is a large 'L' shaped reception room which has a Georgian bow to the side, a further arched window, there is a fireplace, ceiling light, it then opens directly into a dining area with a further leaded glazed window giving an outlook in to the rear garden.
Kitchen - 4.22m max x 3.91m max (13'10" max x 12'10" max) - This has a pantry, two leaded glazed windows to the front and side elevations and a stable type door.
Bedroom 1 Rear - 5.49m x 3.91m (18'0" x 12'10") - This is a large double bedroom with a central fireplace and two leaded windows to the rear garden.
Bedroom 2 - 4.60m x 3.86m (15'1" x 12'8") - A large second double bedroom with a central fireplace and two leaded windows to the front elevation.
Bathroom - This has a leaded window to the side, two central heating radiators, bath, wc and built-in cupboards.
First Floor - A staircase from the reception hall gives access to the first floor.
Bedroom 3 - 10.36m x 3.05m (34'0" x 10'0") - This has two dormer windows to the front with a further window to the side and a door which continues and leads into a fourth bedroom.
Bedroom 4 - This has a leaded window to the side.
Outside - The property stands in large gardens extending to approximately 1/3 of an acre, it is overgrown and difficult to see the true potential and therefore viewing is advised.
Agents Notes: - TENURE - FREEHOLD.
SERVICES - All mains services are connected.
GLAZING - .Mainly timber framed single glazed units.
HEATING - A mixture of background and free standing heaters.
COUNCIL TAX - Band F
BROADBAND - Ultrafast broadband is available with download speeds of up to 10000 mbps and upload speeds of up to 10000 mbps.
MOBILE COVERAGE - Coverage is available with EE, Three, 02 and Vodafone.
VIEWING - By prior telephone appointment with horton knights estate agents.
MEASUREMENTS - Please note all measurements are approximate and for guidance purposes only, with a six inch tolerance. Therefore please do NOT rely upon them for carpet measurements, furniture and the like. Similarly, the floor plan is designed as a visual reference and is NOT a scale drawing.
PROPERTY PARTICULARS - We endeavour to make our property particulars accurate and reliable, however if there is a point that is especially important to you, please contact ourselves prior to exchange of contracts, so that we may further clarify that point. We DO NOT give any warranty to the suitability of any part, including fixtures and fittings of this property, prospective buyers are kindly asked to take specific advice from their professional advisors.
OPENING HOURS - Monday - Friday 9:00 - 5:30 Saturday 9:00 - 3:00 Sunday
INDEPENDENT MORTGAGE ADVICE - With so many mortgage options to choose from, how do you know your getting the best deal? Quite simply...YOU DON'T. Talk to an expert. We offer uncomplicated impartial advice. Call us today: .
FREE VALUATIONS - If you need to sell a house then please take advantage of our FREE VALUATION service, contact our Doncaster Office for a prompt and efficient service.
Brochures
Bawtry Road, Bessacarr, DoncasterBrochure- COUNCIL TAXA payment made to your local authority in order to pay for local services like schools, libraries, and refuse collection. The amount you pay depends on the value of the property.Read more about council Tax in our glossary page.
- Band: F
- PARKINGDetails of how and where vehicles can be parked, and any associated costs.Read more about parking in our glossary page.
- Garage
- GARDENA property has access to an outdoor space, which could be private or shared.
- Yes
- ACCESSIBILITYHow a property has been adapted to meet the needs of vulnerable or disabled individuals.Read more about accessibility in our glossary page.
- Ask agent
Energy performance certificate - ask agent
Bawtry Road, Bessacarr, Doncaster
Add an important place to see how long it'd take to get there from our property listings.
__mins driving to your place
Get an instant, personalised result:
- Show sellers you’re serious
- Secure viewings faster with agents
- No impact on your credit score



Your mortgage
Notes
Staying secure when looking for property
Ensure you're up to date with our latest advice on how to avoid fraud or scams when looking for property online.
Visit our security centre to find out moreDisclaimer - Property reference 34301188. The information displayed about this property comprises a property advertisement. Rightmove.co.uk makes no warranty as to the accuracy or completeness of the advertisement or any linked or associated information, and Rightmove has no control over the content. This property advertisement does not constitute property particulars. The information is provided and maintained by Horton Knights, Doncaster. Please contact the selling agent or developer directly to obtain any information which may be available under the terms of The Energy Performance of Buildings (Certificates and Inspections) (England and Wales) Regulations 2007 or the Home Report if in relation to a residential property in Scotland.
*This is the average speed from the provider with the fastest broadband package available at this postcode. The average speed displayed is based on the download speeds of at least 50% of customers at peak time (8pm to 10pm). Fibre/cable services at the postcode are subject to availability and may differ between properties within a postcode. Speeds can be affected by a range of technical and environmental factors. The speed at the property may be lower than that listed above. You can check the estimated speed and confirm availability to a property prior to purchasing on the broadband provider's website. Providers may increase charges. The information is provided and maintained by Decision Technologies Limited. **This is indicative only and based on a 2-person household with multiple devices and simultaneous usage. Broadband performance is affected by multiple factors including number of occupants and devices, simultaneous usage, router range etc. For more information speak to your broadband provider.
Map data ©OpenStreetMap contributors.





