
Earlesmere Avenue, Balby , Doncaster

- PROPERTY TYPE
Terraced
- BEDROOMS
3
- BATHROOMS
1
- SIZE
Ask agent
- TENUREDescribes how you own a property. There are different types of tenure - freehold, leasehold, and commonhold.Read more about tenure in our glossary page.
Freehold
Description
BEAUTIFUL PERIOD STYLED 3 BEDROOM TERRACED HOUSE / WELL PRESENTED THROUGHOUT / TWO RECEPTION ROOMS / MODERN FIRST FLOOR BATHROOM / ATTRACTIVE REAR GARDEN / UNRESTRICTED ON STREET PARKING / NO CHAIN / EARLY VIEWING ESSENTIAL //
Located on this popular roadway close to the city centre, a lovely 3 bedroom period styled terraced house. The property has retained a lot of its original character and styling yet benefits from more modern PVC double glazing, gas central heating via a combination type boiler and briefly comprises: Entrance hall with stairs to first floor, two separate reception rooms, extended fitted kitchen including a period style ornamental range, access to cellars, first floor landing, three bedrooms all of which are a good size plus a modern bathroom. From the landing there is an access into a large boarded storage loft with two velux windows. Enclosed rear courtyard style garden, and unrestricted on street parking. Well placed with access to local amenities on Balby Road including a good variety of shops etc, plus good bus routes to and from the city centre.
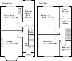
Accommodation - An original brick arch gives access to the portico with a terrazo style flooring and coving to the ceiling. A period style leaded glazed door with decorative detailing incorporating the house number leads into the property's entrance hall.
Entrance Hall - This is all smartly finished and retains much of the properties character feel and styling. There is a boarded floor, a staircase to the first floor accommodation with paneling to the side, a coat rail, coving to the ceiling, central ceiling light, double panel central heating radiator and door into front facing reception room.
Lounge - 4.01m max x 3.66m max (13'2" max x 12'0" max) - This is an attractive room. It has a period style open fire with original tiled inset and hearth with a timber surround, a deep PVC double glazed bay window to the front, a double panel central heating radiator, coving, picture rail and a ceiling light.
Dining Room - 4.27m x 3.35m max (14'0" x 11'0" max) - Again, a good sized reception room. It has a PVC double glazed window with an outlook to the rear, feature fire surround with a deep recess. Double panel central heating radiator, coving, picture rail and a ceiling light.
Extended Kitchen - 4.62m x 1.93m (15'2" x 6'4") - The kitchen is smartly finished with a range of high and low level units, finished with an iroko oak work surface and a tiled splashback. There is a deep recess suitable for a gas cooker with with extractor hood above, plumbing for an automatic washing machine, room for fridge, freezer, etc. There's a wall mounted gas fired combination type boiler which supplies the domestic water and central heating systems. A PVC double glazed window, a period styled quarry tiled floor, three central ceiling lights. A feature period style range, a central heating radiator with a further door gives access down to the cellar.
Cellar - Stone steps lead down to a storage cellar
First Floor Landing - There is a tall storage cupboard and an access point into loft space by a retractable loft ladder.
Loft Space - Within the loft space there is a boarded floor, two double glazed velux windows, light laid on, and lots of storage space.
Bedroom 1 - 4.27m x 3.35m max (14'0" x 11'0" max) - This is a large double bedroom as evidenced by the room measurements. There is a PVC double glazed window with an outlook over the rear garden, a entral heating radiator, period fireplace, picture rail and a ceiling light.
Bedroom 2 - 3.40m max x 3.35m (11'2" max x 11'0") - A good sized second double bedroom. It has a PVC double glazed window to the front, central heating radiator, picture rail and ceiling light including an ornate fireplace.
Bedroom 3 - 2.44m x 1.93m (8'0" x 6'4") - This is a comfortable third bedroom, it has a PVC double glazed window to the front, a central heating radiator, laminate flooring, picture rail and a ceiling light.
House Bathroom - This is all smartly finished with a modern white suite that comprises of a shower style bath with independent electric shower over, a pedestal wash hand basin and low flush wc. There's modern tiling to the walls, coordinating floor tile,
PVC double glazed window, ceiling light and a towel rail/ radiator.
Outside - Outside to the front of the property there is unrestricted on street car parking
Rear Garden - A pretty rear garden, it has fencing and walling to the perimeters. There is a brick set patio which extends part way across the rear elevation and leads down to a lawn. There is a pedestrian gate giving access onto the rear lane, timber shed, additional storage.
Agents Notes: - TENURE - FREEHOLD.
SERVICES - All mains services are connected.
DOUBLE GLAZING - PVC double glazing, where stated. Age of units various.
HEATING - Gas radiator central heating. Age of boiler. around 10 years old.
COUNCIL TAX - Band A
BROADBAND - Ultrafast broadband is available with download speeds of up to 1,000 mbps and upload speeds of up to 1,000 mbps.
MOBILE COVERAGE - Coverage is available with EE, Three, 02 and Vodafone.
VIEWING - By prior telephone appointment with horton knights estate agents.
MEASUREMENTS - Please note all measurements are approximate and for guidance purposes only, with a six inch tolerance. Therefore please do NOT rely upon them for carpet measurements, furniture and the like. Similarly, the floor plan is designed as a visual reference and is NOT a scale drawing.
PROPERTY PARTICULARS - We endeavour to make our property particulars accurate and reliable, however if there is a point that is especially important to you, please contact ourselves prior to exchange of contracts, so that we may further clarify that point. We DO NOT give any warranty to the suitability of any part, including fixtures and fittings of this property, prospective buyers are kindly asked to take specific advice from their professional advisors.
OPENING HOURS - Monday - Friday 9:00 - 5:30 Saturday 9:00 - 3:00 Sunday
INDEPENDENT MORTGAGE ADVICE - With so many mortgage options to choose from, how do you know your getting the best deal? Quite simply...YOU DON'T. Talk to an expert. We offer uncomplicated impartial advice. Call us today: .
FREE VALUATIONS - If you need to sell a house then please take advantage of our FREE VALUATION service, contact our Doncaster Office for a prompt and efficient service.
Brochures
Earlesmere Avenue, Balby , DoncasterBrochure- COUNCIL TAXA payment made to your local authority in order to pay for local services like schools, libraries, and refuse collection. The amount you pay depends on the value of the property.Read more about council Tax in our glossary page.
- Band: A
- PARKINGDetails of how and where vehicles can be parked, and any associated costs.Read more about parking in our glossary page.
- On street
- GARDENA property has access to an outdoor space, which could be private or shared.
- Yes
- ACCESSIBILITYHow a property has been adapted to meet the needs of vulnerable or disabled individuals.Read more about accessibility in our glossary page.
- Ask agent
Energy performance certificate - ask agent
Earlesmere Avenue, Balby , Doncaster
Add an important place to see how long it'd take to get there from our property listings.
__mins driving to your place
Get an instant, personalised result:
- Show sellers you’re serious
- Secure viewings faster with agents
- No impact on your credit score



Your mortgage
Notes
Staying secure when looking for property
Ensure you're up to date with our latest advice on how to avoid fraud or scams when looking for property online.
Visit our security centre to find out moreDisclaimer - Property reference 34301308. The information displayed about this property comprises a property advertisement. Rightmove.co.uk makes no warranty as to the accuracy or completeness of the advertisement or any linked or associated information, and Rightmove has no control over the content. This property advertisement does not constitute property particulars. The information is provided and maintained by Horton Knights, Doncaster. Please contact the selling agent or developer directly to obtain any information which may be available under the terms of The Energy Performance of Buildings (Certificates and Inspections) (England and Wales) Regulations 2007 or the Home Report if in relation to a residential property in Scotland.
*This is the average speed from the provider with the fastest broadband package available at this postcode. The average speed displayed is based on the download speeds of at least 50% of customers at peak time (8pm to 10pm). Fibre/cable services at the postcode are subject to availability and may differ between properties within a postcode. Speeds can be affected by a range of technical and environmental factors. The speed at the property may be lower than that listed above. You can check the estimated speed and confirm availability to a property prior to purchasing on the broadband provider's website. Providers may increase charges. The information is provided and maintained by Decision Technologies Limited. **This is indicative only and based on a 2-person household with multiple devices and simultaneous usage. Broadband performance is affected by multiple factors including number of occupants and devices, simultaneous usage, router range etc. For more information speak to your broadband provider.
Map data ©OpenStreetMap contributors.





