Air Space Above, 77-79 High Street, Cosham, Portsmouth, Hampshire, PO6 3AZ
- SIZE
Ask agent
- SECTOR
Residential development for sale
Key features
- Located in busy suburb of Portsmouth
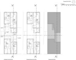
- Planning permission granted for construction of 8 dwellings
- 4 x 2 bedroom flats and 4 x 1 bedroom flats
- Steel fabrications installed ready for development
- Individual water and electrical services in place
- CIL payment required
- 3x ground floor retail units also available to purchase stc producing circa £58,000 (further information on request)
- No VAT
- Offers sought in the region of £150,000 stc for the long leasehold interest
Description
The subject development space comprises the air space above Kestrel Court.
Utilities - Individual electrical services were installed by SSE for 2 existing flats on the ground floor, 3 shops and a landlord supply, with provision in place on the BNO supply for the 8 new flats. New individual water supplies have also been installed.
Steel Grillage - Fabrications of steelworks have been undertaken on the ground floor to facilitate the construction of the upper parts. However, there will be some additional costs to prove the existing grillage is acceptable for the additional load. The new structural engineer will also need to design the additional ground floor steels and pad stones to rear left corner and the connection to existing grillage.
Location
Portsmouth is located approximately 19 miles south east of Southampton and 70 miles south west of London. The city benefits from excellent road communications being situated at the M27/A27 junction, which links to M3 and A3(M) and provides access to London and the wider national motorway network.
The property is located in Cosham, which is a busy suburb of Portsmouth. Nearby occupiers include Peacocks, Greggs, Costa, Specsavers and Betfred.
Planning
In July 2023, planning permission (21/01774/FUL) was granted for Construction of two separate 2-storey roof extensions above existing building with connecting walkways and communal roof terraces to form 8 dwellings; alterations at ground floor to create new entrance fronting Dorking Crescent and associated refuse storage facilities.
4 x 2 bedroom flats and 4 x 1 bedroom flats.
CIL payment is required, cost to be determined.
Further information on request.
VAT
We understand that the property is not elected for VAT.
EPC
This site is exempt from requiring an EPC in its present form.
Legal Fees
Each party to bear their own legal costs incurred.
AML
In accordance with current Government legislation, we are legally required to conduct Anti-Money Laundering (AML) checks on all prospective purchasers or tenants where the transaction involves a capital value of €15,000 (EUR) or more, or a rental value of €10,000 (EUR) per calendar month or greater.
This process includes verifying identity, as well as confirming the source and availability of funds. Please note that we must obtain and record this information before any transaction can be formalised or contracts exchanged.
Brochures
Air Space Above, 77-79 High Street, Cosham, Portsmouth, Hampshire, PO6 3AZ
NEAREST STATIONS
Distances are straight line measurements from the centre of the postcode- Cosham Station0.1 miles
- Hilsea Station1.1 miles
- Portchester Station2.6 miles
Notes
Disclaimer - Property reference 8193FH. The information displayed about this property comprises a property advertisement. Rightmove.co.uk makes no warranty as to the accuracy or completeness of the advertisement or any linked or associated information, and Rightmove has no control over the content. This property advertisement does not constitute property particulars. The information is provided and maintained by Flude Property Consultants, Brighton. Please contact the selling agent or developer directly to obtain any information which may be available under the terms of The Energy Performance of Buildings (Certificates and Inspections) (England and Wales) Regulations 2007 or the Home Report if in relation to a residential property in Scotland.
Map data ©OpenStreetMap contributors.






