
3 bedroom detached house for sale
Sunderland Drive, Apley, Telford, Shropshire, TF1

- PROPERTY TYPE
Detached
- BEDROOMS
3
- BATHROOMS
1
- SIZE
Ask agent
- TENUREDescribes how you own a property. There are different types of tenure - freehold, leasehold, and commonhold.Read more about tenure in our glossary page.
Freehold
Key features
- Three Bedroom Detached
- Recently re-furbished
- Splendid Corner Plot
- Modern Kitchen Diner
- Conservatory
- Refitted Family Bathroom
- Garage
Description
This recently refurbished and impressive family home is situated in the popular residential locality of Apley being served by a range of neighbourhood facilities and Primary School, ideal for families.
The modern interior comprises, entrance reception, lounge, impressive open plan kitchen diner and bright conservatory.
To the first floor you will find three good sized bedrooms with neutral decor and a splendid refurbished bathroom.
Externally, the property is approached over a tributary road serving two neighbouring properties, the property occupies the end corner plot which provides ample parking, leading to the garage.
The garden provides great scope for further enhancement and the current owners have explored the options to extend with initial plans drawn up (subject to consents)
Agents are aware that the property has had spray foam professionally removed (certificates available)
Mobile coverage from all four major networks*
Ultrafast Broadband available*
Mains Connected
Parking & Garage
*Results provided by Ofcom and correct at time of listing
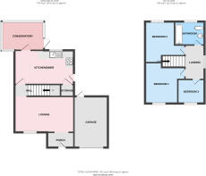
Entrance Lobby
Lounge
4.5m x 3.6m
Kitchen Diner
4.5m x 3.1m
Conservatory
3.5m x 2.4m
Stairs to First Floor
Bedroom One
3.7m x 2.8m
Bedroom Two
3.1m x 2.8m
Bedroom Three
2.8m x 1.8m
Refitted Family Bathroom
Garage
5.1m x 2.5m
Surrounding Gardens
Brochures
Particulars- COUNCIL TAXA payment made to your local authority in order to pay for local services like schools, libraries, and refuse collection. The amount you pay depends on the value of the property.Read more about council Tax in our glossary page.
- Band: C
- PARKINGDetails of how and where vehicles can be parked, and any associated costs.Read more about parking in our glossary page.
- Yes
- GARDENA property has access to an outdoor space, which could be private or shared.
- Yes
- ACCESSIBILITYHow a property has been adapted to meet the needs of vulnerable or disabled individuals.Read more about accessibility in our glossary page.
- Ask agent
Sunderland Drive, Apley, Telford, Shropshire, TF1
Add an important place to see how long it'd take to get there from our property listings.
__mins driving to your place
Get an instant, personalised result:
- Show sellers you’re serious
- Secure viewings faster with agents
- No impact on your credit score



Your mortgage
Notes
Staying secure when looking for property
Ensure you're up to date with our latest advice on how to avoid fraud or scams when looking for property online.
Visit our security centre to find out moreDisclaimer - Property reference TTC252019. The information displayed about this property comprises a property advertisement. Rightmove.co.uk makes no warranty as to the accuracy or completeness of the advertisement or any linked or associated information, and Rightmove has no control over the content. This property advertisement does not constitute property particulars. The information is provided and maintained by D B Roberts & Partners, Telford. Please contact the selling agent or developer directly to obtain any information which may be available under the terms of The Energy Performance of Buildings (Certificates and Inspections) (England and Wales) Regulations 2007 or the Home Report if in relation to a residential property in Scotland.
*This is the average speed from the provider with the fastest broadband package available at this postcode. The average speed displayed is based on the download speeds of at least 50% of customers at peak time (8pm to 10pm). Fibre/cable services at the postcode are subject to availability and may differ between properties within a postcode. Speeds can be affected by a range of technical and environmental factors. The speed at the property may be lower than that listed above. You can check the estimated speed and confirm availability to a property prior to purchasing on the broadband provider's website. Providers may increase charges. The information is provided and maintained by Decision Technologies Limited. **This is indicative only and based on a 2-person household with multiple devices and simultaneous usage. Broadband performance is affected by multiple factors including number of occupants and devices, simultaneous usage, router range etc. For more information speak to your broadband provider.
Map data ©OpenStreetMap contributors.





