4 bedroom detached house for sale
Bridge View Lane, West Rasen

- PROPERTY TYPE
Detached
- BEDROOMS
4
- BATHROOMS
2
- SIZE
Ask agent
- TENUREDescribes how you own a property. There are different types of tenure - freehold, leasehold, and commonhold.Read more about tenure in our glossary page.
Freehold
Key features
- Detached Cottage in 2.04 Acres
- Wonderful Riverside Location
- Triple plus Single Garages
- Large Barn (29'2 x 17'9)
- Two Stables plus Tack Room
- Workshop and Tool Store
- Two Receptions & Conservatory
- Kitchen/Breakfast & Boot Room
- Four Bedrooms, Two Bathrooms
- Paddock, Gardens & Abundant Parking
Description
The cottage has been extended over many decades and now has very well proportioned rooms which are heated by Oil Fired Central Heating and the warmth is retained with the help of uPVC double glazing plus a Log Burner and Open Fire for cosy Autumn and Winter evenings in.
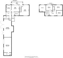
Accommodation comprises in brief: Entrance Porch/Sun Room, Hall, Living Room, Separate Sitting or Dining Room, Kitchen and Breakfast Room, Boot Room, Boiler Room, Inner Hall with Ground Floor Re-Fitted Bathroom and Conservatory off. On the First Floor there is a Spacious Landing, Four Double Bedrooms and Second Re-Fitted Bathroom.
The Grounds and Outbuildings are what this home is really about, it has Abundant Parking, Barn with large barn door, suitable for larger vehicles and in total is set in around 2.04 acres
Entrance Porch/Sun Room - 1.40m x 6.15m (4'7 x 20'2) - Approached through uPVC panelled entrance door. Coving. Windows to front and side. Two pairs of single glazed inner doors to Hallway and Separate Sitting/Dining Room.
Separate Sitting/Dining Room - 4.06m x 4.14m min (13'4 x 13'7 min) - Log burner with brick surround and beam. Coving. Double radiator. White panel effect doors to Hall, Kitchen/Breakfast Room and Inner Hall.
Hall - Stairs to first floor. Door to:-
Living Room - 6.02m x 4.55m average - plus recess (19'9 x 14'11 - Open fire stone effect surround. Coving. Windows to front and rear. Coving. Ceiling rose.
Kitchen/Breakfast Room - 4.01m x 3.05m (13'2 x 10'0) - Cream coloured wall and base units. Wood effect work-surfaces with inset single drainer sink top. Wall mounted, double opening glass cabinet. Window to front. Tiled splashbacks. Coving. Built-in electric oven, hob and extractor. Double radiator. Door to:-
Boot Room - 2.13m x 2.74m (7'0 x 9'0) - Window to side. uPVC half panel and half double glazed door to driveway. Archway to:-
Boiler Room - 1.55m x 1.65m (5'01 x 5'5) - Oil fired boiler. Built-in cupboard. Sliding door to:-
Utility Room - 1.73m x 2.77m (5'8 x 9'1) - Fitted wall and base units. Roll top work-surfaces with inset single drainer sink top. Window to side. Tiled splashbacks.
Inner Hall - 1.75m x 2.13m (5'9 x 7'0) - Door to Bathroom and glazed door to:-
Conservatory - 3.10m x 1.65m (10'2 x 5'5) - Windows to side and rear.
Re-Fitted Bathroom - White suite of bath having shower and screen over. Wash hand basin in vanity in white high-gloss finish with double cupboard. Low level W.C. Wood effect tiled floor. Tiled to coving height with mosaic effect border tiles. Window to rear. White heated towel rail.
First Floor Landing - 1.68m min x 4.45m plus 3.38m x 0.81m (5'6 min x 14 - Window to rear. Double radiator. Storage cupboard. White panel effect doors off.
Bedroom One - 2.97m x 4.65m plus wardrobe (9'9 x 15'3 plus wardr - Walk-in wardrobe with light. Radiator. Window to front. Panel effect finish to one feature wall.
Bedroom Two - 4.09m x 3.66m (13'5 x 12'0) - Fitted cupboards. Windows to front and side. Radiator.
Bedroom Three - 2.90m x 3.48m (9'6 x 11'5) - Window to rear. Radiator. Coving.
Bedroom Four - 3.18m x 3.68m min (10'5 x 12'1 min) - Access to loft. Radiator. Window to front.
Re-Fitted Bathroom - White suite of panelled bath having shower over. Pedestal wash basin. Low level W.C. 'Metro' style tiling to water sensitive areas. Window.
Front Garden - Approached through double opening ranch style gates. Expanse of lawn. Mature shrubs and trees. Driveway providing parking for umpteen cars or vehicles with hedgerow screening.
Triple Garage - 10.57m x 4.70m plus recess (34'8 x 15'5 plus reces - Approached by one pair of double sliding doors and a separate pair of double opening timber doors. Door to rear garden. Light and electric. Cold water supply.
Additional Single Garage - 4.32m x 3.51m (14'2 x 11'6) - Light and electric. Up and over door. Interlinking door to:-
Workshop - 5.26m x 0.30m 1.35m (17'3 x 1 4'5) - Window to front. Light and electric. Loft. Door to:-
Tool Store - 3.25m x 1.65m (10'8 x 5'5) - Door to Adjoining W.C. having W.C. and wash basin.
Lean-To Timber Workshop -
Stables And Tack Room - Stable One: 15'6 x 8'4
Stable Two: 15'8 x 9'3
Tack Room: 15'4 x 6'9
Electric.
Barn - 8.89m x 5.41m (29'2 x 17'9) - Approached through large timber door. Up and over garage door to rear/paddock Light.
Rear Garden - Mainly laid to lawn.
Additional Information - Tenure: Freehold
Services: Mains Electric and Water. BT Internet. Oil fired heating. Septic Tank
Council Tax Band: E - West Lindsey
EPC Rating: E
Agents Note: This home's septic tank is non compliant with modern regulations but has been taken into account when the property was priced for sale.
Brochures
Bridge View Lane, West RasenBrochure- COUNCIL TAXA payment made to your local authority in order to pay for local services like schools, libraries, and refuse collection. The amount you pay depends on the value of the property.Read more about council Tax in our glossary page.
- Band: E
- PARKINGDetails of how and where vehicles can be parked, and any associated costs.Read more about parking in our glossary page.
- Garage
- GARDENA property has access to an outdoor space, which could be private or shared.
- Yes
- ACCESSIBILITYHow a property has been adapted to meet the needs of vulnerable or disabled individuals.Read more about accessibility in our glossary page.
- Ask agent
Bridge View Lane, West Rasen
Add an important place to see how long it'd take to get there from our property listings.
__mins driving to your place
Get an instant, personalised result:
- Show sellers you’re serious
- Secure viewings faster with agents
- No impact on your credit score
About Perkins George Mawer & Co., Market Rasen
Corn Exchange Chambers, Queen Street, Market Rasen, LN8 3EH




Your mortgage
Notes
Staying secure when looking for property
Ensure you're up to date with our latest advice on how to avoid fraud or scams when looking for property online.
Visit our security centre to find out moreDisclaimer - Property reference 34304358. The information displayed about this property comprises a property advertisement. Rightmove.co.uk makes no warranty as to the accuracy or completeness of the advertisement or any linked or associated information, and Rightmove has no control over the content. This property advertisement does not constitute property particulars. The information is provided and maintained by Perkins George Mawer & Co., Market Rasen. Please contact the selling agent or developer directly to obtain any information which may be available under the terms of The Energy Performance of Buildings (Certificates and Inspections) (England and Wales) Regulations 2007 or the Home Report if in relation to a residential property in Scotland.
*This is the average speed from the provider with the fastest broadband package available at this postcode. The average speed displayed is based on the download speeds of at least 50% of customers at peak time (8pm to 10pm). Fibre/cable services at the postcode are subject to availability and may differ between properties within a postcode. Speeds can be affected by a range of technical and environmental factors. The speed at the property may be lower than that listed above. You can check the estimated speed and confirm availability to a property prior to purchasing on the broadband provider's website. Providers may increase charges. The information is provided and maintained by Decision Technologies Limited. **This is indicative only and based on a 2-person household with multiple devices and simultaneous usage. Broadband performance is affected by multiple factors including number of occupants and devices, simultaneous usage, router range etc. For more information speak to your broadband provider.
Map data ©OpenStreetMap contributors.




