Fullers Close, Kelvedon, Colchester

- PROPERTY TYPE
House
- BEDROOMS
2
- BATHROOMS
2
- SIZE
Ask agent
Key features
- Over 55's only
- Retirement complex
- Two bedrooms
- Two bathrooms
- Two reception rooms
- Some refurbishment required
- Call to arrange an early view
Description
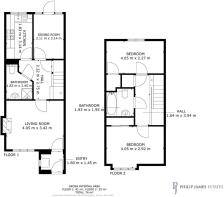
Entrance Hall - 1.60 x 1.45 (5'2" x 4'9") - Composite front door leading to hallway, double glazed window to side aspect, wall heater, door to :-
Lounge - 4.05 x 3.42 (13'3" x 11'2") - Double glazed window to front aspect, storage heater, feature fireplace with electric inset coal effect fire. Door to :-
Inner Hall - 2.75 x 2.32 (9'0" x 7'7") - Storage cupboard under stairs, storage heater, stairs to first floor, doors to :-
Downstairs Shower Room - 2.45 x 1.83 (8'0" x 6'0") - Enclosed shower cubicle with electric shower, low level WC, wash hand basin, heated towel rail, dimplex wall heater.
Kitchen - 3.14 x 1.83 (10'3" x 6'0") - Double glazed window to rear aspect, range of base and eye level units, built in oven, hob and extractor. Plumbed for a washing maching and space for a larder fridge
Dining Roon - 3.14 x 2.11 (10'3" x 6'11") - Double glazed door to rear, two double glazed windows to rear aspect, storage heater.
Stairs And Landing - 2.75 x 2.32 (9'0" x 7'7") - Stairs from ground floor, storage cupboard, loft hatchm doors to :-
Bedroom One - 4.05 x 2.92 (13'3" x 9'6") - Double glazed window to front aspect, built in wardrobes, panel heater.
Bedroom Two - 4.05 x 2.27 (13'3" x 7'5") - Double glazed window to rear aspect, panel heater, storage cupboard.
Bathroom - 1.95 x 1.93 (6'4" x 6'3") - Low level WC, wash hand basin, panel bath, fully tiled, heated towel rail.
Gardens - To the rear there is a private patio area leading to commuanl lawns and shrubs. To the front there are extensive lawned areas, mature shrubs, washing line facilities.
Parking - There are limited spaces on a first come basis, but ample road parking is available.
Brochures
Fullers Close, Kelvedon, ColchesterBrochure- COUNCIL TAXA payment made to your local authority in order to pay for local services like schools, libraries, and refuse collection. The amount you pay depends on the value of the property.Read more about council Tax in our glossary page.
- Band: C
- PARKINGDetails of how and where vehicles can be parked, and any associated costs.Read more about parking in our glossary page.
- Yes
- GARDENA property has access to an outdoor space, which could be private or shared.
- Yes
- ACCESSIBILITYHow a property has been adapted to meet the needs of vulnerable or disabled individuals.Read more about accessibility in our glossary page.
- Ask agent
Fullers Close, Kelvedon, Colchester
Add an important place to see how long it'd take to get there from our property listings.
__mins driving to your place
Get an instant, personalised result:
- Show sellers you’re serious
- Secure viewings faster with agents
- No impact on your credit score

Your mortgage
Notes
Staying secure when looking for property
Ensure you're up to date with our latest advice on how to avoid fraud or scams when looking for property online.
Visit our security centre to find out moreDisclaimer - Property reference 33293312. The information displayed about this property comprises a property advertisement. Rightmove.co.uk makes no warranty as to the accuracy or completeness of the advertisement or any linked or associated information, and Rightmove has no control over the content. This property advertisement does not constitute property particulars. The information is provided and maintained by Philip James Estates, Coggeshall. Please contact the selling agent or developer directly to obtain any information which may be available under the terms of The Energy Performance of Buildings (Certificates and Inspections) (England and Wales) Regulations 2007 or the Home Report if in relation to a residential property in Scotland.
*This is the average speed from the provider with the fastest broadband package available at this postcode. The average speed displayed is based on the download speeds of at least 50% of customers at peak time (8pm to 10pm). Fibre/cable services at the postcode are subject to availability and may differ between properties within a postcode. Speeds can be affected by a range of technical and environmental factors. The speed at the property may be lower than that listed above. You can check the estimated speed and confirm availability to a property prior to purchasing on the broadband provider's website. Providers may increase charges. The information is provided and maintained by Decision Technologies Limited. **This is indicative only and based on a 2-person household with multiple devices and simultaneous usage. Broadband performance is affected by multiple factors including number of occupants and devices, simultaneous usage, router range etc. For more information speak to your broadband provider.
Map data ©OpenStreetMap contributors.




