
4 bedroom detached house for sale
Bawtry Road, Bessacarr, Doncaster, DN4

- PROPERTY TYPE
Detached
- BEDROOMS
4
- BATHROOMS
3
- SIZE
Ask agent
- TENUREDescribes how you own a property. There are different types of tenure - freehold, leasehold, and commonhold.Read more about tenure in our glossary page.
Freehold
Key features
- Four Bedroom Detached Family Home
- Sizeable Plot with Approximately 1/2 an Acre of Land
- No Chain
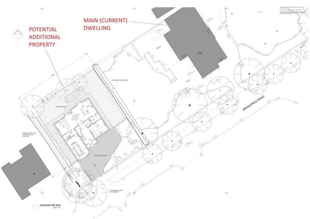
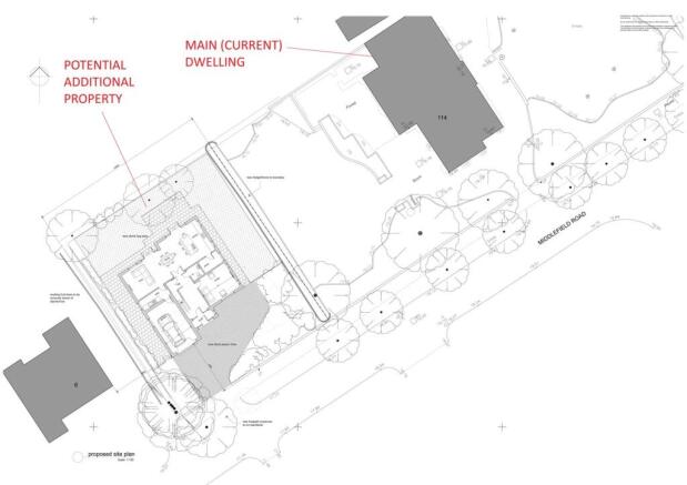
- Potential additional property - previous planning GRANTED - renewed application validated (DMBC Ref. 25/01601/OUT)
- Three Reception Rooms
- Two Garages, Outbuilding and a Driveway
- Two Family Bathrooms and an En Suite to the Master
- Great Potential for Development
- 3D Virtual Tour Available
- Affluent & Desirable Location with Local Amenities, Schools and Transport Links
Description
This spacious four bedroom detached family home occupies a generous corner plot of approximately 1/2 an acre, offering fantastic outdoor space and excellent potential to enhance or develop further (subject to planning). The property is surrounded by mature gardens to the front, side and rear. To the exterior, there is a driveway and two separate garages, along with a useful attached outbuilding offering additional storage. Inside, the home offers a versatile layout with three large reception rooms, allowing flexibility for family living, entertaining or working from home. The kitchen sits at the heart of the property, with a shower room/WC located on the ground floor for convenience. Upstairs, there are four well-proportioned bedrooms, including a large master bedroom with ensuite, and a further family bathroom. This is a rare opportunity to acquire a substantial property and land with scope to modernise and create a dream family home. Potential to build additional property - previous planning GRANTED - renewed application validated (DMBC Ref. 25/01601/OUT).
Construction Type
Standard (Brick)
Floor Plan 1
Entry
Kitchen
Lounge
Family Room
Dining Room
Utility Room
Bathroom
Floor Plan 2
Master Bedroom & En Suite
Bedroom 1
Bedroom 2
Bedroom 3
Family Bathroom
Front Aspect
Rear Garden
Garden Room
Aerial Photos
Potential Additional Property
Property Information
Council Tax Band - G
Utilities - Mains Gas, Mains Electricity, Mains Water
Water Meter - Yes
Tenure - Freehold
Solar Panels - No
Space Heating System - Gas Boiler with radiators
Approximate Heating System Installation Date - 11/21/2016
Water Heating System - Gas Boiler (Hot Water Tank)
Approximate Water Heating Installation Date - 11/21/2016
Boiler Location - Utility room
Approximate Electrical System Installation Date -
Permanent Loft Ladder - No
Loft Insulation - Yes
Loft Boarded out – No
Restrictions on the use of the property which would impact a buyers general use of the property or land - Covenants within original 1964 land conveyance
Whilst every effort is made to ensure that the information contained in these particulars is reliable, they do not constitute or form part of an offer or any contract. The Property Hive accept no liability for the accuracy of the contents, and therefore they should...
Brochures
Brochure 1- COUNCIL TAXA payment made to your local authority in order to pay for local services like schools, libraries, and refuse collection. The amount you pay depends on the value of the property.Read more about council Tax in our glossary page.
- Band: G
- PARKINGDetails of how and where vehicles can be parked, and any associated costs.Read more about parking in our glossary page.
- Garage,Driveway
- GARDENA property has access to an outdoor space, which could be private or shared.
- Yes
- ACCESSIBILITYHow a property has been adapted to meet the needs of vulnerable or disabled individuals.Read more about accessibility in our glossary page.
- Ask agent
Bawtry Road, Bessacarr, Doncaster, DN4
Add an important place to see how long it'd take to get there from our property listings.
__mins driving to your place
Get an instant, personalised result:
- Show sellers you’re serious
- Secure viewings faster with agents
- No impact on your credit score
Your mortgage
Notes
Staying secure when looking for property
Ensure you're up to date with our latest advice on how to avoid fraud or scams when looking for property online.
Visit our security centre to find out moreDisclaimer - Property reference 29005456. The information displayed about this property comprises a property advertisement. Rightmove.co.uk makes no warranty as to the accuracy or completeness of the advertisement or any linked or associated information, and Rightmove has no control over the content. This property advertisement does not constitute property particulars. The information is provided and maintained by The Property Hive, Bessacarr. Please contact the selling agent or developer directly to obtain any information which may be available under the terms of The Energy Performance of Buildings (Certificates and Inspections) (England and Wales) Regulations 2007 or the Home Report if in relation to a residential property in Scotland.
*This is the average speed from the provider with the fastest broadband package available at this postcode. The average speed displayed is based on the download speeds of at least 50% of customers at peak time (8pm to 10pm). Fibre/cable services at the postcode are subject to availability and may differ between properties within a postcode. Speeds can be affected by a range of technical and environmental factors. The speed at the property may be lower than that listed above. You can check the estimated speed and confirm availability to a property prior to purchasing on the broadband provider's website. Providers may increase charges. The information is provided and maintained by Decision Technologies Limited. **This is indicative only and based on a 2-person household with multiple devices and simultaneous usage. Broadband performance is affected by multiple factors including number of occupants and devices, simultaneous usage, router range etc. For more information speak to your broadband provider.
Map data ©OpenStreetMap contributors.






