Distribution warehouse to lease
Units 7, 8A, 8B, 8C and 9 Lopen Business Park, Mill Lane, Lopen, South Petherton, TA13 5JS
- SIZE AVAILABLE
3,458-27,500 sq ft
321-2,555 sq m
- SECTOR
Distribution warehouse to lease
Lease details
- Lease available date:
- Now
- Lease type:
- Long term
Key features
- Ideally located for the A303
- 5 units currently occupied as on but which could be split
- Existing lease for assignment or sub letting in whole or part
- Up to 27,500 sq ft
- Rent from £15,500 pa
Description
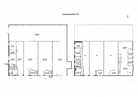
Configured as 5 units each interconnected and formerly occupied as one.
Can be split. Up to 27,500 sq ft with a large car park.
A floor plan is available for download on our website showing the configuration.
The unit is located within Lopen Business Park, Lopen, South Petherton.
The estate is ideally located for the A303 and midway between Crewkerne and Ilmninster.
Crewkerne and Ilminster 6 miles, Yeovil 12 miles, Taunton 20 miles.
Other occupiers on the estate include Beehive Storage and Hewins Group Ltd.
Brochures
Units 7, 8A, 8B, 8C and 9 Lopen Business Park, Mill Lane, Lopen, South Petherton, TA13 5JS
NEAREST STATIONS
Distances are straight line measurements from the centre of the postcode- Crewkerne Station3.8 miles
Notes
Disclaimer - Property reference 308130-2. The information displayed about this property comprises a property advertisement. Rightmove.co.uk makes no warranty as to the accuracy or completeness of the advertisement or any linked or associated information, and Rightmove has no control over the content. This property advertisement does not constitute property particulars. The information is provided and maintained by Chesters Harcourt, Yeovil. Please contact the selling agent or developer directly to obtain any information which may be available under the terms of The Energy Performance of Buildings (Certificates and Inspections) (England and Wales) Regulations 2007 or the Home Report if in relation to a residential property in Scotland.
Map data ©OpenStreetMap contributors.





