
Terraced house for sale
South Audley Street, London, W1K

- PROPERTY TYPE
Terraced
- SIZE
15,993 sq ft
1,486 sq m
- TENUREDescribes how you own a property. There are different types of tenure - freehold, leasehold, and commonhold.Read more about tenure in our glossary page.
Freehold
Key features
- Freehold
- Grade II Listed
- Mixed use
- Access to desirable communal gardens
- Over 15,000sqft in total
- EPC Rating = E
Description
Description
Currently owned and occupied by a private family office in mixed-commercial and residential use, with access to a private communal garden, one of the “secret gardens” of Mayfair.
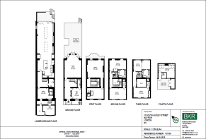
13 South Audley Street:
- Freehold
- Grade II Listed, 6 storey Georgian terrace house built in c.1736.
- Approximately 5,118 sq ft (475.46 sq m) gross internal area (GIA), arranged over Lower Ground, Ground, and four upper floors.
- Lower Ground floor terrace and a larger Ground level internal terrace, both of which lead to the private communal garden.
-The property comprises 6-7 bedrooms, 6 bathrooms, playroom, study, expansive open-plan kitchen/living and dining area, separate living room and plenty of storage.
14 South Audley Street:
- Freehold
- Grade II Listed, 6 storey Georgian terrace building, originally built as a townhouse in c.1736.
- Approximately 10,815 sq ft (1,004.17 sq m) GIA, arranged over Lower Ground, Ground and four upper floors.
-The property comprises both residential and office use, with office use the main function of the Property.
- The Fourth Floor self-contained 1-bedroom flat comprises a large kitchen/reception room, bedroom and bathroom.
- The property has a lift, accessing Lower Ground to Third floor.
- The private communal garden is accessed via a rear door located on the Lower Ground floor level.
-The Ground Floor flat is ancillary the main office use and is located to the rear of the property, comprising a self-contained 1-bedroom flat, with reception hall, kitchen, grand meeting/reception room, and non-original mezzanine where the bedroom is located.
*Please note that there are CGI images included in the photo gallery
Square Footage: 15,993 sq ft
Brochures
Web Details- COUNCIL TAXA payment made to your local authority in order to pay for local services like schools, libraries, and refuse collection. The amount you pay depends on the value of the property.Read more about council Tax in our glossary page.
- Band: H
- PARKINGDetails of how and where vehicles can be parked, and any associated costs.Read more about parking in our glossary page.
- Ask agent
- GARDENA property has access to an outdoor space, which could be private or shared.
- Ask agent
- ACCESSIBILITYHow a property has been adapted to meet the needs of vulnerable or disabled individuals.Read more about accessibility in our glossary page.
- Ask agent
South Audley Street, London, W1K
Add an important place to see how long it'd take to get there from our property listings.
__mins driving to your place
Get an instant, personalised result:
- Show sellers you’re serious
- Secure viewings faster with agents
- No impact on your credit score
Your mortgage
Notes
Staying secure when looking for property
Ensure you're up to date with our latest advice on how to avoid fraud or scams when looking for property online.
Visit our security centre to find out moreDisclaimer - Property reference MAS250130. The information displayed about this property comprises a property advertisement. Rightmove.co.uk makes no warranty as to the accuracy or completeness of the advertisement or any linked or associated information, and Rightmove has no control over the content. This property advertisement does not constitute property particulars. The information is provided and maintained by Savills, Mayfair. Please contact the selling agent or developer directly to obtain any information which may be available under the terms of The Energy Performance of Buildings (Certificates and Inspections) (England and Wales) Regulations 2007 or the Home Report if in relation to a residential property in Scotland.
*This is the average speed from the provider with the fastest broadband package available at this postcode. The average speed displayed is based on the download speeds of at least 50% of customers at peak time (8pm to 10pm). Fibre/cable services at the postcode are subject to availability and may differ between properties within a postcode. Speeds can be affected by a range of technical and environmental factors. The speed at the property may be lower than that listed above. You can check the estimated speed and confirm availability to a property prior to purchasing on the broadband provider's website. Providers may increase charges. The information is provided and maintained by Decision Technologies Limited. **This is indicative only and based on a 2-person household with multiple devices and simultaneous usage. Broadband performance is affected by multiple factors including number of occupants and devices, simultaneous usage, router range etc. For more information speak to your broadband provider.
Map data ©OpenStreetMap contributors.






