Plot for sale
Plots at Valley View Bungalow, Pontsticill Merthyr Tydfil CF48 2UE
- PROPERTY TYPE
Plot
- BEDROOMS
4
- SIZE
Ask agent
Key features
- x2 PLOTS FOR SALE
- (£150,000 per plot) | £300,000 Total Asking Price
Description
This area of land is currently within the title of the large Large property (which is simultaneously available for sale with us. The title will be divided upon sale
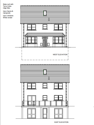
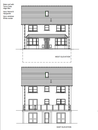
Outline planning is granted for the construction of 2x 4 Bedroom Houses.
A project for anyone looking to develop in this sought after village community.
Ponsticill is part of Bannau Brycheiniog National Park, just outside Merthyr Tydfil- A stunning Location with these plots benefitting from open views from the rear across the Valley and the surrounding area. Accessed via a lane off the main road through the existing gated entrance.
PLANNING: 23/21964/OUT
(Brecon Beacons National Park Authority)
Contact us for more details.
Further documents and site plan available within this advert.
Brochures
Planning DecisionPlots at Valley View Bungalow, Pontsticill Merthyr Tydfil CF48 2UE
NEAREST STATIONS
Distances are straight line measurements from the centre of the postcode- Merthyr Tydfil Station3.2 miles
- Rhymney Station4.1 miles
- Pentre-bach Station4.6 miles

Notes
Disclaimer - Property reference PlotsValleyView. The information displayed about this property comprises a property advertisement. Rightmove.co.uk makes no warranty as to the accuracy or completeness of the advertisement or any linked or associated information, and Rightmove has no control over the content. This property advertisement does not constitute property particulars. The information is provided and maintained by Derek B Phillips, Merthyr Tydfil. Please contact the selling agent or developer directly to obtain any information which may be available under the terms of The Energy Performance of Buildings (Certificates and Inspections) (England and Wales) Regulations 2007 or the Home Report if in relation to a residential property in Scotland.
Map data ©OpenStreetMap contributors.





