
Roof and Airspace at Daisy Court, 6 Brownlow Road, Bounds Green, N11 2DE
- PROPERTY TYPE
Land
- SIZE
Ask agent
Description
Long Leasehold Roof Space with Consent for Two Self-Contained Flats
Situated off Bounds Green Road and immediately opposite Bounds Green Tube Station (Piccadilly Line) with excellent bus and train connections including Bowes Park and Alexandra Palace Overground Stations. Close proximity to local shops, cafes, pubs and leisure facilities including Broomfield Park, Alexandra Palace Park and the Oliver Tambo Recreation Ground.
A Long Leasehold Roof Space
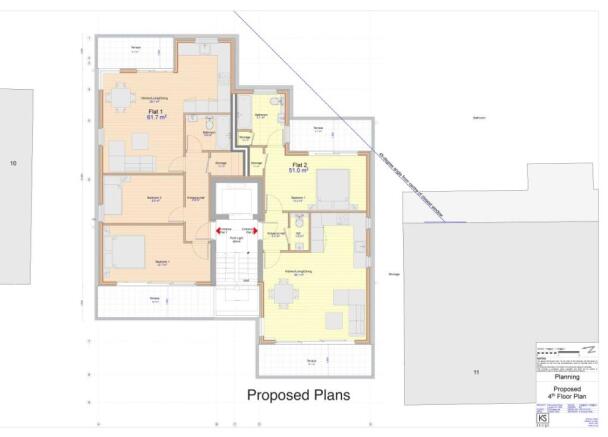
Planning Consent has been granted by London Borough of Haringey on the 27th March 2024 for a Roof Extension to Create Two New Dwellings and Associated Works. Copies of the proposed plans are available for inspection. (Planning Reference HGY/2023/3009).
Leasehold for a term of 999 years from 1st March 2019 (thus having approximately 993 years unexpired).
Note 1: The property is sold with the freeholder's consent for development.
Note 2: The proposed accommodation of the flats are Flat 1 is a Two Bedroom Flat of approximately 61.7m2 and Flat 2 is a One Bedroom Flat of approximately 51m2. Both flats include Front and Rear Terraces.
Note 3: Daisy Court is a block of 8 flats which was built approximately 7 years ago. The building contains a lift.
Tenancy
Vacant Possession
*Guides are provided as an indication of each seller's minimum expectation. They are not necessarily figures which a property will sell for and may change at any time prior to the auction. Each property will be offered subject to a Reserve (a figure below which the Auctioneer cannot sell the property during the auction) which we expect will be set within the Guide Range or no more than 10% above a single figure Guide. Guide prices will be continually updated on our website up until the day of the auction.
There is a buyers fee payable to McHugh & Co of £1,200 incl. VAT for lots sold over £10,000. Lots sold for less than £10,000 a buyers fee of £300 incl. VAT is to be paid to McHugh & Co.
The seller may charge additional fees payable upon completion. If applicable, such fees are detailed within the special conditions of sale available in the legal documentation. Buyers are deemed to bid in full knowledge of this.
Brochures
Online BiddingRoof and Airspace at Daisy Court, 6 Brownlow Road, Bounds Green, N11 2DE
NEAREST STATIONS
Distances are straight line measurements from the centre of the postcode- Bounds Green Station0.0 miles
- Bowes Park Station0.1 miles
- Alexandra Palace Station0.6 miles
Notes
Disclaimer - Property reference 316006. The information displayed about this property comprises a property advertisement. Rightmove.co.uk makes no warranty as to the accuracy or completeness of the advertisement or any linked or associated information, and Rightmove has no control over the content. This property advertisement does not constitute property particulars. The information is provided and maintained by McHugh & Co, London. Please contact the selling agent or developer directly to obtain any information which may be available under the terms of The Energy Performance of Buildings (Certificates and Inspections) (England and Wales) Regulations 2007 or the Home Report if in relation to a residential property in Scotland.
Auction Fees: The purchase of this property may include associated fees not listed here, as it is to be sold via auction. To find out more about the fees associated with this property please call McHugh & Co, London on 020 3907 9877.
*Guide Price: An indication of a seller's minimum expectation at auction and given as a Guide Price or a range of Guide Prices. This is not necessarily the figure a property will sell for and is subject to change prior to the auction.
Reserve Price: Each auction property will be subject to a Reserve Price below which the property cannot be sold at auction. Normally the Reserve Price will be set within the range of Guide Prices or no more than 10% above a single Guide Price.
Map data ©OpenStreetMap contributors.





