Cumberworth Lane, Denby Dale, Huddersfield
- SIZE
Ask agent
- SECTOR
Land for sale
Key features
- RESIDENTIAL DEVELOPMENT LAND
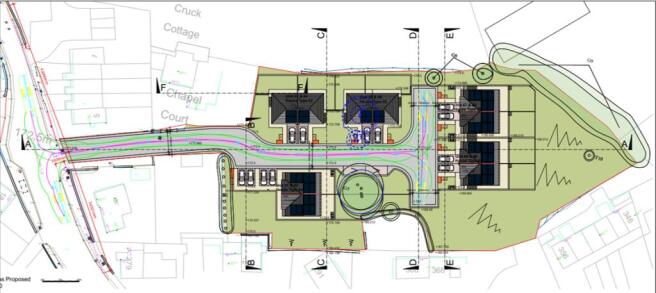
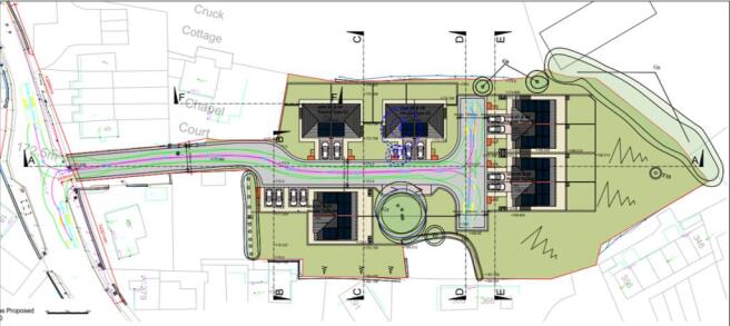
- OUTLINE PLANNING FOR 10 RESIDENTIAL DWELLINGS
- 0.45 HECTARES (1.12 ACRES)
- FOR SALE BY AUCTION
- 3RD DECEMBER 2025
Description
An exciting opportunity to purchase 0.45 hectares (1.12 acres) or thereabouts of residential development land with Outline Planning/Reserved Matters Permission for the erection of 10 dwellings.
The land is offered for sale by Public Auction being conducted on Wednesday 3rdDecember 2025 at Silkstone Golf Course, Silkstone, Barnsley, South Yorkshire S75 4LD.
Cumberworth Lane, Denby Dale, Huddersfield
NEAREST STATIONS
Distances are straight line measurements from the centre of the postcode- Denby Dale Station0.3 miles
- Shepley Station2.3 miles
- Stocksmoor Station3.1 miles
Notes
Disclaimer - Property reference 1232. The information displayed about this property comprises a property advertisement. Rightmove.co.uk makes no warranty as to the accuracy or completeness of the advertisement or any linked or associated information, and Rightmove has no control over the content. This property advertisement does not constitute property particulars. The information is provided and maintained by Wilbys Chartered Surveyors, Barnsley. Please contact the selling agent or developer directly to obtain any information which may be available under the terms of The Energy Performance of Buildings (Certificates and Inspections) (England and Wales) Regulations 2007 or the Home Report if in relation to a residential property in Scotland.
Auction Fees: The purchase of this property may include associated fees not listed here, as it is to be sold via auction. To find out more about the fees associated with this property please call Wilbys Chartered Surveyors, Barnsley on 01226 447772.
*Guide Price: An indication of a seller's minimum expectation at auction and given as a Guide Price or a range of Guide Prices. This is not necessarily the figure a property will sell for and is subject to change prior to the auction.
Reserve Price: Each auction property will be subject to a Reserve Price below which the property cannot be sold at auction. Normally the Reserve Price will be set within the range of Guide Prices or no more than 10% above a single Guide Price.
Map data ©OpenStreetMap contributors.




