Ffordd Y Glowyr, Betws, Ammanford, SA18 2FF

- PROPERTY TYPE
Semi-Detached
- BEDROOMS
3
- BATHROOMS
1
- SIZE
Ask agent
- TENUREDescribes how you own a property. There are different types of tenure - freehold, leasehold, and commonhold.Read more about tenure in our glossary page.
Freehold
Key features
- No Upper Chain
- Ideal First Time Buyers Home
- Three Bedrooms
- En-suite Facilities
- Gas C/h & Double Glazing
- Ground Floor WC & First Floor Bathroom
- Enclosed Rear Garden
- Driveway
- Popular Location
- EPC Rating:
Description
A delightful three-bedroom semi-detached residence, situated within a sought-after residential development in the popular village of Betws, on the outskirts of Ammanford town centre. This well-presented home offers well-planned accommodation, ideal for first-time buyers or small families. The ground floor comprises an inviting entrance hall, cloakroom, and a modern fitted kitchen/dining area, complemented by a comfortable living room. To the first floor are three bedrooms, including a master bedroom with en-suite facilities, together with a family bathroom. The property benefits from gas-fired central heating and double glazing throughout. Externally, there is a side driveway providing ample off-road parking and a good-sized rear garden.
The village of Betws enjoys a convenient location close to Ammanford town centre, which provides a comprehensive range of shopping, leisure, and educational facilities. Excellent transport links are available, with easy access to the M4 motorway via Junction 49 at Pont Abraham, making this an ideal base for commuting.
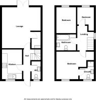
Accommodation:
Entrance Hallway
Cloakroom
Kitchen - 3.58m x 2.36m (11'9" x 7'9"/7'1")
Lounge Diner - 4.93m x 4.65m (16'2" x 15'3"/11'7")
First Floor Landing
Bedroom One - 3.56m x 3.3m (11'8"/7'9" x 10'10")
Ensuite
Bedroom Two - 3.12m x 2.34m (10'3" x 7'8")
Bedroom Three - 2.82m x 2.24m (9'3"/6'10" x 7'4")
Bathroom
Externally
Services
Tenure
Council Tax
Broadband & Mobile Phone Coverage
Disclaimer
Brochures
Brochure 1- COUNCIL TAXA payment made to your local authority in order to pay for local services like schools, libraries, and refuse collection. The amount you pay depends on the value of the property.Read more about council Tax in our glossary page.
- Band: C
- PARKINGDetails of how and where vehicles can be parked, and any associated costs.Read more about parking in our glossary page.
- Driveway
- GARDENA property has access to an outdoor space, which could be private or shared.
- Yes
- ACCESSIBILITYHow a property has been adapted to meet the needs of vulnerable or disabled individuals.Read more about accessibility in our glossary page.
- Ask agent
Energy performance certificate - ask agent
Ffordd Y Glowyr, Betws, Ammanford, SA18 2FF
Add an important place to see how long it'd take to get there from our property listings.
__mins driving to your place
Get an instant, personalised result:
- Show sellers you’re serious
- Secure viewings faster with agents
- No impact on your credit score
Your mortgage
Notes
Staying secure when looking for property
Ensure you're up to date with our latest advice on how to avoid fraud or scams when looking for property online.
Visit our security centre to find out moreDisclaimer - Property reference S1503096. The information displayed about this property comprises a property advertisement. Rightmove.co.uk makes no warranty as to the accuracy or completeness of the advertisement or any linked or associated information, and Rightmove has no control over the content. This property advertisement does not constitute property particulars. The information is provided and maintained by Calow Evans, Ammanford. Please contact the selling agent or developer directly to obtain any information which may be available under the terms of The Energy Performance of Buildings (Certificates and Inspections) (England and Wales) Regulations 2007 or the Home Report if in relation to a residential property in Scotland.
*This is the average speed from the provider with the fastest broadband package available at this postcode. The average speed displayed is based on the download speeds of at least 50% of customers at peak time (8pm to 10pm). Fibre/cable services at the postcode are subject to availability and may differ between properties within a postcode. Speeds can be affected by a range of technical and environmental factors. The speed at the property may be lower than that listed above. You can check the estimated speed and confirm availability to a property prior to purchasing on the broadband provider's website. Providers may increase charges. The information is provided and maintained by Decision Technologies Limited. **This is indicative only and based on a 2-person household with multiple devices and simultaneous usage. Broadband performance is affected by multiple factors including number of occupants and devices, simultaneous usage, router range etc. For more information speak to your broadband provider.
Map data ©OpenStreetMap contributors.




