
Morris Street, Hook, Hampshire, RG27

- PROPERTY TYPE
Semi-Detached
- BEDROOMS
2
- BATHROOMS
1
- SIZE
Ask agent
- TENUREDescribes how you own a property. There are different types of tenure - freehold, leasehold, and commonhold.Read more about tenure in our glossary page.
Freehold
Key features
- Two Spacious Bedrooms with Character
- Generous Living Room with Fireplace
- Kitchen/Dining with Granite Worktops
- Family Room Opens to Garden
- Spacious, Well Appointed Bathroom
- Low Maintenance Rear Garden
- Parking for Multiple Vehicles
- EPC: TBC
- Council Tax Band: D
Description
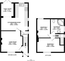
Upstairs, both bedrooms impress with their size and character. The front bedroom is spacious and bright, easily accommodating a spacious bed along with additional furniture. The rear bedroom also comfortably fits a double bed and retains its own fireplace, adding charm and warmth, while the treeline and garden beyond provide a peaceful, private outlook. The bathroom is spacious and well appointed, featuring a corner bath, toilet and sink.
Located on Morris Street in Hook, the property enjoys a quiet and private setting in a desirable area. The rear garden is low maintenance and enclosed by mature trees, which screen the trainline below and create a serene backdrop. A brick built shed provides extra storage, and the front offers parking for two cars with additional spaces opposite for visitors. This home combines character, practicality and privacy, appealing to downsizers while offering a versatile layout for a variety of buyers.
Valuation/Market Appraisal
Thinking of selling or struggling to sell? Get in contact with Bridges your experienced, local agents and book your free valuation now!
Brochures
Particulars- COUNCIL TAXA payment made to your local authority in order to pay for local services like schools, libraries, and refuse collection. The amount you pay depends on the value of the property.Read more about council Tax in our glossary page.
- Band: D
- PARKINGDetails of how and where vehicles can be parked, and any associated costs.Read more about parking in our glossary page.
- Yes
- GARDENA property has access to an outdoor space, which could be private or shared.
- Yes
- ACCESSIBILITYHow a property has been adapted to meet the needs of vulnerable or disabled individuals.Read more about accessibility in our glossary page.
- Ask agent
Energy performance certificate - ask agent
Morris Street, Hook, Hampshire, RG27
Add an important place to see how long it'd take to get there from our property listings.
__mins driving to your place
Get an instant, personalised result:
- Show sellers you’re serious
- Secure viewings faster with agents
- No impact on your credit score



Your mortgage
Notes
Staying secure when looking for property
Ensure you're up to date with our latest advice on how to avoid fraud or scams when looking for property online.
Visit our security centre to find out moreDisclaimer - Property reference HUB254944. The information displayed about this property comprises a property advertisement. Rightmove.co.uk makes no warranty as to the accuracy or completeness of the advertisement or any linked or associated information, and Rightmove has no control over the content. This property advertisement does not constitute property particulars. The information is provided and maintained by Bridges Estate Agents, Hook. Please contact the selling agent or developer directly to obtain any information which may be available under the terms of The Energy Performance of Buildings (Certificates and Inspections) (England and Wales) Regulations 2007 or the Home Report if in relation to a residential property in Scotland.
*This is the average speed from the provider with the fastest broadband package available at this postcode. The average speed displayed is based on the download speeds of at least 50% of customers at peak time (8pm to 10pm). Fibre/cable services at the postcode are subject to availability and may differ between properties within a postcode. Speeds can be affected by a range of technical and environmental factors. The speed at the property may be lower than that listed above. You can check the estimated speed and confirm availability to a property prior to purchasing on the broadband provider's website. Providers may increase charges. The information is provided and maintained by Decision Technologies Limited. **This is indicative only and based on a 2-person household with multiple devices and simultaneous usage. Broadband performance is affected by multiple factors including number of occupants and devices, simultaneous usage, router range etc. For more information speak to your broadband provider.
Map data ©OpenStreetMap contributors.





