
Harlands Road, Harlands House Harlands Road, RH16

- PROPERTY TYPE
Apartment
- BEDROOMS
2
- BATHROOMS
2
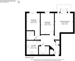
- SIZE
691 sq ft
64 sq m
- TENUREDescribes how you own a property. There are different types of tenure - freehold, leasehold, and commonhold.Read more about tenure in our glossary page.
Ask agent
Key features
- 2nd floor apartment with balcony - Lift and stairs to upper floors
- Prime location close to the railway station
- 2 double size bedrooms & 2 bath/shower rooms
- Generous sitting room with balcony - Separate kitchen with integrated appliances
- Allocating parking space in gated compound behind
- 5 minute walk to the railway station
- Literally across the road from Sainsbury's
- Internal viewing recommended
- EPC rating: C - Council Tax Band: C
Description
GUIDE PRICE … £240,000-£250,000
PLEASE WATCH THE VIDEO BEFORE BOOKING AN APPOINTMENT
A 2nd floor 2 double bedroom, 2 bathroom apartment with balcony and lift service in this modern block presented for sale in very clean and tidy decorative order throughout with an allocated parking space behind, situated within 400 yards of the railway station and close to Sainsbury's, Waitrose and the Leisure Centre.
Tenure: Leasehold 125 years from 01.01.2002
Ground rent: reviewed every 21 years and recently increased to £300 per year -next review in 2044
Service charge and sinking fund contribution - for the 6 month period up until 30 November 2025 - £860.81
For more information on the property please contact Dan Southwell at our Haywards Heath Office
EPC Rating: C
Brochures
Property Brochure- COUNCIL TAXA payment made to your local authority in order to pay for local services like schools, libraries, and refuse collection. The amount you pay depends on the value of the property.Read more about council Tax in our glossary page.
- Band: C
- PARKINGDetails of how and where vehicles can be parked, and any associated costs.Read more about parking in our glossary page.
- Yes
- GARDENA property has access to an outdoor space, which could be private or shared.
- Yes
- ACCESSIBILITYHow a property has been adapted to meet the needs of vulnerable or disabled individuals.Read more about accessibility in our glossary page.
- Ask agent
Energy performance certificate - ask agent
Harlands Road, Harlands House Harlands Road, RH16
Add an important place to see how long it'd take to get there from our property listings.
__mins driving to your place
Get an instant, personalised result:
- Show sellers you’re serious
- Secure viewings faster with agents
- No impact on your credit score



Your mortgage
Notes
Staying secure when looking for property
Ensure you're up to date with our latest advice on how to avoid fraud or scams when looking for property online.
Visit our security centre to find out moreDisclaimer - Property reference 688c8290-b8a5-4b6d-80a4-06b4cc04c371. The information displayed about this property comprises a property advertisement. Rightmove.co.uk makes no warranty as to the accuracy or completeness of the advertisement or any linked or associated information, and Rightmove has no control over the content. This property advertisement does not constitute property particulars. The information is provided and maintained by Mansell McTaggart, Haywards Heath. Please contact the selling agent or developer directly to obtain any information which may be available under the terms of The Energy Performance of Buildings (Certificates and Inspections) (England and Wales) Regulations 2007 or the Home Report if in relation to a residential property in Scotland.
*This is the average speed from the provider with the fastest broadband package available at this postcode. The average speed displayed is based on the download speeds of at least 50% of customers at peak time (8pm to 10pm). Fibre/cable services at the postcode are subject to availability and may differ between properties within a postcode. Speeds can be affected by a range of technical and environmental factors. The speed at the property may be lower than that listed above. You can check the estimated speed and confirm availability to a property prior to purchasing on the broadband provider's website. Providers may increase charges. The information is provided and maintained by Decision Technologies Limited. **This is indicative only and based on a 2-person household with multiple devices and simultaneous usage. Broadband performance is affected by multiple factors including number of occupants and devices, simultaneous usage, router range etc. For more information speak to your broadband provider.
Map data ©OpenStreetMap contributors.





