
Wilmslow Road, Cheadle, SK8 3NN

- PROPERTY TYPE
Detached
- BEDROOMS
4
- SIZE
Ask developer
- TENUREDescribes how you own a property. There are different types of tenure - freehold, leasehold, and commonhold.Read more about tenure in our glossary page.
Freehold
Key features
- You could save on your energy bills with a new build home according to HBF
- Spacious "L" shaped Symphony kitchen offering plentiful storage and worktop space
- Additional family "snug" area in the kitchen / dining room
- Fitted sliding wardrobes and en suite to the master bedroom
- Take a virtual tour using our 360 link or getting in touch
- Brand new Roca sanitary ware fitted for when you move in
- Benefit from our 2 year Customer Care Warranty on top of a NHBC backed 10 year Build Warranty
- Reserve this home in the early build stages to personalise fixtures from our Options range
- We're proud to be rated Excellent on Trustpilot by our homeowners
- We've been a 5 Star Housebuilder for 7 years running
Description
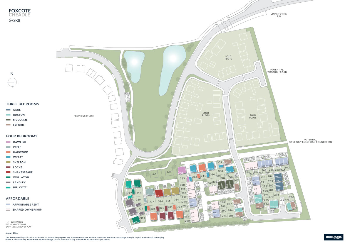
Plot 308: The Wyatt
Designed for modern family living, the Wyatt is an attractive four-bedroom house with generously sized bedrooms, an en suite to the master, and an impressive kitchen, dining & family room.
The spacious entrance hall downstairs opens onto a welcoming lounge with a traditional-style bay window that lets the light flood in, while a cloakroom and utility space are neatly enclosed behind double doors. But it’s the rear of The Wyatt that creates the real show-stopping space. An extensive kitchen, dining and family room that stretches the entire width of the home. We’ve even designed it to give you the option of extending it further by opening up its large French doors out into the rear garden. Moving upstairs, you’ll find a contemporary family bathroom, a laundry cupboard, and four bedrooms - one single and three doubles. The master bedroom impresses with its fitted double wardrobe and en suite.
Visit our Sales Centre or get in touch to book an appointment today.
Why Should You Buy New?
There are plenty of benefits of buying a new home over a second hand property - here's just a few. Our new homes are designed to a high standard of energy efficiency, meaning your monthly bills will be significantly less than running an older property. Plus, we can also save you money on those costly and timely renovations so there's no need to battle with the previous owner's questionable choice of décor! When we say new, we mean it. And when you reserve early, you're able to choose your fixtures and fittings in your new home from our range, so everything is just how you would like it.
Room Dimensions
- Kitchen/Dining/Family area - 7.20 x 4.25 metre
- Lounge - 4.11 x 4.15 metre
- Bedroom One - 3.68 x 2.88 metre
- Bedroom Two - 2.47 x 3.60 metre
- Bedroom Three - 2.61 x 3.15 metre
- Bedroom Four - 3.53 x 2.28 metre
- COUNCIL TAXA payment made to your local authority in order to pay for local services like schools, libraries, and refuse collection. The amount you pay depends on the value of the property.Read more about council Tax in our glossary page.
- Ask developer
- PARKINGDetails of how and where vehicles can be parked, and any associated costs.Read more about parking in our glossary page.
- Yes
- GARDENA property has access to an outdoor space, which could be private or shared.
- Yes
- ACCESSIBILITYHow a property has been adapted to meet the needs of vulnerable or disabled individuals.Read more about accessibility in our glossary page.
- Ask developer
Energy performance certificate - ask developer
- Stunning 3 & 4 bed homes ready to move into now!
- Foxcote offers a home for all, First time buyers, downsizers and growing families
- Perfectly situated for easy access to Manchester and Stockport
- Save up to £183 per month on your energy bills
Wilmslow Road, Cheadle, SK8 3NN
Add an important place to see how long it'd take to get there from our property listings.
__mins driving to your place
Get an instant, personalised result:
- Show sellers you’re serious
- Secure viewings faster with agents
- No impact on your credit score
About Bloor Homes
Bloor Homes
Building for the Future
Bloor Homes design and build homes of distinction tailored to the needs of modern life. Those who aspire to our homes readily acknowledge you only need look at a Bloor Home to realise that not all new homes are the same. But the true difference that sets Bloor Homes apart from the crowd is deeper than the varied architectural styles that first catch the eye.
The Bloor Group began building houses over 50 years ago and today is one of the largest privately owned house building groups in the UK. Building in excess of eighteen hundred homes each year, the house building operation is managed through eight regional companies. Our approach to the design of every new location goes far beyond the provision of superior homes for today’s way of living. We make every effort to conserve the natural balance of each location including the conservation of wildlife and the preservation of natural features – a policy which has been praised by several planning departments.
Our architects create interesting, imaginative layouts that compliment the range of properties. Whichever home you choose, you will find all rooms, together with their high specification, provide not only maximum comfort, but greater freedom of movement. Reserve a Bloor Home in the early stages of construction and you will have the freedom of choice too, to choose from our range of finishes for the kitchen, bathrooms and en-suite facilities.
We keep an eye on the future, combining traditional building materials and using modern methods to reduce maintenance. We pride ourselves on the wide choice of styles we offer from apartments to seven bedroom luxury homes.
With every Bloor Home comes the peace of mind that your needs and enquiries will always be answered, from your first visit to the day you move in to your new home.
Your mortgage
Notes
Staying secure when looking for property
Ensure you're up to date with our latest advice on how to avoid fraud or scams when looking for property online.
Visit our security centre to find out moreDisclaimer - Property reference 4_308. The information displayed about this property comprises a property advertisement. Rightmove.co.uk makes no warranty as to the accuracy or completeness of the advertisement or any linked or associated information, and Rightmove has no control over the content. This property advertisement does not constitute property particulars. The information is provided and maintained by Bloor Homes. Please contact the selling agent or developer directly to obtain any information which may be available under the terms of The Energy Performance of Buildings (Certificates and Inspections) (England and Wales) Regulations 2007 or the Home Report if in relation to a residential property in Scotland.
*This is the average speed from the provider with the fastest broadband package available at this postcode. The average speed displayed is based on the download speeds of at least 50% of customers at peak time (8pm to 10pm). Fibre/cable services at the postcode are subject to availability and may differ between properties within a postcode. Speeds can be affected by a range of technical and environmental factors. The speed at the property may be lower than that listed above. You can check the estimated speed and confirm availability to a property prior to purchasing on the broadband provider's website. Providers may increase charges. The information is provided and maintained by Decision Technologies Limited. **This is indicative only and based on a 2-person household with multiple devices and simultaneous usage. Broadband performance is affected by multiple factors including number of occupants and devices, simultaneous usage, router range etc. For more information speak to your broadband provider.
Map data ©OpenStreetMap contributors.






