
Putters Place, Holbeach, PE12

- PROPERTY TYPE
Semi-Detached
- BEDROOMS
3
- BATHROOMS
2
- SIZE
Ask agent
- TENUREDescribes how you own a property. There are different types of tenure - freehold, leasehold, and commonhold.Read more about tenure in our glossary page.
Ask agent
Key features
- THREE BEDROOMS
- SEMI DETACHED HOME
- EN SUITE
- CLOAKROOM
- KITCHEN / DINER
- FRENCH DOORS INTO GARDEN
Description
*** SHOWHOME NOW OPEN *** THE SANDRINGHAM *** Putters Place features 49 beautifully designed homes, ranging from two to five bedroom properties, offering a diverse selection to suit various needs and lifestyles. Phase 1 of the residential development at Damgate, Holbeach, will combine modern architectural styles with spacious, comfortable interiors, and high-quality finishes. Designed for energy efficiency and sustainability, each home also includes ample outdoor space, perfect for families and individuals alike. Located in a peaceful, semi-rural setting, the development is close to local amenities, schools, and transport links, providing a perfect blend of tranquil living with convenient access to essential services.
Putters Place, Holbeach
Nestled in the charming South Lincolnshire town of Holbeach, Putters Place is a beautiful, considerately designed development offering a range of 2, 3, 4, and 5-bedroom homes. The land lent itself as a golf course to the Manor House for a number of years and is how its name was coined.
Nursery, primary and secondary schools, independent and national shops, a doctor's office, pubs and restaurants are just a few of the town's many first-rate amenities. The Holbeach region, which is surrounded by rural areas and tiny welcoming villages, is renowned for its vibrant communities and prosperous flower and bulb industries.
Conveniently located near the A16 and A17, Holbeach provides useful access to Peterborough (23 miles away) and Kings Lynn (20 miles away) if commuting is a consideration, both offering direct routes to London via train. If you venture to one of the neighbouring towns, Spalding lies just 8 miles away and is easily accessible via the regular public ...
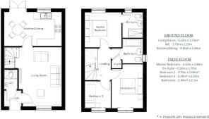
Door into:
Entrance Hall
Cloakroom
To be fitted with a two piece suite comprising wash hand basin and WC.
Lounge
16' 10" x 12' 3" max (5.12m x 3.73m) (approx) Window to the front. Stairs to first floor accommodation.
Kitchen / Diner
16' 3" x 9' 9" (4.95m x 2.96m) (approx) Window and French doors to the rear.
Landing
Bedroom One
10' 3" x 9' 9" (3.12m x 2.98m) (approx) Window to the rear.
En suite
To be fitted with a three piece suite comprising shower cubicle, wash hand basin and WC.
Bedroom Two
12' 4" x 8' 8" max(3.75m x 2.64m) (approx) Window to the front.
Bedroom Three
7' 6" x 7' 4" (2.29m x 2.23m) (approx) Window to the front.
Bathroom
To be fitted with a three piece suite comprising bath, wash hand basin and WC. Window to the side. Airing cupboard.
Floorplan
The floor plan is for illustrative purposes only. Fixtures and fittings do not represent the current state of the property. Not to scale and is meant as a guide only.
Agent note
Please note that this property is currently under construction and descriptions are applicable to the finished property. The floor plan is for illustrative purposes only. Fixtures and fittings do not represent the current state of the property. Not to scale and is meant as a guide only. As with most new build developments we are informed there will be an annual charge of circa £200 per annum
- COUNCIL TAXA payment made to your local authority in order to pay for local services like schools, libraries, and refuse collection. The amount you pay depends on the value of the property.Read more about council Tax in our glossary page.
- Band: TBC
- PARKINGDetails of how and where vehicles can be parked, and any associated costs.Read more about parking in our glossary page.
- Ask agent
- GARDENA property has access to an outdoor space, which could be private or shared.
- Yes
- ACCESSIBILITYHow a property has been adapted to meet the needs of vulnerable or disabled individuals.Read more about accessibility in our glossary page.
- Ask agent
Energy performance certificate - ask agent
Putters Place, Holbeach, PE12
Add an important place to see how long it'd take to get there from our property listings.
__mins driving to your place
Get an instant, personalised result:
- Show sellers you’re serious
- Secure viewings faster with agents
- No impact on your credit score
Your mortgage
Notes
Staying secure when looking for property
Ensure you're up to date with our latest advice on how to avoid fraud or scams when looking for property online.
Visit our security centre to find out moreDisclaimer - Property reference 29567473. The information displayed about this property comprises a property advertisement. Rightmove.co.uk makes no warranty as to the accuracy or completeness of the advertisement or any linked or associated information, and Rightmove has no control over the content. This property advertisement does not constitute property particulars. The information is provided and maintained by Rosedale Land & New Homes, Peterborough. Please contact the selling agent or developer directly to obtain any information which may be available under the terms of The Energy Performance of Buildings (Certificates and Inspections) (England and Wales) Regulations 2007 or the Home Report if in relation to a residential property in Scotland.
*This is the average speed from the provider with the fastest broadband package available at this postcode. The average speed displayed is based on the download speeds of at least 50% of customers at peak time (8pm to 10pm). Fibre/cable services at the postcode are subject to availability and may differ between properties within a postcode. Speeds can be affected by a range of technical and environmental factors. The speed at the property may be lower than that listed above. You can check the estimated speed and confirm availability to a property prior to purchasing on the broadband provider's website. Providers may increase charges. The information is provided and maintained by Decision Technologies Limited. **This is indicative only and based on a 2-person household with multiple devices and simultaneous usage. Broadband performance is affected by multiple factors including number of occupants and devices, simultaneous usage, router range etc. For more information speak to your broadband provider.
Map data ©OpenStreetMap contributors.






