Upper Maze Hill, St. Leonards-On-Sea TN38 0LH

- PROPERTY TYPE
Flat
- BEDROOMS
2
- BATHROOMS
1
- SIZE
Ask agent
Key features
- Purpose Built Block
- First Floor Flat
- Two Bedrooms
- Bright And Spacious Accomodation
- Sea Views
- Long Lease
- Share Of Freehold
- Central St Leonards Location
- Double Garage
- 60 Square Metres Total Floor Area
Description
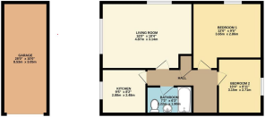
Accommodation comprises of an entrance hall with storage cupboards, large living room with double aspect making the room bright and airy, two double bedrooms, modern fitted bathroom with a shower over the bath, wash hand basin and WC.
Fitted kitchen which benefits from matching wall and base units and space for a free standing fridge freezer and washing machine.
Further benefits include, double length garage with the potential to be converted into a gym or even an office, parking space for two vehicles, sea views, entry phone system, long lease and share of freehold.
This property is being sold CHAIN FREE and has recently been decorated through and viewing is highly recommended to avoid disappointment.
Lounge - 4.88m x 3.15m (16'0 x 10'4) -
Kitchen - 2.87m x 2.49m (9'5 x 8'2) -
Bedroom One - 3.66m x 2.87m (12'0 x 9'5) -
Bedroom Two - 3.15m x 2.72m (10'4 x 8'11) -
Bathroom - 2.21m x 1.91m (7'3" x 6'3) -
Garage - 8.53m x 3.05m (27'11" x 10'0") -
Lease Information - The seller advises that the property is offered as share of freehold and has approximately 999 years remaining on the lease from 2000. The service charge is approximately £1,000 annum. The agent has not had sight or confirmation documents and therefore the buyer is advised to obtain verification from their solicitor or surveyor.
Council Tax Band - B £1,896 Per Annum -
Brochures
Upper Maze Hill, St. Leonards-On-Sea TN38 0LHBrochure- COUNCIL TAXA payment made to your local authority in order to pay for local services like schools, libraries, and refuse collection. The amount you pay depends on the value of the property.Read more about council Tax in our glossary page.
- Band: B
- PARKINGDetails of how and where vehicles can be parked, and any associated costs.Read more about parking in our glossary page.
- Yes
- GARDENA property has access to an outdoor space, which could be private or shared.
- Ask agent
- ACCESSIBILITYHow a property has been adapted to meet the needs of vulnerable or disabled individuals.Read more about accessibility in our glossary page.
- Ask agent
Upper Maze Hill, St. Leonards-On-Sea TN38 0LH
Add an important place to see how long it'd take to get there from our property listings.
__mins driving to your place
Get an instant, personalised result:
- Show sellers you’re serious
- Secure viewings faster with agents
- No impact on your credit score
Your mortgage
Notes
Staying secure when looking for property
Ensure you're up to date with our latest advice on how to avoid fraud or scams when looking for property online.
Visit our security centre to find out moreDisclaimer - Property reference 34308536. The information displayed about this property comprises a property advertisement. Rightmove.co.uk makes no warranty as to the accuracy or completeness of the advertisement or any linked or associated information, and Rightmove has no control over the content. This property advertisement does not constitute property particulars. The information is provided and maintained by Oakfield, Bexhill-on-Sea. Please contact the selling agent or developer directly to obtain any information which may be available under the terms of The Energy Performance of Buildings (Certificates and Inspections) (England and Wales) Regulations 2007 or the Home Report if in relation to a residential property in Scotland.
*This is the average speed from the provider with the fastest broadband package available at this postcode. The average speed displayed is based on the download speeds of at least 50% of customers at peak time (8pm to 10pm). Fibre/cable services at the postcode are subject to availability and may differ between properties within a postcode. Speeds can be affected by a range of technical and environmental factors. The speed at the property may be lower than that listed above. You can check the estimated speed and confirm availability to a property prior to purchasing on the broadband provider's website. Providers may increase charges. The information is provided and maintained by Decision Technologies Limited. **This is indicative only and based on a 2-person household with multiple devices and simultaneous usage. Broadband performance is affected by multiple factors including number of occupants and devices, simultaneous usage, router range etc. For more information speak to your broadband provider.
Map data ©OpenStreetMap contributors.







