Duke House, Arkwright Way, Queensway Industrial Estate, Scunthorpe, South Humberside, DN16 1AL
- SIZE AVAILABLE
4,715 sq ft
438 sq m
- SECTOR
Commercial property for sale
Description
**For Sale By Public Auction 10th December 2025 09:30 AM To inspect the legal documents for this property go to our website to download the legal pack**
A Vacant Two-Storey Detached Office Building
Tenure
Leasehold. The property is held on a 125 year lease from February 1990 (thus approximately 90 years unexpired).
Location
The property is situated on the outskirts of Scunthorpe, close to local shops and amenities. The open spaces of Ashby Ville Nature Reserve are within easy reach. Transport links are provided by Scunthorpe rail station.
Description
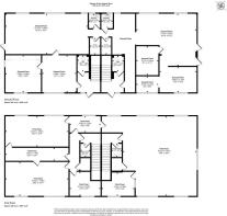
The property comprises a two-storey office building measuring approximately 438 sq m (4,714 sq ft) arranged over ground and first floors. The property is currently divided to provide two fully inter-connected suites but these could be separated to form two separate offices, if required.
Accommodation
Suite 17A
Ground floor
First Floor
Total 213.64 sq m (2,300 sq ft)
Suite 17B
Ground Floor
First Floor
Total 213.64 sq m (2,300 sq ft)
Combined Total 427.28 sq m (4,600 sq ft)
Exterior
The property benefits from off street parking.
Note
The property was previously let for £28,000 per annum.
EPC Rating
D
Open House Viewings:
Viewing Schedule (No Booking Required)
Tuesday 2 December 12:00 - 12:30
Thursday 4 December 12:00 - 12:30
Tuesday 9 December 12:00 - 12:30
Duke House, Arkwright Way, Queensway Industrial Estate, Scunthorpe, South Humberside, DN16 1AL
NEAREST STATIONS
Distances are straight line measurements from the centre of the postcode- Scunthorpe Station1.9 miles
- Althorpe Station4.9 miles
Notes
Disclaimer - Property reference 316051. The information displayed about this property comprises a property advertisement. Rightmove.co.uk makes no warranty as to the accuracy or completeness of the advertisement or any linked or associated information, and Rightmove has no control over the content. This property advertisement does not constitute property particulars. The information is provided and maintained by Auction House London, London. Please contact the selling agent or developer directly to obtain any information which may be available under the terms of The Energy Performance of Buildings (Certificates and Inspections) (England and Wales) Regulations 2007 or the Home Report if in relation to a residential property in Scotland.
Auction Fees: The purchase of this property may include associated fees not listed here, as it is to be sold via auction. To find out more about the fees associated with this property please call Auction House London, London on 020 7870 6217.
*Guide Price: An indication of a seller's minimum expectation at auction and given as a Guide Price or a range of Guide Prices. This is not necessarily the figure a property will sell for and is subject to change prior to the auction.
Reserve Price: Each auction property will be subject to a Reserve Price below which the property cannot be sold at auction. Normally the Reserve Price will be set within the range of Guide Prices or no more than 10% above a single Guide Price.
Map data ©OpenStreetMap contributors.





