Property for sale
61 Leith Walk, Leith, Edinburgh, EH6 8LS

- SIZE
Ask agent
- TENUREDescribes how you own a property. There are different types of tenure - freehold, leasehold, and commonhold.Read more about tenure in our glossary page.
Ask agent
Key features
- Well-presented restaurant investment on Leith Walk
- Let until 30th November 2029 at a passing rent of £20,400 per annum
- Active asset management opportunities
- Close proximity to Constitution Street tram stop
- Offers Over £285,000 reflecting a reversionary yield of 8.19%
Description
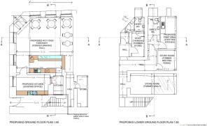
The property comprises a restaurant arranged over the ground and basement floors of a three-storey traditional stone building, with a frontage onto Leith Walk and a return frontage onto Crown Street.
The ground floor includes an open-plan customer seating area for 26 covers, along with an open kitchen and service pass. Behind the kitchen are a food preparation area and dry store. At the rear of the property, a corridor leads to a customer WC and the basement.
The kitchen is fitted with a nine-burner gas stove, overhead extraction, commercial grill, tandoori oven, deep-fat fryer, two fridges, handwashing station, and stainless-steel workbench. To the rear, the preparation area includes a large upright fridge, two stainless steel sinks for dishwashing and various other large items.
The basement is accessed via a staircase at the rear and provides ancillary accommodation, including a staff WC, changing facilities, a break room, and storage.
Externally, there is a designated seating area to the front of the property accommodating a further six covers.
Brochures
61 Leith Walk, Edinburgh- COUNCIL TAXA payment made to your local authority in order to pay for local services like schools, libraries, and refuse collection. The amount you pay depends on the value of the property.Read more about council Tax in our glossary page.
- Ask agent
- PARKINGDetails of how and where vehicles can be parked, and any associated costs.Read more about parking in our glossary page.
- Ask agent
- GARDENA property has access to an outdoor space, which could be private or shared.
- Ask agent
- ACCESSIBILITYHow a property has been adapted to meet the needs of vulnerable or disabled individuals.Read more about accessibility in our glossary page.
- Ask agent
Energy performance certificate - ask agent
61 Leith Walk, Leith, Edinburgh, EH6 8LS
Add an important place to see how long it'd take to get there from our property listings.
__mins driving to your place
Get an instant, personalised result:
- Show sellers you’re serious
- Secure viewings faster with agents
- No impact on your credit score
Your mortgage
Notes
Staying secure when looking for property
Ensure you're up to date with our latest advice on how to avoid fraud or scams when looking for property online.
Visit our security centre to find out moreDisclaimer - Property reference 13987. The information displayed about this property comprises a property advertisement. Rightmove.co.uk makes no warranty as to the accuracy or completeness of the advertisement or any linked or associated information, and Rightmove has no control over the content. This property advertisement does not constitute property particulars. The information is provided and maintained by ALLIED SURVEYORS SCOTLAND, Edinburgh. Please contact the selling agent or developer directly to obtain any information which may be available under the terms of The Energy Performance of Buildings (Certificates and Inspections) (England and Wales) Regulations 2007 or the Home Report if in relation to a residential property in Scotland.
*This is the average speed from the provider with the fastest broadband package available at this postcode. The average speed displayed is based on the download speeds of at least 50% of customers at peak time (8pm to 10pm). Fibre/cable services at the postcode are subject to availability and may differ between properties within a postcode. Speeds can be affected by a range of technical and environmental factors. The speed at the property may be lower than that listed above. You can check the estimated speed and confirm availability to a property prior to purchasing on the broadband provider's website. Providers may increase charges. The information is provided and maintained by Decision Technologies Limited. **This is indicative only and based on a 2-person household with multiple devices and simultaneous usage. Broadband performance is affected by multiple factors including number of occupants and devices, simultaneous usage, router range etc. For more information speak to your broadband provider.
Map data ©OpenStreetMap contributors.




